TH
13 Park Road, Windermere
By Thomson Hayton Winkley Estate Agents
£ 400,000
Reviews
3 out of 5 stars
Thomson Hayton Winkley Estate Agents says ..
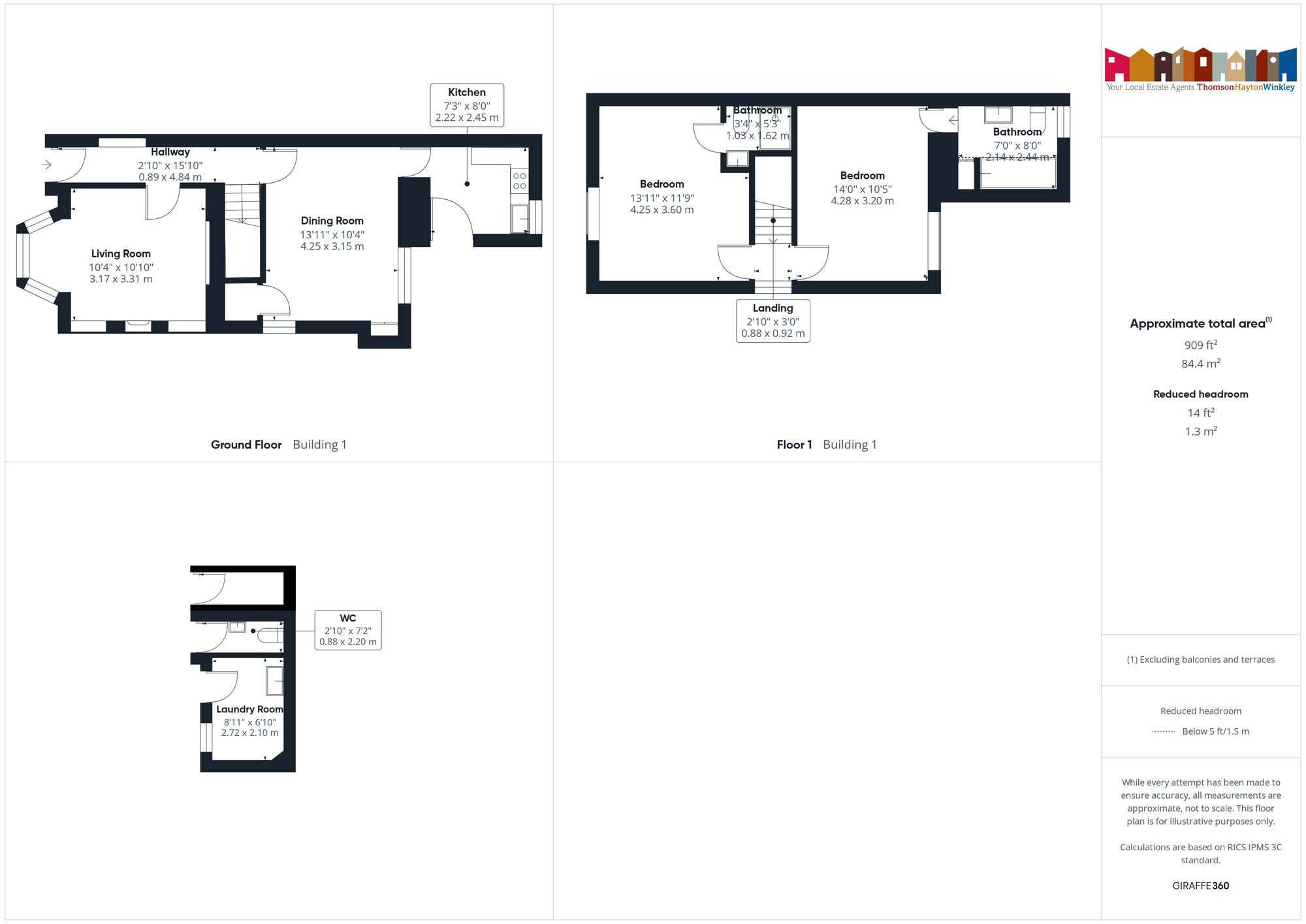
A semi-detached home located in Windermere. Comprising two reception rooms, a kitchen, two bedrooms, two en-suites, gardens to the front and rear and on street parking EPC Rating C. Council Tax TBC
Property Oracle says ..
Therefore, we give this property 7 / 10. *Disclaimer: This is our option and does constitute a recommendation or financial advice. Do your own research. *
- Price
- 6
- Condition
- 8
- Location
- 8
- Land
- 7
- Bedrooms
- 2
- Bathrooms
- 2
- Sqft (est)
- 909.00
The heatmap indicates the level of crime in the area. The color of the heatmap indicates the crime severity and recency.
Metrics Year-on-Year
- Average area value
- 603,889.00 £Increased by 40.02 %
- Est sale value
- 454,500.00 £Increased by 46.63 %
- Average area rental value
- 1,340.00 £/moIncreased by 1.44 %
- Est letting value
- 909.00 £/moUnchanged by 0.00 %
- Est rental Yield
- 2.66 %Decreased by 27.72 %
- Crime Rate
- 23.00 %Unchanged by 0.00 %
from 431,274.00 £
from 309,969.00 £
from 1,321.00 £/mo
from 909.00 £/mo
from 3.68 %
from 23.00 %
Agent Activity
Thomson Hayton Winkley Estate Agents marked this listing as sold.
Thomson Hayton Winkley Estate Agents created the listing.
Nearby Schools
| Name | Type | Ofsted | Distance |
|---|---|---|---|
| St Martin & St Mary Church Of England Primary School | Voluntary Aided School | Good | 0.51 KM |
| St Cuthberts Catholic Primary School, Windermere | Academy Converter | 0.75 KM | |
| Lakes Surestart Children'S Centre | Children's Centre | 1.29 KM | |
| Goodly Dale Primary School | Community School | Good | 1.29 KM |
| The Lakes School | Community School | Good | 2.79 KM |
Images
Nearby Streets
| Name | Average Price | Average Sqft | Distance |
|---|---|---|---|
| Woodland Close | £ 0 | 0 | 0.00 KM |
| Holly Road | £ 0 | 0 | 0.00 KM |
| Havelock Road | £ 322,998 | 0 | 0.00 KM |
| Park View | £ 495,000 | 0 | 0.00 KM |
| Salisbury Place | £ 450,000 | 0 | 0.00 KM |
Nearby Transport
| Name | NLC | TLC | Distance |
|---|---|---|---|
| Windermere | 1978 | WDM | 0.48 KM |
| Staveley (Cumbria) | 1977 | SVL | 9.29 KM |
Nearby Listings
| Address | Price | Type | Score | Distance |
|---|---|---|---|---|
| 13 Park Road, Windermere | £ 400,000 | BUY | 7 / 10 | 0.00 KM |
| Park Road, Windermere, LA23 | £ 395,000 | BUY | Unknown | 0.01 KM |
| The Old Stables, 2 Park Road, Windermere, Cumbria, LA23 2AW | £ 495,000 | BUY | Unknown | 0.05 KM |
| Burn House, 2 Park Road, Windermere, LA23 2AW | £ 585,000 | BUY | Unknown | 0.07 KM |
| 14 Upper Oak Street, Windermere, LA23 2LB | £ 345,000 | BUY | 7 / 10 | 0.08 KM |
Nearby Properties
| Address | Price | Distance |
|---|---|---|
| 4 Woodland Close | £ 179,000 | 0.03 KM |
| 5 Woodland Close | £ 187,300 | 0.03 KM |
| 9 Woodland Close | £ 129,000 | 0.03 KM |
| 2 Park Road | £ 532,000 | 0.06 KM |
| 13 Park Road | £ 44,000 | 0.07 KM |