Stockers Avenue, Winchester, Hampshire, SO22
By Winkworth
£ 1,500,000
Reviews
3 out of 5 stars
Winkworth says ..
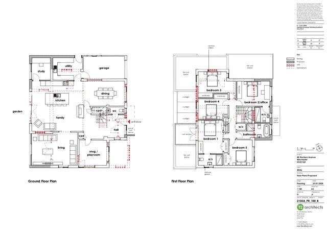
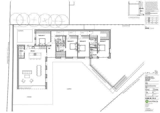
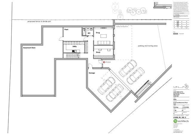
* Detached * Five bedrooms * Three bathrooms * 0.5 acre plot * Double Garage * Planning Permission for a detached house in the grounds * Planning Permssion to extend the existing house *
Property Oracle says ..
The property is located in Winchester, Hampshire, a desirable area known for its excellent schools, transportation links, and historic significance. The property itself is a detached house with a sizable plot, offering ample space and privacy. While the existing structure appears to be in reasonable condition, the provided architectural plans suggest a significant renovation or rebuild is planned. This will likely result in a modern, updated home. The list price is significantly higher than the average price for the area, however, given the size of the property and potential for a high-end finish after renovation, it may be justifiable depending on the final quality of the rebuild. The proximity to good schools and Winchester city centre adds to the desirability and potential value. The large garden is a significant asset, particularly for families. The lack of bathroom information in the initial description is a notable omission.
Therefore, we give this property 7 / 10. *Disclaimer: This is our option and does constitute a recommendation or financial advice. Do your own research. *
- Price
- 6
- Condition
- 7
- Location
- 9
- Land
- 8
- Bedrooms
- 5
- Bathrooms
- 0
- Sqft (est)
- 4,174.78
The heatmap indicates the level of crime in the area. The color of the heatmap indicates the crime severity and recency.
Metrics Year-on-Year
- Average area value
- 642,857.00 £Decreased by 10.83 %
- Est sale value
- 3,156,133.68 £Increased by 44.00 %
- Average area rental value
- 2,176.00 £/moIncreased by 29.37 %
- Est letting value
- 8,349.56 £/moIncreased by 100.00 %
- Est rental Yield
- 4.06 %Increased by 45.00 %
- Crime Rate
- 1.00 %Unchanged by 0.00 %
Agent Activity
Winkworth created the listing.
Nearby Schools
| Name | Type | Ofsted | Distance |
|---|---|---|---|
| Western Church Of England Primary School | Voluntary Controlled School | Good | 0.43 KM |
| Weeke Primary School | Community School | Good | 0.75 KM |
| The Westgate School | Community School | Good | 0.78 KM |
| Harestock Primary School | Community School | Good | 1.25 KM |
| Lanterns Nursery School And Children'S Centre | Children's Centre | 1.49 KM |
Images
Nearby Streets
| Name | Average Price | Average Sqft | Distance |
|---|---|---|---|
| Ashmore Road | £ 950,000 | 0 | 0.00 KM |
| Butt's Close | £ 1,287,500 | 0 | 0.00 KM |
| Lynch Road | £ 0 | 0 | 0.00 KM |
| Royal Crescent | £ 78,750 | 0 | 0.00 KM |
| Old Romsey Road | £ 0 | 0 | 0.00 KM |
Nearby Transport
| Name | NLC | TLC | Distance |
|---|---|---|---|
| Winchester | 5924 | WIN | 1.96 KM |
| Shawford | 5929 | SHW | 5.29 KM |
Nearby Listings
| Address | Price | Type | Score | Distance |
|---|---|---|---|---|
| Stockers Avenue, Winchester, Hampshire, SO22 | £ 1,500,000 | BUY | 7 / 10 | 0.00 KM |
| Ashmore Road, Winchester, SO22 | £ 900,000 | BUY | 7 / 10 | 0.06 KM |
| Stockers Avenue, Winchester | £ 1,175,000 | BUY | Unknown | 0.15 KM |
| Elizabeth Place, Winchester, Hampshire, SO22 | £ 775,000 | BUY | 7 / 10 | 0.20 KM |
| Chilbolton Avenue, Winchester, Hampshire, SO22 | £ 1,700,000 | BUY | 6 / 10 | 0.21 KM |
Nearby Properties
| Address | Price | Distance |
|---|---|---|
| 37 Hampton Lane | £ 1,636,757 | 0.14 KM |
| 34 Hampton Lane | £ 700,000 | 0.14 KM |
| 33 Hampton Lane | £ 625,000 | 0.14 KM |
| 37 Stockers Avenue | £ 890,000 | 0.15 KM |
| 4 Stockers Avenue | £ 650,000 | 0.15 KM |