Hudson Moody says ..
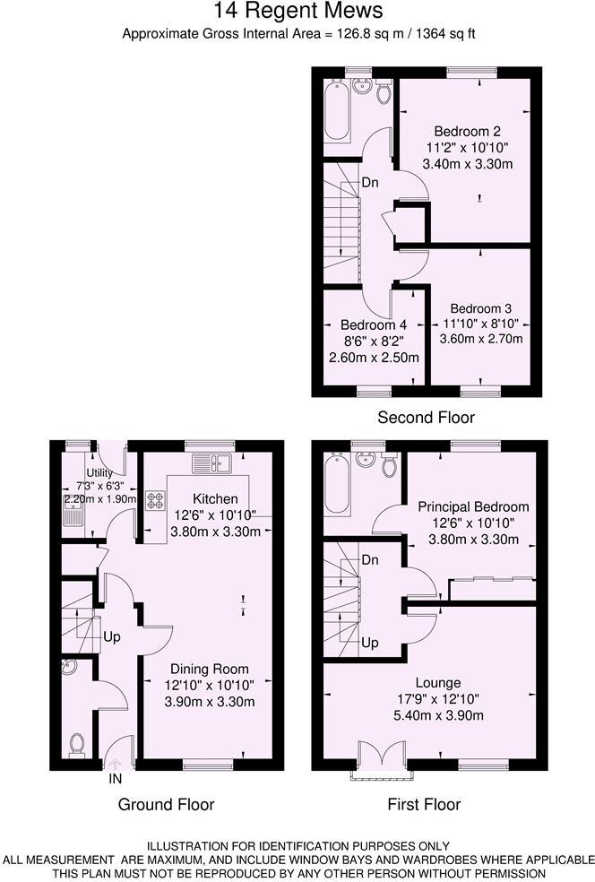
Just off Boroughbridge Road, within easy reach of York city centre and the outer ring road, you will find this impressive three storey, four bedroom townhouse that benefits from a good sized garden and garage.
Property Oracle says ..
Therefore, we give this property 7 / 10. *Disclaimer: This is our option and does constitute a recommendation or financial advice. Do your own research. *
- Price
- 8
- Condition
- 8
- Location
- 7
- Land
- 7
- Bedrooms
- 4
- Bathrooms
- 2
The heatmap indicates the level of crime in the area. The color of the heatmap indicates the crime severity and recency.
Metrics Year-on-Year
- Average area value
- 591,875.00 £Increased by 5.13 %
- Average area rental value
- 1,194.00 £/moDecreased by 3.63 %
- Est rental Yield
- 2.42 %Decreased by 8.33 %
- Crime Rate
- 13.00 %Unchanged by 0.00 %
from 562,987.00 £
from 1,239.00 £/mo
from 2.64 %
from 13.00 %
Agent Activity
Hudson Moody created the listing.
Nearby Schools
| Name | Type | Ofsted | Distance |
|---|---|---|---|
| Carr Children'S Centre | Children's Centre | 0.70 KM | |
| Carr Junior School | Academy Converter | 0.70 KM | |
| Carr Infant School | Community School | Good | 0.84 KM |
| Poppleton Road Primary School | Community School | Good | 0.85 KM |
| Acomb Primary School | Academy Converter | 1.64 KM |
Images
Nearby Streets
| Name | Average Price | Average Sqft | Distance |
|---|---|---|---|
| Ouse Acres | £ 0 | 0 | 0.00 KM |
| Glebe Avenue | £ 0 | 0 | 0.00 KM |
| Woodlea Grove | £ 0 | 0 | 0.00 KM |
| Fairfax Close | £ 120,000 | 0 | 0.00 KM |
| School Street | £ 0 | 0 | 0.00 KM |
Nearby Transport
| Name | NLC | TLC | Distance |
|---|---|---|---|
| Poppleton | 8254 | POP | 3.10 KM |
| York | 8263 | YRK | 3.34 KM |
Nearby Listings
| Address | Price | Type | Score | Distance |
|---|---|---|---|---|
| Regent Mews, York, YO26 5TD | £ 395,000 | BUY | 7 / 10 | 0.00 KM |
| Princess Drive, York, YO26 5SY | £ 175,000 | BUY | 7 / 10 | 0.08 KM |
| Princess Drive, Acomb, York, YO26 5SY | £ 350,000 | BUY | 7 / 10 | 0.08 KM |
| Princess Drive, York, YO26 | £ 270,000 | BUY | 6 / 10 | 0.09 KM |
| Princess Drive, York, North Yorkshire, YO26 | £ 180,000 | BUY | 5 / 10 | 0.10 KM |
Nearby Properties
| Address | Price | Distance |
|---|---|---|
| 15 Regent Mews | £ 182,950 | 0.01 KM |
| 24 Regent Mews | £ 217,500 | 0.01 KM |
| 9 Regent Mews | £ 360,000 | 0.01 KM |
| 4 Regent Mews | £ 223,500 | 0.01 KM |
| 12 Regent Mews | £ 209,950 | 0.01 KM |