AR
Spruce Avenue, Waterlooville
By Archbold & Edwards
£ 269,995
Reviews
3 out of 5 stars
Archbold & Edwards says ..
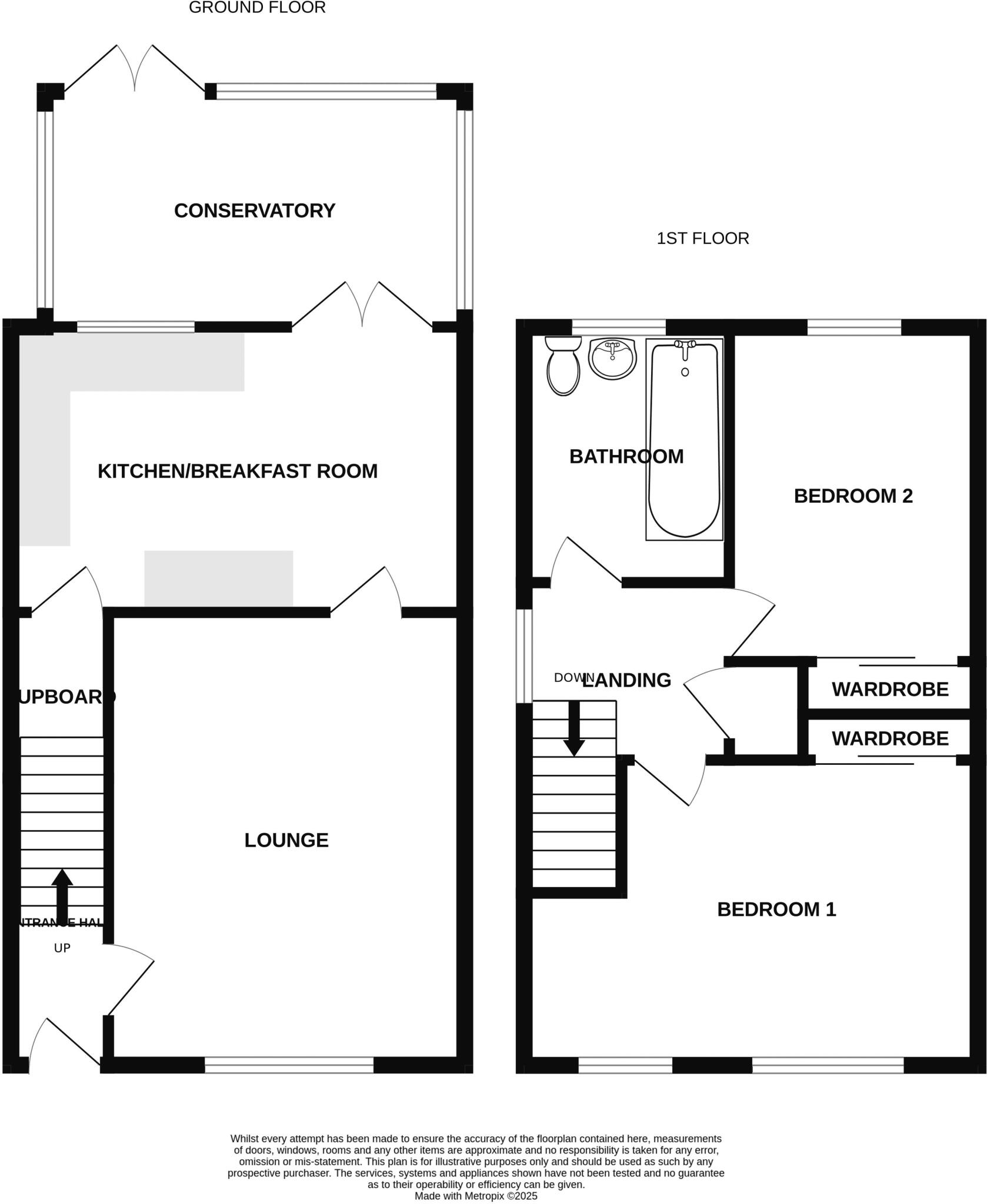
AN IDEAL FIRST TIME OR INVESTMENT PURCHASE. A two bedroom semi detached house located in Waterlooville close to local amenities and schools. This property benefits from double glazing, gas central heating system, mature rear gardens, driveway parking for multiple vehicles, lounge, kitchen/breakfa...
Property Oracle says ..
Therefore, we give this property 7 / 10. *Disclaimer: This is our option and does constitute a recommendation or financial advice. Do your own research. *
- Price
- 8
- Condition
- 8
- Location
- 7
- Land
- 7
- Bedrooms
- 2
- Bathrooms
- 1
- Sqft (est)
- 764.00
The heatmap indicates the level of crime in the area. The color of the heatmap indicates the crime severity and recency.
Metrics Year-on-Year
- Average area value
- 349,374.00 £Increased by 1.66 %
- Est sale value
- 268,164.00 £Increased by 5.72 %
- Average area rental value
- 1,348.00 £/moDecreased by 29.68 %
- Est letting value
- 764.00 £/moUnchanged by 0.00 %
- Est rental Yield
- 4.63 %Decreased by 30.79 %
- Crime Rate
- 6.00 %Unchanged by 0.00 %
from 343,669.00 £
from 253,648.00 £
from 1,917.00 £/mo
from 764.00 £/mo
from 6.69 %
from 6.00 %
Agent Activity
Archbold & Edwards created the listing.
Nearby Schools
| Name | Type | Ofsted | Distance |
|---|---|---|---|
| Springwood Infant School | Community School | Good | 0.34 KM |
| Springwood Junior School | Community School | Good | 0.45 KM |
| St Peter'S Catholic Primary School, Waterlooville | Voluntary Aided School | Good | 0.93 KM |
| Oaklands Catholic School | Academy Converter | Good | 0.97 KM |
| The Waterloo School | Community Special School | Good | 0.97 KM |
Images
Nearby Streets
| Name | Average Price | Average Sqft | Distance |
|---|---|---|---|
| Bluebell Close | £ 0 | 0 | 0.00 KM |
| Robinia Close | £ 410,000 | 0 | 0.00 KM |
| Stirling Avenue | £ 465,000 | 0 | 0.00 KM |
| Monarch Close | £ 400,000 | 0 | 0.00 KM |
| Sorrel Close | £ 290,000 | 0 | 0.00 KM |
Nearby Transport
| Name | NLC | TLC | Distance |
|---|---|---|---|
| Bedhampton | 5538 | BDH | 3.74 KM |
| Havant | 5532 | HAV | 4.98 KM |
| Warblington | 5264 | WBL | 6.45 KM |
| Cosham | 5896 | CSA | 6.49 KM |
| Hilsea | 5539 | HLS | 6.88 KM |
Nearby Listings
| Address | Price | Type | Score | Distance |
|---|---|---|---|---|
| Spruce Avenue, Waterlooville | £ 199,995 | BUY | 6 / 10 | 0.00 KM |
| Spruce Avenue, Waterlooville | £ 269,995 | BUY | 7 / 10 | 0.00 KM |
| Trefoil Close, Waterlooville, Hampshire, PO7 | £ 110,000 | BUY | Unknown | 0.05 KM |
| Spruce Avenue, Waterlooville | £ 165,000 | BUY | 5 / 10 | 0.07 KM |
| Spruce Avenue, Waterlooville, Hampshire, PO7 8HA | £ 135,000 | BUY | 5 / 10 | 0.08 KM |
Nearby Properties
| Address | Price | Distance |
|---|---|---|
| 22 Spruce Avenue | £ 100,000 | 0.01 KM |
| 20 Spruce Avenue | £ 112,500 | 0.01 KM |
| 9 Spruce Avenue | £ 163,000 | 0.01 KM |
| 24 Spruce Avenue | £ 98,000 | 0.01 KM |
| 7 Spruce Avenue | £ 178,000 | 0.01 KM |