Fords Grove, Winchmore Hill, N21
By Paul Simon - Lettings
£ 799,000
Reviews
3 out of 5 stars
Paul Simon - Lettings says ..
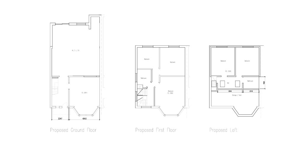
Paul Simon are pleased to offer to the market this 3-bedroom semi detached family home, overlooking the green area of Winchmore Hill Sports Club. The accommodation comprises front and rear reception rooms, large fitted kitchen/diner, three bedrooms, family bathroom, downstairs WC, and large garde...
Property Oracle says ..
This property is located in Winchmore Hill, Enfield, a generally desirable area in North London. The proximity to Winchmore Hill train station, providing links to London, and nearby schools rated as “Good” or “Outstanding” by Ofsted are positive aspects. The property itself appears to be in reasonable condition based on the provided photos, though a more thorough in-person inspection would be necessary to assess the full extent of its condition. The presence of a garden is a plus, adding to the overall appeal. However, the list price of £799,000 is notably higher than the average price of £611,813 for the area. Considering the average price per square foot of £467 and the property’s size of 1,640.42 sqft, a rough estimate of its value would be around £766,000. The list price is therefore slightly above this estimate, potentially reflecting the desirable location and the garden. Further investigation into the specifics of the property’s condition and any recent local market trends would be needed to determine if the list price is fully justified.
Therefore, we give this property 7 / 10. *Disclaimer: This is our option and does constitute a recommendation or financial advice. Do your own research. *
- Price
- 6
- Condition
- 7
- Location
- 8
- Land
- 7
- Bedrooms
- 3
- Bathrooms
- 2
- Sqft (est)
- 1,640.42
The heatmap indicates the level of crime in the area. The color of the heatmap indicates the crime severity and recency.
Metrics Year-on-Year
- Average area value
- 462,500.00 £Decreased by 45.18 %
- Est sale value
- 1,164,698.20 £Increased by 12.52 %
- Average area rental value
- 2,156.00 £/moIncreased by 3.85 %
- Est letting value
- 4,921.26 £/moIncreased by 200.00 %
- Est rental Yield
- 5.59 %Increased by 89.49 %
- Crime Rate
- 2.00 %Unchanged by 0.00 %
Agent Activity
Paul Simon - Lettings created the listing.
Nearby Schools
| Name | Type | Ofsted | Distance |
|---|---|---|---|
| Winchmore School | Community School | Good | 0.40 KM |
| Highfield Primary School | Community School | Outstanding | 0.43 KM |
| St Paul'S Cofe Primary School | Voluntary Aided School | Outstanding | 1.07 KM |
| Firs Farm Primary School | Community School | Good | 1.18 KM |
| Grange Park Preparatory School | Other Independent School | 1.19 KM |
Images
Nearby Streets
| Name | Average Price | Average Sqft | Distance |
|---|---|---|---|
| New River Path | £ 0 | 0 | 0.00 KM |
| Hyde Park Gardens | £ 775,000 | 0 | 0.00 KM |
| Kent Road | £ 825,000 | 0 | 0.00 KM |
| Clarendon Way | £ 950,000 | 0 | 0.00 KM |
| Crossways | £ 765,000 | 0 | 0.00 KM |
Nearby Transport
| Name | NLC | TLC | Distance |
|---|---|---|---|
| Winchmore Hill | 6024 | WIH | 1.20 KM |
| Grange Park | 6029 | GPK | 1.47 KM |
| Enfield Chase | 6010 | ENC | 2.43 KM |
| Bush Hill Park | 6913 | BHK | 2.59 KM |
| Enfield Town | 6959 | ENF | 2.60 KM |
Nearby Listings
| Address | Price | Type | Score | Distance |
|---|---|---|---|---|
| Fords Grove, Winchmore Hill, N21 | £ 799,000 | BUY | 7 / 10 | 0.00 KM |
| Beverley Close, Winchmore Hill, N21 | £ 399,995 | BUY | Unknown | 0.10 KM |
| Fords Grove, London | £ 1,000,000 | BUY | 6 / 10 | 0.14 KM |
| Farm Road, Winchmore Hill, N21 | £ 320,000 | BUY | 6 / 10 | 0.21 KM |
| Laburnum Grove, Winchmore Hill, N21 | £ 850,000 | BUY | 7 / 10 | 0.22 KM |
Nearby Properties
| Address | Price | Distance |
|---|---|---|
| 47 Beverley Close | £ 297,000 | 0.09 KM |
| 27 Beverley Close | £ 250,000 | 0.09 KM |
| 23 Beverley Close | £ 337,500 | 0.09 KM |
| 24 Beverley Close | £ 387,500 | 0.09 KM |
| 49 Beverley Close | £ 551,000 | 0.09 KM |