Washington Road, Caversham, Berkshire
By Nicholas Estate Agents
£ 575,000
Reviews
3 out of 5 stars
Nicholas Estate Agents says ..
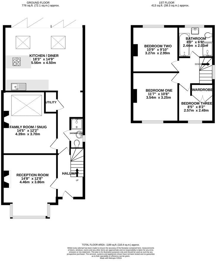
SOLD BY NICHOLAS ESTATE AGENTS & NEA LETTINGS. Ideally located for easy access to both central Caversham and Reading train station with its fast links to London is this stunning end of terrace bay fronted house. The property has been extended on the ground floor and boasts a stunning kitchen /din...
Property Oracle says ..
Therefore, we give this property 7 / 10. *Disclaimer: This is our option and does constitute a recommendation or financial advice. Do your own research. *
- Price
- 6
- Condition
- 9
- Location
- 8
- Land
- 7
- Bedrooms
- 3
- Bathrooms
- 2
- Sqft (est)
- 990.96
The heatmap indicates the level of crime in the area. The color of the heatmap indicates the crime severity and recency.
Metrics Year-on-Year
- Average area value
- 436,875.00 £Increased by 21.02 %
- Est sale value
- 512,326.32 £Increased by 14.13 %
- Average area rental value
- 1,527.00 £/moDecreased by 4.62 %
- Est letting value
- 990.96 £/moDecreased by 50.00 %
- Est rental Yield
- 4.19 %Decreased by 21.24 %
- Crime Rate
- 2.00 %Unchanged by 0.00 %
from 360,999.00 £
from 448,904.88 £
from 1,601.00 £/mo
from 1,981.92 £/mo
from 5.32 %
from 2.00 %
Agent Activity
Nicholas Estate Agents created the listing.
Nearby Schools
| Name | Type | Ofsted | Distance |
|---|---|---|---|
| St Anne'S Catholic Primary School | Voluntary Aided School | Good | 0.08 KM |
| Queen Anne'S School | Other Independent School | 0.49 KM | |
| New Bridge Nursery School | Local Authority Nursery School | Outstanding | 0.54 KM |
| Thameside Primary School | Community School | Good | 0.61 KM |
| Chiltern Nursery Nurse Training School | Miscellaneous | 0.67 KM |
Images
Nearby Streets
| Name | Average Price | Average Sqft | Distance |
|---|---|---|---|
| St John's Road | £ 0 | 0 | 0.00 KM |
| Short Street | £ 0 | 0 | 0.00 KM |
| Harley Road | £ 0 | 0 | 0.00 KM |
| Tilbury Close | £ 0 | 0 | 0.00 KM |
| The Causeway | £ 250,000 | 0 | 0.00 KM |
Nearby Transport
| Name | NLC | TLC | Distance |
|---|---|---|---|
| Reading | 3149 | RDG | 1.19 KM |
| Reading West | 3160 | RDW | 3.04 KM |
| Earley | 5694 | EAR | 6.00 KM |
| Tilehurst | 3154 | TLH | 7.14 KM |
| Winnersh Triangle | 5698 | WTI | 8.87 KM |
Nearby Listings
| Address | Price | Type | Score | Distance |
|---|---|---|---|---|
| Washington Road, Caversham, Berkshire | £ 575,000 | BUY | 7 / 10 | 0.00 KM |
| Washington Road, Reading | £ 385,000 | BUY | 7 / 10 | 0.06 KM |
| Washington Road, Caversham | £ 425,000 | BUY | 7 / 10 | 0.07 KM |
| Gosbrook Road, Caversham, Reading, Berkshire, RG4 | £ 315,000 | BUY | 6 / 10 | 0.15 KM |
| Ardler Road, Caversham | £ 350,000 | BUY | 6 / 10 | 0.16 KM |
Nearby Properties
| Address | Price | Distance |
|---|---|---|
| 12 Washington Road | £ 320,000 | 0.07 KM |
| 42 Washington Road | £ 400,000 | 0.07 KM |
| 27 Washington Road | £ 382,000 | 0.07 KM |
| 13 Washington Road | £ 440,000 | 0.07 KM |
| 29 Washington Road | £ 208,000 | 0.07 KM |