Knightsbridge Court, West Bars, Chesterfield
By Wilkins Vardy Residential
£ 169,500
Reviews
3 out of 5 stars
Wilkins Vardy Residential says ..
COME AND TAKE A VIRTUAL LOOK AROUND THESE IMPRESSIVE TOWN CENTRE APARTMENTS WITH 900+ YEAR LEASE, NO GROUND RENT & MANAGEABLE SERVICE CHARGE. LIMITED TIME OFFER - 3 YEARS PARKING IN THE ADJOINING PAY & DISPALY CAR PARK FOR AN ASKING PRICE OFFER Sitting in the recently converted former co...
Property Oracle says ..
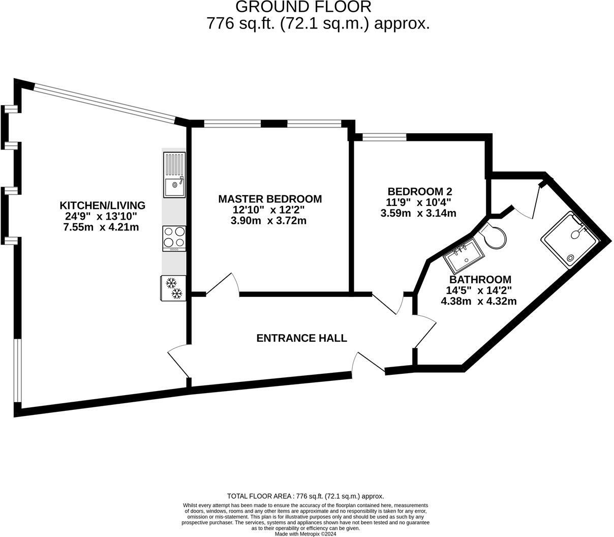
This two-bedroom apartment at Knightsbridge Court in Chesterfield offers a modern and well-maintained living space. Located in the town centre, it benefits from excellent access to local amenities, transport links, and schools. The property appears to have undergone recent renovations, resulting in a contemporary feel and high-quality finishes. The apartment’s central location is a key advantage, offering convenience and accessibility. However, the lack of private outdoor space is a notable limitation. The price seems competitive given other comparable properties in the area, however more information regarding average price per square foot would provide a more accurate assessment. The building itself is a modern conversion of a former courthouse; while the building’s aesthetic might appeal to some, it’s a subjective aspect that will influence buyer preferences. Potential buyers should research the service charge and lease terms, as outlined in the nearby listing descriptions. Overall, this apartment presents a good option for those seeking modern living in a convenient town-centre location, but the lack of private outdoor space needs to be considered.
Therefore, we give this property 6 / 10. *Disclaimer: This is our option and does constitute a recommendation or financial advice. Do your own research. *
- Price
- 7
- Condition
- 9
- Location
- 7
- Land
- 1
- Bedrooms
- 2
- Bathrooms
- 1
- Sqft (est)
- 776.08
The heatmap indicates the level of crime in the area. The color of the heatmap indicates the crime severity and recency.
Metrics Year-on-Year
- Average area value
- 297,500.00 £Increased by 10.75 %
- Est sale value
- 190,139.60 £Increased by 2.51 %
- Average area rental value
- 708.00 £/moDecreased by 0.84 %
- Est letting value
- 0.00 £/mo
- Est rental Yield
- 2.86 %Decreased by 10.34 %
- Crime Rate
- 5.00 %Unchanged by 0.00 %
Agent Activity
Wilkins Vardy Residential created the listing.
Nearby Schools
| Name | Type | Ofsted | Distance |
|---|---|---|---|
| St Mary'S Catholic Primary | Voluntary Aided School | Good | 0.47 KM |
| Abercrombie Primary School | Community School | Good | 0.89 KM |
| Parkside Community School | Community School | Good | 0.90 KM |
| Chesterfield College | Further Education | Requires improvement | 1.05 KM |
| Brampton Primary School | Community School | Good | 1.14 KM |
Images
Nearby Streets
| Name | Average Price | Average Sqft | Distance |
|---|---|---|---|
| New Square | £ 0 | 0 | 0.00 KM |
| Rose Hill | £ 0 | 0 | 0.00 KM |
| Queen Street | £ 190,000 | 0 | 0.00 KM |
| New Street | £ 180,000 | 0 | 0.00 KM |
| West Street | £ 0 | 0 | 0.00 KM |
Nearby Transport
| Name | NLC | TLC | Distance |
|---|---|---|---|
| Chesterfield | 6615 | CHD | 1.51 KM |
| Dronfield | 6616 | DRO | 8.25 KM |
Nearby Listings
| Address | Price | Type | Score | Distance |
|---|---|---|---|---|
| Knightsbridge Court, West Bars, Chesterfield | £ 129,950 | BUY | 5 / 10 | 0.00 KM |
| Knightsbridge Court, West Bars, Chesterfield | £ 169,500 | BUY | 6 / 10 | 0.00 KM |
| Knightsbridge Court, West Bars, Chesterfield | £ 185,000 | BUY | 8 / 10 | 0.00 KM |
| Knightsbridge Court, West Bars, Chesterfield | £ 148,000 | BUY | Unknown | 0.00 KM |
| West Bars, Chesterfield, Derbyshire, S40 | £ 138,000 | BUY | 6 / 10 | 0.01 KM |
Nearby Properties
| Address | Price | Distance |
|---|---|---|
| 17 Albion Road | £ 140,000 | 0.11 KM |
| 21 Albion Road | £ 155,000 | 0.11 KM |
| 20 Albion Road | £ 164,000 | 0.11 KM |
| 29 Albion Road | £ 200,000 | 0.11 KM |
| 1 Clarence Road | £ 55,000 | 0.12 KM |