Hunters says ..
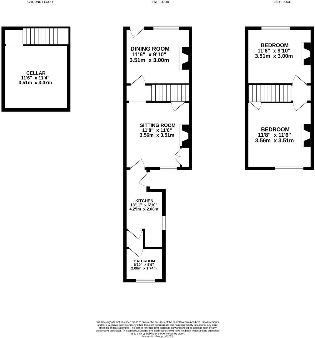
Set in Orchard Place, Maidstone, this delightful Victorian mid-terrace house offers a perfect blend of character and modern living. Built in late 1800s, the property boasts a rich history while providing all the comforts of contemporary life. This home features two spacious double bedrooms, makin...
Property Oracle says ..
Therefore, we give this property 7 / 10. *Disclaimer: This is our option and does constitute a recommendation or financial advice. Do your own research. *
- Price
- 8
- Condition
- 7
- Location
- 7
- Land
- 6
- Bedrooms
- 2
- Bathrooms
- 1
- Sqft (est)
- 762.93
The heatmap indicates the level of crime in the area. The color of the heatmap indicates the crime severity and recency.
Metrics Year-on-Year
- Average area value
- 329,450.00 £Increased by 16.18 %
- Est sale value
- 337,215.06 £Increased by 35.17 %
- Average area rental value
- 1,303.00 £/moIncreased by 6.19 %
- Est letting value
- 762.93 £/moUnchanged by 0.00 %
- Est rental Yield
- 4.75 %Decreased by 8.48 %
- Crime Rate
- 5.00 %Unchanged by 0.00 %
from 283,575.00 £
from 249,478.11 £
from 1,227.00 £/mo
from 762.93 £/mo
from 5.19 %
from 5.00 %
Agent Activity
Hunters created the listing.
Nearby Schools
| Name | Type | Ofsted | Distance |
|---|---|---|---|
| St Michael'S Church Of England Infant School Maidstone | Voluntary Controlled School | Outstanding | 0.14 KM |
| Maidstone, St Michael'S Church Of England Junior School | Voluntary Controlled School | Good | 0.14 KM |
| Oneschool Global Uk - Maidstone Campus | Other Independent School | 0.50 KM | |
| Maidstone And Malling Alternative Provision | Pupil Referral Unit | Good | 0.72 KM |
| Archbishop Courtenay Primary School | Academy Sponsor Led | Requires improvement | 0.76 KM |
Images
Nearby Streets
| Name | Average Price | Average Sqft | Distance |
|---|---|---|---|
| Orchard Place | £ 0 | 0 | 0.00 KM |
| Vine Mews | £ 0 | 0 | 0.00 KM |
| St Michael's Road | £ 462,500 | 0 | 0.00 KM |
| Wharf Road | £ 0 | 0 | 0.00 KM |
| Lower Tovil | £ 0 | 0 | 0.00 KM |
Nearby Transport
| Name | NLC | TLC | Distance |
|---|---|---|---|
| Maidstone West | 5222 | MDW | 0.55 KM |
| Maidstone Barracks | 5237 | MDB | 0.92 KM |
| Maidstone East | 5115 | MDE | 1.48 KM |
| East Farleigh | 5234 | EFL | 3.30 KM |
| Barming | 5133 | BMG | 3.92 KM |
Nearby Listings
| Address | Price | Type | Score | Distance |
|---|---|---|---|---|
| Orchard Place, Maidstone | £ 275,000 | BUY | 7 / 10 | 0.00 KM |
| Bower Place, Maidstone, ME16 | £ 475,000 | BUY | 6 / 10 | 0.04 KM |
| Orchard Place, Maidstone, Kent | £ 165,500 | BUY | Unknown | 0.04 KM |
| Orchard Place, Maidstone, Kent | £ 250,000 | BUY | Unknown | 0.04 KM |
| Bower Place, Maidstone | £ 280,000 | BUY | 6 / 10 | 0.05 KM |
Nearby Properties
| Address | Price | Distance |
|---|---|---|
| 13 Orchard Place | £ 171,000 | 0.02 KM |
| 4 Orchard Place | £ 250,000 | 0.02 KM |
| 2 Orchard Place | £ 170,000 | 0.02 KM |
| 3 Orchard Place | £ 140,000 | 0.02 KM |
| 7 Orchard Place | £ 160,000 | 0.02 KM |