Symonds & Greenham says ..
TWO BED MID TERRACED - IDEAL FOR FIRST TIME BUYERS - POPULAR HU6 LOCATION - CLOSE TO LOCAL AMENITIES - GOOD TRANSPORT LINKS Tucked away in a quiet and peaceful spot on Stanbury Road, this lovely two bedroom mid terraced home is ideal for first time buyers, those looking for a starter ho...
Property Oracle says ..
Therefore, we give this property 6 / 10. *Disclaimer: This is our option and does constitute a recommendation or financial advice. Do your own research. *
- Price
- 7
- Condition
- 6
- Location
- 7
- Land
- 7
- Bedrooms
- 2
- Bathrooms
- 1
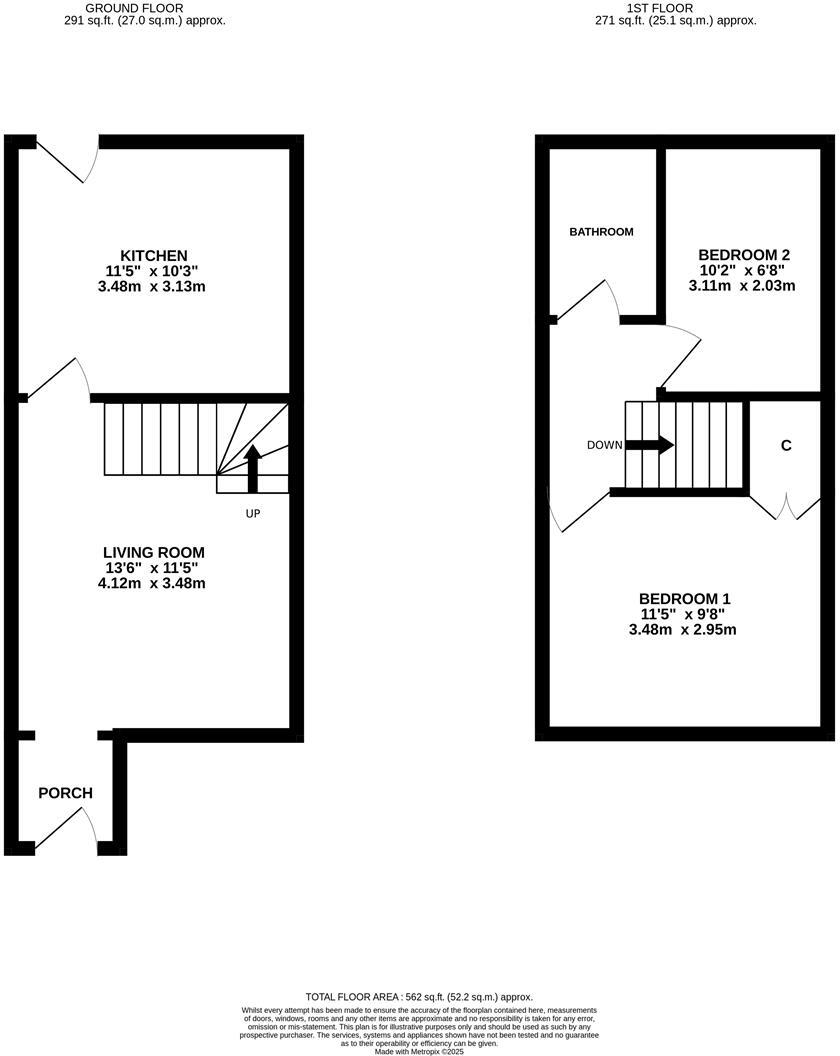
- Sqft (est)
- 562.00
The heatmap indicates the level of crime in the area. The color of the heatmap indicates the crime severity and recency.
Metrics Year-on-Year
- Average area value
- 136,095.00 £Increased by 6.30 %
- Est sale value
- 102,846.00 £Increased by 25.34 %
- Average area rental value
- 697.00 £/moIncreased by 17.74 %
- Est letting value
- 0.00 £/mo
- Est rental Yield
- 6.15 %Increased by 10.81 %
- Crime Rate
- 2.00 %Unchanged by 0.00 %
from 128,027.00 £
from 82,052.00 £
from 592.00 £/mo
from 0.00 £/mo
from 5.55 %
from 2.00 %
Agent Activity
Symonds & Greenham created the listing.
Nearby Schools
| Name | Type | Ofsted | Distance |
|---|---|---|---|
| Parkstone Primary School | Academy Converter | 0.45 KM | |
| Sirius Academy North | Academy Sponsor Led | Good | 0.61 KM |
| Endike Academy | Academy Sponsor Led | Good | 0.72 KM |
| St Mary'S College, Voluntary Catholic Academy | Academy Converter | 1.25 KM | |
| Mcmillan Children'S Centre | Children's Centre Linked Site | 1.29 KM |
Images
Nearby Streets
| Name | Average Price | Average Sqft | Distance |
|---|---|---|---|
| Barnes Way | £ 0 | 0 | 0.00 KM |
| Lilibet Avenue | £ 0 | 0 | 0.00 KM |
| Alexander Hutchison Court | £ 0 | 0 | 0.00 KM |
| Rokel Court | £ 0 | 0 | 0.00 KM |
| The Meadows | £ 0 | 0 | 0.00 KM |
Nearby Transport
| Name | NLC | TLC | Distance |
|---|---|---|---|
| Hull | 8126 | HUL | 4.84 KM |
| Cottingham | 8056 | CGM | 5.29 KM |
| New Holland | 6209 | NHL | 9.32 KM |
| Beverley | 8048 | BEV | 9.49 KM |
Nearby Listings
| Address | Price | Type | Score | Distance |
|---|---|---|---|---|
| Stanbury Road, Hull | £ 120,000 | BUY | 6 / 10 | 0.00 KM |
| Stanbury Road, Hull, East Riding of Yorkshi, HU6 | £ 125,000 | BUY | 6 / 10 | 0.01 KM |
| Boulsworth Avenue, Hull, HU6 7DZ | £ 65,000 | BUY | 6 / 10 | 0.09 KM |
| Boulsworth Avenue, Hull, HU6 | £ 50,000 | BUY | Unknown | 0.09 KM |
| Stanbury Road, Hull | £ 195,000 | BUY | 6 / 10 | 0.11 KM |
Nearby Properties
| Address | Price | Distance |
|---|---|---|
| 65 Boulsworth Avenue | £ 82,000 | 0.08 KM |
| 28 Boulsworth Avenue | £ 45,000 | 0.08 KM |
| 67 Boulsworth Avenue | £ 100,000 | 0.08 KM |
| 15 Boulsworth Avenue | £ 105,000 | 0.08 KM |
| 57 Boulsworth Avenue | £ 78,000 | 0.08 KM |