TR
Marsden Road, London, SE15
By Truepenny's Property Consultants
£ 850,000
Reviews
3 out of 5 stars
Truepenny's Property Consultants says ..
This beautifully presented period home is set on a picturesque tree-lined street, boasting an attractive Victorian façade with striking brickwork, arched doorways, and charming architectural details.
Property Oracle says ..
Therefore, we give this property 7 / 10. *Disclaimer: This is our option and does constitute a recommendation or financial advice. Do your own research. *
- Price
- 7
- Condition
- 9
- Location
- 8
- Land
- 7
- Bedrooms
- 2
- Bathrooms
- 1
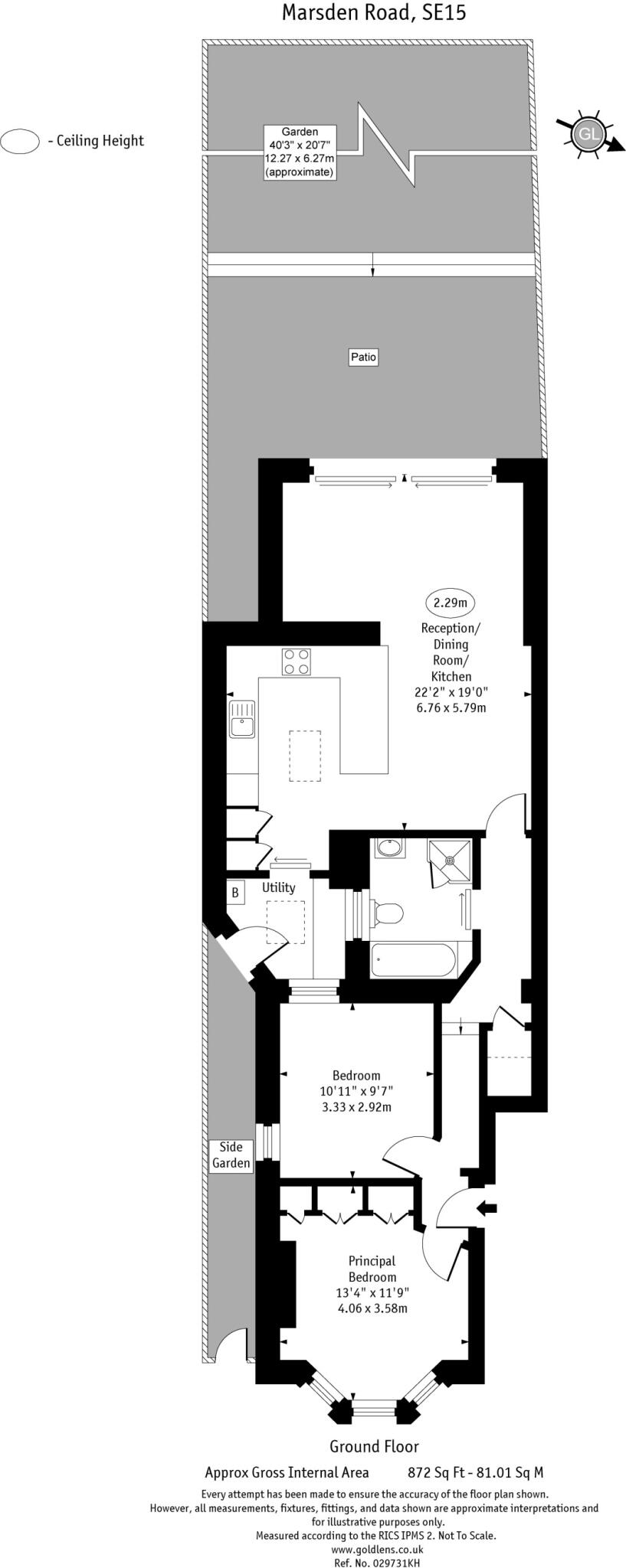
- Sqft (est)
- 1,510.18
The heatmap indicates the level of crime in the area. The color of the heatmap indicates the crime severity and recency.
Metrics Year-on-Year
- Average area value
- 905,000.00 £Increased by 17.49 %
- Est sale value
- 1,856,011.22 £Increased by 35.35 %
- Average area rental value
- 1,965.00 £/moDecreased by 22.91 %
- Est letting value
- 3,020.36 £/moDecreased by 33.33 %
- Est rental Yield
- 2.61 %Decreased by 34.26 %
- Crime Rate
- 2.00 %Unchanged by 0.00 %
from 770,293.00 £
from 1,371,243.44 £
from 2,549.00 £/mo
from 4,530.54 £/mo
from 3.97 %
from 2.00 %
Agent Activity
Truepenny's Property Consultants created the listing.
Nearby Schools
| Name | Type | Ofsted | Distance |
|---|---|---|---|
| St John'S And St Clement'S Church Of England Primary School | Voluntary Aided School | Good | 0.30 KM |
| St John'S And St Clement'S Primary School Co Hearing Impaired Unit | Miscellaneous | 0.30 KM | |
| The Belham Primary School | Free Schools | Good | 0.32 KM |
| Goose Green Primary And Nursery School | Academy Converter | Good | 0.33 KM |
| Bellenden Primary School | Community School | Good | 0.76 KM |
Images
Nearby Streets
| Name | Average Price | Average Sqft | Distance |
|---|---|---|---|
| McDermott Road | £ 0 | 0 | 0.00 KM |
| Quorn Road | £ 0 | 0 | 0.00 KM |
| Shawbury Road | £ 0 | 0 | 0.00 KM |
| Grove Vale | £ 0 | 0 | 0.00 KM |
| Pelham Close | £ 0 | 0 | 0.00 KM |
Nearby Transport
| Name | NLC | TLC | Distance |
|---|---|---|---|
| East Dulwich | 5358 | EDW | 0.71 KM |
| Peckham Rye | 5423 | PMR | 0.93 KM |
| Denmark Hill | 5421 | DMK | 1.73 KM |
| North Dulwich | 5429 | NDL | 1.79 KM |
| Queens Road Peckham | 5424 | QRP | 2.21 KM |
Nearby Listings
| Address | Price | Type | Score | Distance |
|---|---|---|---|---|
| Marsden Road, London, SE15 | £ 850,000 | BUY | 7 / 10 | 0.00 KM |
| Marsden Road, London, SE15 | £ 1,275,000 | BUY | 7 / 10 | 0.01 KM |
| Muschamp Road, Peckham, SE15 | £ 675,000 | BUY | 7 / 10 | 0.03 KM |
| Marsden Road, Peckham | £ 700,000 | BUY | 8 / 10 | 0.03 KM |
| Ondine Road, London, SE15 | £ 1,200,000 | BUY | 5 / 10 | 0.09 KM |
Nearby Properties
| Address | Price | Distance |
|---|---|---|
| 30 Marsden Road | £ 495,000 | 0.00 KM |
| 13c Marsden Road | £ 285,000 | 0.00 KM |
| 37 Marsden Road | £ 535,000 | 0.00 KM |
| 7 Marsden Road | £ 660,000 | 0.00 KM |
| 9 Marsden Road | £ 1,145,000 | 0.00 KM |