Redstone Court, Narberth
FI

Redstone Court, Narberth

By Finest

£ 425,000

Reviews

3 out of 5 stars

Finest says ..

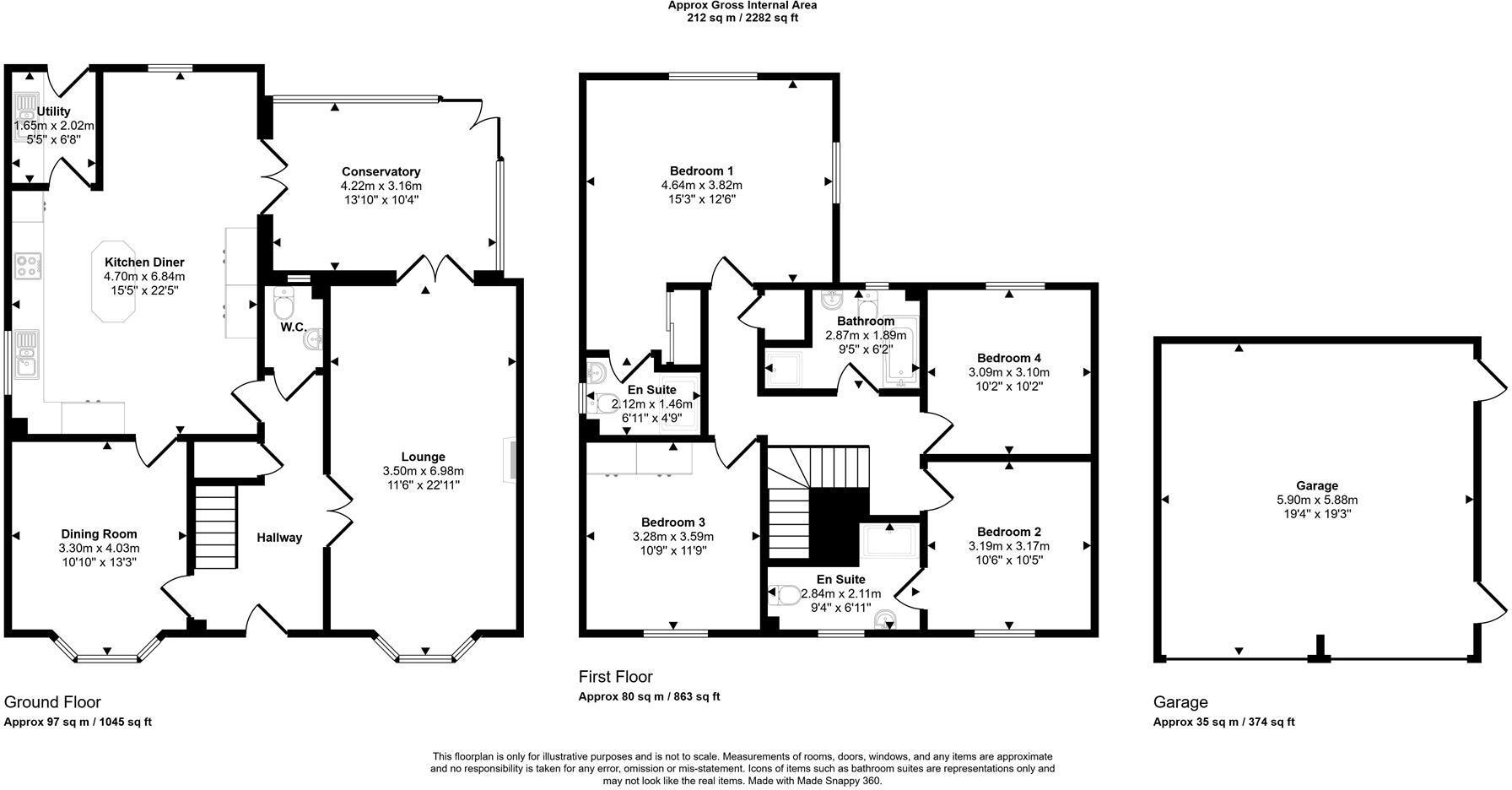
Welcome to 69 Redstone Court. Once the show home for the development, this beautifully presented family home was built in 2013 and is of a modern timber framed construction. The layout of the property briefly comprises of an entrance hall with generous under stairs storage cupboard, liv...

Property Oracle says ..

This is a detached property located on Redstone Court, Narberth. It features four bedrooms and two bathrooms. The property appears to be in generally good condition, with a modern kitchen and bathrooms. It has a garden and is located within a reasonable distance of schools and transportation links. While some interior aspects may benefit from updating, the property presents a solid opportunity in the Narberth area.

Therefore, we give this property 6 / 10. *Disclaimer: This is our option and does constitute a recommendation or financial advice. Do your own research. *

Price
7
Condition
7
Location
7
Land
6
Bedrooms
4
Bathrooms
2

The heatmap indicates the level of crime in the area. The color of the heatmap indicates the crime severity and recency.

Metrics Year-on-Year

Average area value
278,905.00 £
Increased by 2.67 %
from 271,663.00 £
Average area rental value
800.00 £/mo
Decreased by 34.53 %
from 1,222.00 £/mo
Est rental Yield
3.44 %
Decreased by 36.30 %
from 5.40 %
Crime Rate
6.00 %
Unchanged by 0.00 %
from 6.00 %

Agent Activity

  • Finest created the listing.

Nearby Schools

NameTypeOfstedDistance
Landsker EducationWelsh Establishment0.46 KM
Narberth Cp SchoolWelsh Establishment0.55 KM
Templeton C.P. SchoolWelsh Establishment3.17 KM
Redhill High SchoolWelsh Establishment5.69 KM
Brynconin CpWelsh Establishment6.44 KM

Images

IMG_1324.JPG 22 (61).jpg 16 (97).jpg 28 (19).jpg 11 - 2025-12-13T103402.877.jpg 14 - 2025-12-13T103404.405.jpg 17 (95).jpg 18 (84).jpg 8 - 2025-12-13T103358.721.jpg 2 - 2025-12-13T103351.738.jpg 1 - 2025-12-13T103317.614.jpg 31 (8).jpg 25 (39).jpg IMG_1302.JPG IMG_1300.JPG IMG_1299.JPG 15 - 2025-12-13T103405.445.jpg 20 (75).jpg 10 - 2025-12-13T103401.339.jpg 9 - 2025-12-13T103400.216.jpg 4 - 2025-12-13T103354.284.jpg 3 - 2025-12-13T103353.385.jpg 7 - 2025-12-13T103357.341.jpg 5 - 2025-12-13T103356.532.jpg 32 (8).jpg IMG_1322.JPG IMG_1310.JPG 23 (50).jpg IMG_1327.JPG 29 (13).jpg 30 (11).jpg

Nearby Streets

NameAverage PriceAverage SqftDistance
Redstone Court £ 000.00 KM
The Crescent £ 425,00000.00 KM
Moorfield Road £ 450,00000.00 KM
Church Street £ 170,00000.00 KM
Cox Hill £ 000.00 KM

Nearby Transport

NameNLCTLCDistance
Narberth4098NAR1.71 KM
Clunderwen4070CUW4.25 KM
Kilgetty4083KGT8.47 KM
Saundersfoot4108SDF9.47 KM

Nearby Listings

AddressPriceTypeScoreDistance
Redstone Court, Narberth £ 425,000BUY6 / 100.00 KM
Redstone Court, Narberth, SA67 £ 300,000BUY7 / 100.09 KM
Redstone Court, Narberth £ 385,000BUY7 / 100.14 KM
Redstone Road, Narberth, SA67 £ 550,000BUY6 / 100.20 KM
, Narberth, SA67 7ES £ 12,950BUY7 / 100.33 KM

Nearby Properties

AddressPriceDistance
10 Redstone Court £ 112,0000.08 KM
21 Redstone Court £ 275,0000.08 KM
29 Redstone Court £ 231,0000.08 KM
41 Redstone Court £ 250,0000.08 KM
25 Redstone Court £ 145,0000.08 KM