Millstream Close, Whitstable
CH

Millstream Close, Whitstable

By Christopher Hodgson

£ 385,000

Reviews

3 out of 5 stars

Christopher Hodgson says ..

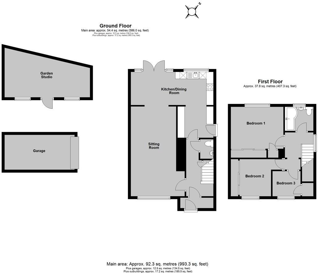
A spacious semi-detached family home in a desirable location moments from Whitstable station and a short stroll to the bustling town centre with it's variety of boutique shops and highly regarded restaurants. Whitstable's popular beach and famous working harbour are just over half a mile distant....

Property Oracle says ..

Therefore, we give this property 7 / 10. *Disclaimer: This is our option and does constitute a recommendation or financial advice. Do your own research. *

Price
7
Condition
8
Location
8
Land
7
Bedrooms
3
Bathrooms
1

The heatmap indicates the level of crime in the area. The color of the heatmap indicates the crime severity and recency.

Metrics Year-on-Year

Average area value
467,833.00 £
Increased by 3.56 %
from 451,737.00 £
Average area rental value
1,383.00 £/mo
Increased by 4.30 %
from 1,326.00 £/mo
Est rental Yield
3.55 %
Increased by 0.85 %
from 3.52 %
Crime Rate
20.00 %
Unchanged by 0.00 %
from 20.00 %

Agent Activity

  • Christopher Hodgson created the listing.

Nearby Schools

NameTypeOfstedDistance
Westmeads Community Infant SchoolCommunity SchoolOutstanding0.45 KM
Whitstable And Seasalter Endowed Church Of England Junior SchoolVoluntary Aided SchoolOutstanding0.68 KM
Whitstable Junior SchoolFoundation SchoolGood0.77 KM
Isp Polar Re Start CentreOther Independent Special School0.80 KM
St Alphege Church Of England Infant SchoolVoluntary Controlled SchoolGood0.81 KM

Images

Millstream Close, Whitstable Millstream Close, Whitstable Millstream Close, Whitstable Millstream Close, Whitstable Millstream Close, Whitstable Millstream Close, Whitstable Millstream Close, Whitstable Millstream Close, Whitstable Millstream Close, Whitstable Millstream Close, Whitstable Millstream Close, Whitstable Millstream Close, Whitstable Millstream Close, Whitstable Millstream Close, Whitstable Millstream Close, Whitstable Millstream Close, Whitstable Millstream Close, Whitstable

Nearby Streets

NameAverage PriceAverage SqftDistance
Old Millfield Works £ 000.00 KM
Freeman's Yard £ 000.00 KM
Willow Court £ 000.00 KM
Northwood Road £ 449,99500.00 KM
Tower Road £ 000.00 KM

Nearby Transport

NameNLCTLCDistance
Whitstable5196WHI0.18 KM
Chestfield And Swalecliffe5200CSW3.90 KM
Canterbury West5007CBW9.40 KM
Herne Bay5174HNB9.54 KM

Nearby Listings

AddressPriceTypeScoreDistance
Millstream Close, Whitstable £ 385,000BUY7 / 100.00 KM
Millstream Close, Whitstable, CT5 £ 415,000BUY7 / 100.01 KM
Millstream Close, Whitstable £ 410,000BUYUnknown0.01 KM
Millstream Close, Whitstable, Kent, CT5 £ 375,000BUY6 / 100.06 KM
Railway Avenue, Whitstable £ 600,000BUY7 / 100.08 KM

Nearby Properties

AddressPriceDistance
32 Mill Stream Close £ 355,0000.07 KM
11 Mill Stream Close £ 265,5000.07 KM
8 Mill Stream Close £ 400,0000.07 KM
21 Mill Stream Close £ 342,5000.07 KM
14 Mill Stream Close £ 200,0000.07 KM