Bridge House, Station Road, Cuffley
By JR Property Services
£ 334,995
Reviews
2 out of 5 stars
JR Property Services says ..
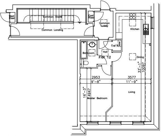
Spacious 1-Bedroom Top Floor Apartment in Gated Development – Chain Free A well-presented and spacious one-bedroom top-floor apartment in a highly sought-after gated development in the heart of Cuffley. Offered chain free, this modern home features a stylish bathroom, gas-fired underfloo...
Property Oracle says ..
Bridge House, located on Station Road in Cuffley, Hertfordshire, is a one-bedroom apartment listed at £334,995. The property’s key advantage is its proximity to Cuffley train station, making it ideal for commuters. The interior is modern and well-presented, featuring a contemporary kitchen and bathroom. Images show a light and airy living space with good natural light. However, a significant drawback is the lack of private outdoor space, such as a garden. The property is part of a larger development, with access to a communal parking area, as shown in photos. The overall condition is good, and the apartment appears well-maintained. While the location offers good transport links and proximity to a well-regarded school, the lack of private land and limited overall living space may influence potential buyers. The absence of detailed information on the property’s square footage and pricing of comparable properties (neighbouring properties and properties in nearby streets) unfortunately hinder a conclusive assessment on the overall value for money and price appropriateness. Further information about the apartment’s size in square feet, alongside the square footage of comparable properties, is needed for a more comprehensive analysis of price competitiveness in the local market.
Therefore, we give this property 5 / 10. *Disclaimer: This is our option and does constitute a recommendation or financial advice. Do your own research. *
- Price
- 6
- Condition
- 8
- Location
- 7
- Land
- 1
- Bedrooms
- 1
- Bathrooms
- 1
- Sqft (est)
- 10,097.00
The heatmap indicates the level of crime in the area. The color of the heatmap indicates the crime severity and recency.
Metrics Year-on-Year
- Average area value
- 1,009,989.00 £Decreased by 19.35 %
- Est sale value
- 5,795,678.00 £Increased by 4.17 %
- Average area rental value
- 1,648.00 £/moDecreased by 66.81 %
- Est letting value
- 0.00 £/moDecreased by 100.00 %
- Est rental Yield
- 1.96 %Decreased by 58.82 %
- Crime Rate
- 60.00 %Unchanged by 0.00 %
Agent Activity
JR Property Services created the listing.
Nearby Schools
| Name | Type | Ofsted | Distance |
|---|---|---|---|
| Cuffley School | Foundation School | Good | 0.41 KM |
| Goffs Oak Primary & Nursery School | Community School | Good | 2.08 KM |
| Woodside Primary School | Academy Converter | 2.35 KM | |
| Ponsbourne St Mary'S Church Of England Primary School | Voluntary Controlled School | Good | 2.42 KM |
| Northaw Church Of England Primary School | Voluntary Aided School | Good | 3.92 KM |
Images
Nearby Streets
| Name | Average Price | Average Sqft | Distance |
|---|---|---|---|
| Church Close | £ 315,000 | 0 | 0.00 KM |
| Coronation Avenue | £ 0 | 0 | 0.00 KM |
| Kingsway | £ 0 | 0 | 0.00 KM |
| Highfields | £ 1,099,975 | 0 | 0.00 KM |
| Warwick Close | £ 0 | 0 | 0.00 KM |
Nearby Transport
| Name | NLC | TLC | Distance |
|---|---|---|---|
| Cuffley | 6008 | CUF | 0.34 KM |
| Crews Hill | 6007 | CWH | 2.67 KM |
| Gordon Hill | 6028 | GDH | 5.34 KM |
| Bayford | 6006 | BAY | 5.87 KM |
| Enfield Chase | 6010 | ENC | 6.54 KM |
Nearby Listings
| Address | Price | Type | Score | Distance |
|---|---|---|---|---|
| Bridge House, Station Road, Cuffley | £ 334,995 | BUY | 5 / 10 | 0.00 KM |
| Bridge House, Station Road, Cuffley | £ 399,950 | BUY | 6 / 10 | 0.04 KM |
| Theobalds Road, Cuffley, EN6 | £ 700,000 | BUY | 7 / 10 | 0.06 KM |
| Maynard Place, Cuffley | £ 295,000 | BUY | 6 / 10 | 0.06 KM |
| Maynards Place, Cuffley | £ 299,950 | BUY | Unknown | 0.06 KM |
Nearby Properties
| Address | Price | Distance |
|---|---|---|
| 4a Station Road | £ 130,000 | 0.01 KM |
| 20 Maynard Place | £ 195,000 | 0.07 KM |
| 21 Maynard Place | £ 276,000 | 0.07 KM |
| 11 Maynard Place | £ 142,000 | 0.07 KM |
| 17 Maynard Place | £ 217,000 | 0.07 KM |