Spencer Harvey says ..
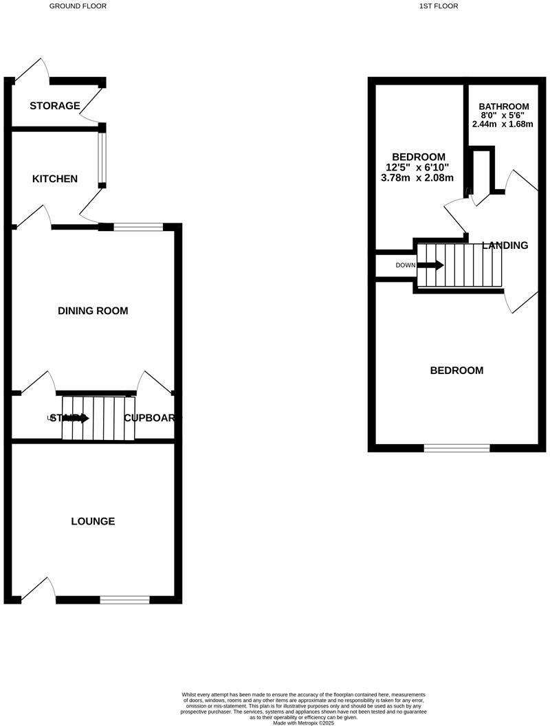
Fantastic Renovation Opportunity – Sought-After Location Near Reddish Vale A superb opportunity to acquire this two-bedroom property in need of full renovation, ideal for investors, developers, or those looking to put their own stamp on a home. Situated close to the beautiful Re...
Property Oracle says ..
Therefore, we give this property 5 / 10. *Disclaimer: This is our option and does constitute a recommendation or financial advice. Do your own research. *
- Price
- 7
- Condition
- 3
- Location
- 6
- Land
- 5
- Bedrooms
- 2
- Bathrooms
- 1
- Sqft (est)
- 128.79
The heatmap indicates the level of crime in the area. The color of the heatmap indicates the crime severity and recency.
Metrics Year-on-Year
- Average area value
- 198,564.00 £Increased by 9.98 %
- Est sale value
- 41,341.59 £Increased by 59.70 %
- Average area rental value
- 1,053.00 £/moIncreased by 1.06 %
- Est letting value
- 128.79 £/moUnchanged by 0.00 %
- Est rental Yield
- 6.36 %Decreased by 8.23 %
- Crime Rate
- 0.00 %
from 180,547.00 £
from 25,886.79 £
from 1,042.00 £/mo
from 128.79 £/mo
from 6.93 %
from 0.00 %
Agent Activity
Spencer Harvey created the listing.
Nearby Schools
| Name | Type | Ofsted | Distance |
|---|---|---|---|
| St Mary'S Roman Catholic Primary School Stockport | Voluntary Aided School | Requires improvement | 0.55 KM |
| Moat House | Pupil Referral Unit | Outstanding | 0.56 KM |
| Penarth Group School | Other Independent School | Good | 0.78 KM |
| Whitehill Primary School | Community School | Good | 0.92 KM |
| All Saints Church Of England Primary School Stockport | Voluntary Controlled School | Good | 1.01 KM |
Images
Nearby Streets
| Name | Average Price | Average Sqft | Distance |
|---|---|---|---|
| Manvers Street | £ 0 | 0 | 0.00 KM |
| Walmsley Street | £ 0 | 0 | 0.00 KM |
| Rose Street | £ 235,000 | 0 | 0.00 KM |
| Coronation Street | £ 0 | 0 | 0.00 KM |
| Scott Close | £ 0 | 0 | 0.00 KM |
Nearby Transport
| Name | NLC | TLC | Distance |
|---|---|---|---|
| Stockport | 2771 | SPT | 1.58 KM |
| Reddish South | 2857 | RDS | 1.85 KM |
| Heaton Chapel | 2861 | HTC | 2.29 KM |
| Brinnington | 2603 | BNT | 3.03 KM |
| Davenport | 2770 | DVN | 3.23 KM |
Nearby Listings
| Address | Price | Type | Score | Distance |
|---|---|---|---|---|
| Manvers Street, Stockport | £ 175,000 | BUY | 5 / 10 | 0.00 KM |
| Manvers street, Stockport | £ 90,000 | BUY | 4 / 10 | 0.01 KM |
| Manvers Street, Stockport, Greater Manchester, SK5 | £ 175,000 | BUY | 5 / 10 | 0.02 KM |
| Manvers Street, Reddish | £ 180,000 | BUY | 7 / 10 | 0.02 KM |
| Pearson Street, South Reddish, Stockport, SK5 | £ 210,000 | BUY | 6 / 10 | 0.06 KM |
Nearby Properties
| Address | Price | Distance |
|---|---|---|
| 4 Pearson Street | £ 115,000 | 0.06 KM |
| 12 Pearson Street | £ 160,000 | 0.06 KM |
| 10 Pearson Street | £ 39,950 | 0.06 KM |
| 6 Pearson Street | £ 93,000 | 0.06 KM |
| 5 Pearson Street | £ 158,000 | 0.06 KM |