Hunters says ..
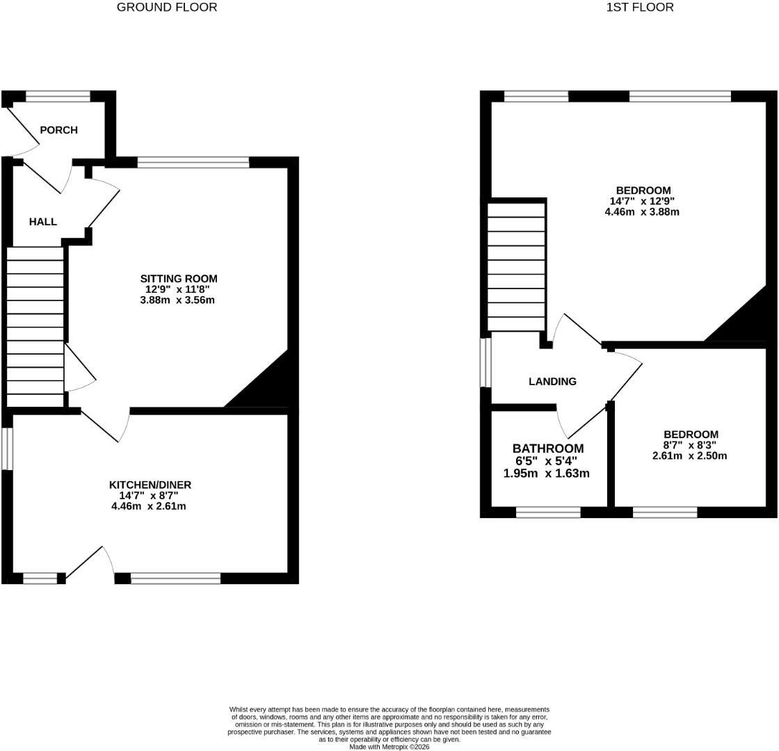
This delightful semi-detached two bedroom cottage offers a perfect blend of comfort and convenience. With two well-proportioned bedrooms, this property is ideal for small families, couples, or individuals seeking a peaceful retreat and is ideally situated within easy access to the beach and Hythe...
Property Oracle says ..
This is a two-bedroom semi-detached house in Hythe. The property appears to be in good condition, with a modern kitchen and bathroom. It has a small garden and is located close to local schools and amenities. The listing price seems reasonable for the area and the property’s features. The property is located close to several schools, including Hythe Bay Cofe Primary School which is rated as ‘Good’ by Ofsted. The nearest train station is Sandling, which is approximately 2.92 KM away.
Therefore, we give this property 6 / 10. *Disclaimer: This is our option and does constitute a recommendation or financial advice. Do your own research. *
- Price
- 7
- Condition
- 7
- Location
- 7
- Land
- 6
- Bedrooms
- 2
- Bathrooms
- 1
- Sqft (est)
- 562.31
The heatmap indicates the level of crime in the area. The color of the heatmap indicates the crime severity and recency.
Metrics Year-on-Year
- Average area value
- 695,750.00 £Increased by 35.80 %
- Est sale value
- 327,826.73 £Increased by 15.22 %
- Average area rental value
- 1,400.00 £/moDecreased by 11.56 %
- Est letting value
- 562.31 £/moUnchanged by 0.00 %
- Est rental Yield
- 2.41 %Decreased by 35.04 %
- Crime Rate
- 36.00 %Unchanged by 0.00 %
Agent Activity
Hunters created the listing.
Nearby Schools
| Name | Type | Ofsted | Distance |
|---|---|---|---|
| Hythe Bay Children'S Centre | Children's Centre | 0.25 KM | |
| Hythe Bay Cofe Primary School | Voluntary Controlled School | Good | 0.34 KM |
| Saltwood Cofe Primary School | Voluntary Aided School | Outstanding | 1.33 KM |
| St Augustine'S Catholic Primary School | Voluntary Aided School | Good | 1.46 KM |
| Brockhill Park Performing Arts College | Academy Converter | Good | 2.21 KM |
Images
Nearby Streets
| Name | Average Price | Average Sqft | Distance |
|---|---|---|---|
| St. Leonards Mews | £ 0 | 0 | 0.00 KM |
| Chapel Mews | £ 0 | 0 | 0.00 KM |
| Oak Hill Passage | £ 1,250,000 | 0 | 0.00 KM |
| Mount Street | £ 325,000 | 0 | 0.00 KM |
| Church Hill | £ 600,000 | 0 | 0.00 KM |
Nearby Transport
| Name | NLC | TLC | Distance |
|---|---|---|---|
| Sandling | 5025 | SDG | 2.92 KM |
| Westenhanger | 5030 | WHA | 5.57 KM |
| Folkestone West | 5027 | FKW | 8.27 KM |
| Folkestone Central | 5035 | FKC | 9.93 KM |
Nearby Listings
| Address | Price | Type | Score | Distance |
|---|---|---|---|---|
| Windmill Street, Hythe | £ 325,000 | BUY | 6 / 10 | 0.00 KM |
| Newmans Close, Hythe, CT21 | £ 450,000 | BUY | 6 / 10 | 0.02 KM |
| Newmans Close, Hythe, Kent | £ 400,000 | BUY | 6 / 10 | 0.03 KM |
| Newmans Close, Hythe, Kent | £ 165,500 | BUY | Unknown | 0.03 KM |
| Newmans Close, Hythe, Kent | £ 264,500 | BUY | 7 / 10 | 0.03 KM |
Nearby Properties
| Address | Price | Distance |
|---|---|---|
| 13 Newmans Close | £ 285,000 | 0.03 KM |
| 9 Newmans Close | £ 225,000 | 0.03 KM |
| 16 Newmans Close | £ 289,000 | 0.03 KM |
| 5 Newmans Close | £ 220,000 | 0.03 KM |
| 14 Newmans Close | £ 210,000 | 0.03 KM |