Burnap & Abel says ..
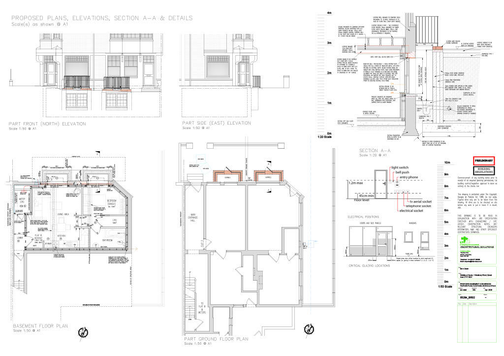
Draft Details...FOR SALE THROUGH BURNAP + ABEL...Planning Application Number - 24/01162 | New 999 Year Lease On Completion | Fantastic Investment Opportunity – Lower Ground Floor Unit with Planning Permission | A rare and exciting opportunity to secure a lower ground floor unit in the Do...
Property Oracle says ..
Therefore, we give this property 5 / 10. *Disclaimer: This is our option and does constitute a recommendation or financial advice. Do your own research. *
- Price
- 9
- Condition
- 5
- Location
- 7
- Land
- 1
- Bedrooms
- 1
- Bathrooms
- 0
The heatmap indicates the level of crime in the area. The color of the heatmap indicates the crime severity and recency.
Metrics Year-on-Year
- Average area value
- 147,000.00 £Decreased by 39.48 %
- Average area rental value
- 861.00 £/moDecreased by 14.07 %
- Est rental Yield
- 7.03 %Increased by 42.02 %
- Crime Rate
- 5.00 %Unchanged by 0.00 %
from 242,908.00 £
from 1,002.00 £/mo
from 4.95 %
from 5.00 %
Agent Activity
Burnap & Abel created the listing.
Nearby Schools
| Name | Type | Ofsted | Distance |
|---|---|---|---|
| Vale View Community School | Academy Converter | 0.46 KM | |
| Priory Fields School | Academy Converter | Good | 0.63 KM |
| The Daisy Children'S Centre | Children's Centre Linked Site | 0.90 KM | |
| St Martin'S School | Academy Converter | Good | 1.13 KM |
| Dover Grammar School For Boys | Foundation School | Good | 1.15 KM |
Images
Nearby Streets
| Name | Average Price | Average Sqft | Distance |
|---|---|---|---|
| Belgrave Road | £ 230,000 | 0 | 0.00 KM |
| Monins Road | £ 210,000 | 0 | 0.00 KM |
| Bastion Road | £ 325,000 | 0 | 0.00 KM |
| South Military Road | £ 0 | 0 | 0.00 KM |
| West Street | £ 0 | 0 | 0.00 KM |
Nearby Transport
| Name | NLC | TLC | Distance |
|---|---|---|---|
| Dover Priory | 5033 | DVP | 0.91 KM |
| Kearsney (Kent) | 5038 | KSN | 4.21 KM |
| Martin Mill | 5040 | MTM | 7.77 KM |
Nearby Listings
| Address | Price | Type | Score | Distance |
|---|---|---|---|---|
| Westbury Road, Dover, CT17 | £ 30,000 | BUY | 5 / 10 | 0.00 KM |
| Westbury Road, Dover | £ 230,000 | BUY | 6 / 10 | 0.07 KM |
| Westbury Road, Dover, Kent, CT17 | £ 180,000 | BUY | 5 / 10 | 0.07 KM |
| Westbury Crescent, Dover, CT17 | £ 220,000 | BUY | 6 / 10 | 0.08 KM |
| Westbury Crescent, DOVER, Kent, CT17 | £ 240,000 | BUY | 6 / 10 | 0.09 KM |
Nearby Properties
| Address | Price | Distance |
|---|---|---|
| 48 Westbury Road | £ 225,000 | 0.01 KM |
| 32 Westbury Road | £ 175,000 | 0.01 KM |
| 3 Westbury Road | £ 195,000 | 0.01 KM |
| 33 Westbury Road | £ 153,000 | 0.01 KM |
| 10 Westbury Road | £ 197,000 | 0.01 KM |