Ruth Street, All Saints Garden, Chatham, Kent
By Homewise
£ 211,500
Reviews
3 out of 5 stars
Homewise says ..
Guide price for a Home for Life Lifetime Lease for OVER 60s tailored to your personal circumstances and requirements. Your price may vary. OVER 60s could benefit from SAVINGS of up to 59% from the market value with a one-off payment for a Lifetime Lease on this property. £211,500 GUIDE PRIC...
Property Oracle says ..
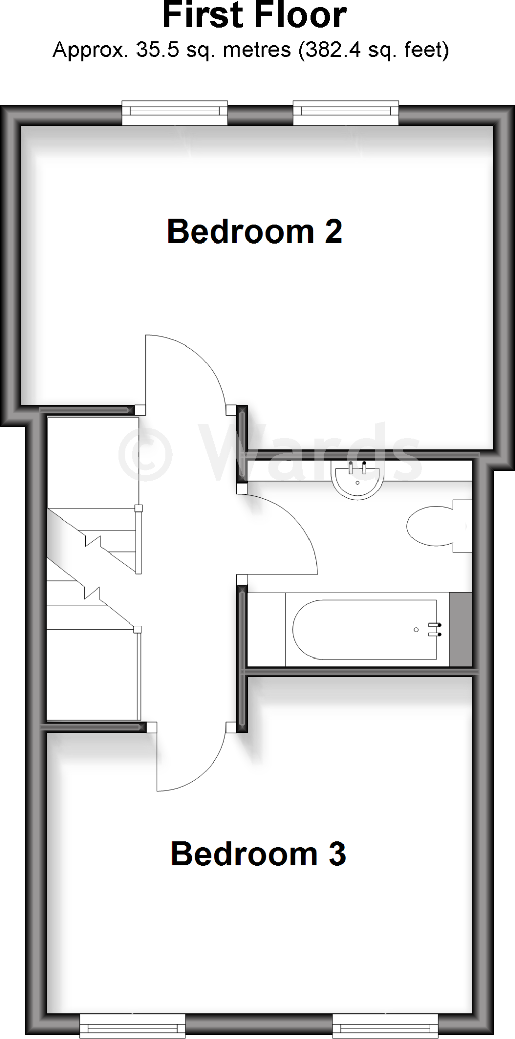
This is a three-bedroom terraced house in Chatham Central, Kent. The property offers convenient access to local amenities, schools, and transportation links. While the property is in reasonable condition, some areas may benefit from updating. The property includes a garden and off-street parking, which are valuable assets. The list price of £211,500 seems fair considering the location, condition, and available land.
Therefore, we give this property 7 / 10. *Disclaimer: This is our option and does constitute a recommendation or financial advice. Do your own research. *
- Price
- 8
- Condition
- 6
- Location
- 7
- Land
- 7
- Bedrooms
- 3
- Bathrooms
- 2
- Sqft (est)
- 364.00
The heatmap indicates the level of crime in the area. The color of the heatmap indicates the crime severity and recency.
Metrics Year-on-Year
- Average area value
- 281,500.00 £Increased by 3.99 %
- Est sale value
- 121,576.00 £Increased by 3.73 %
- Average area rental value
- 1,328.00 £/moIncreased by 4.08 %
- Est letting value
- 364.00 £/moUnchanged by 0.00 %
- Est rental Yield
- 5.66 %Unchanged by 0.00 %
- Crime Rate
- 6.00 %Unchanged by 0.00 %
Agent Activity
Homewise created the listing.
Nearby Schools
| Name | Type | Ofsted | Distance |
|---|---|---|---|
| All Saints Sure Start Children'S Centre | Children's Centre | 0.22 KM | |
| All Saints Church Of England Primary School | Academy Converter | Good | 0.38 KM |
| Greenvale Primary School | Community School | Good | 0.38 KM |
| Phoenix Primary School | Academy Sponsor Led | Requires improvement | 0.43 KM |
| New Road Primary School | Community School | Good | 0.48 KM |
Images
Nearby Streets
| Name | Average Price | Average Sqft | Distance |
|---|---|---|---|
| Glencoe Road | £ 0 | 0 | 0.00 KM |
| Bank Street | £ 110,000 | 0 | 0.00 KM |
| Castle Road | £ 0 | 0 | 0.00 KM |
| Magpie Hall Road | £ 90,000 | 0 | 0.00 KM |
| Mount Pleasant | £ 0 | 0 | 0.00 KM |
Nearby Transport
| Name | NLC | TLC | Distance |
|---|---|---|---|
| Chatham | 5199 | CTM | 1.40 KM |
| Gillingham (Kent) | 5169 | GLM | 2.38 KM |
| Rochester | 5203 | RTR | 2.73 KM |
| Strood (Kent) | 5191 | SOO | 4.33 KM |
| Cuxton | 5201 | CUX | 7.80 KM |
Nearby Listings
| Address | Price | Type | Score | Distance |
|---|---|---|---|---|
| Ruth Street, All Saints Garden, Chatham, Kent | £ 320,000 | BUY | 6 / 10 | 0.00 KM |
| Ruth Street, All Saints Garden, Chatham, Kent | £ 231,500 | BUY | 6 / 10 | 0.00 KM |
| Ruth Street, All Saints Garden, Chatham, Kent | £ 350,000 | BUY | 6 / 10 | 0.00 KM |
| Ruth Street, All Saints Garden, Chatham, Kent | £ 211,500 | BUY | 7 / 10 | 0.00 KM |
| Ruth Street, Chatham, Kent, ME4 | £ 315,000 | BUY | 5 / 10 | 0.03 KM |
Nearby Properties
| Address | Price | Distance |
|---|---|---|
| 9 Ruth Street | £ 215,000 | 0.02 KM |
| 13 Ruth Street | £ 203,000 | 0.02 KM |
| 22 Ruth Street | £ 160,000 | 0.02 KM |
| 28 Ruth Street | £ 172,000 | 0.02 KM |
| 14 Ruth Street | £ 175,000 | 0.02 KM |