HO
Langport Road, Somerton
By holland & odam
£ 425,000
holland & odam says ..
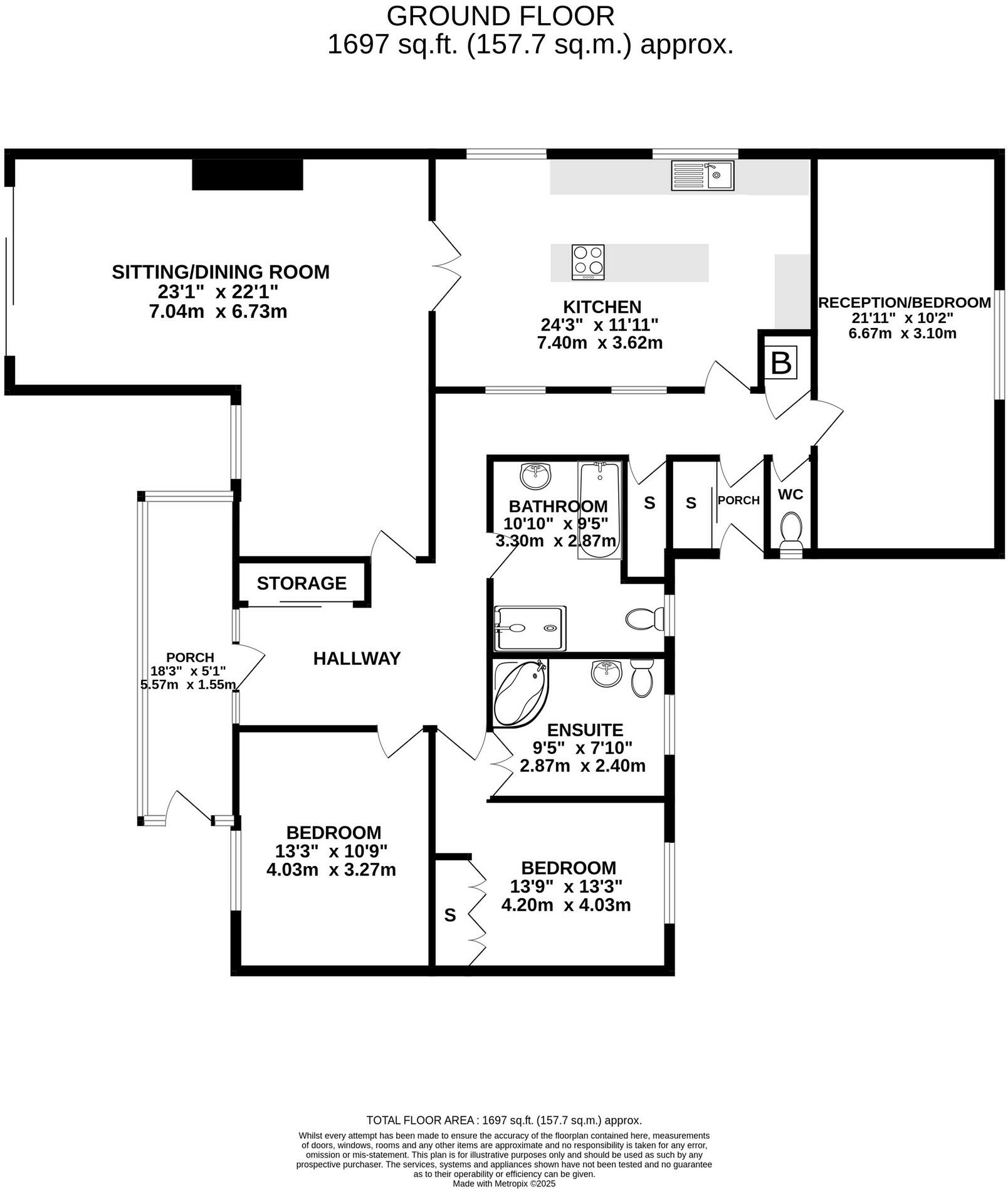
Detached bungalow offered with no onward chain and the opportunity to modernise throughout. Situated on a large corner plot, the spacious accommodation comprises, in brief - entrance porch, WC, double aspect kitchen/ diner with westerly views of open countryside, large sitting room featuring slid...
- Bedrooms
- 3
- Bathrooms
- 2
The heatmap indicates the level of crime in the area. The color of the heatmap indicates the crime severity and recency.
Metrics Year-on-Year
- Average area value
- 1,000,000.00 £Increased by 113.64 %
- Average area rental value
- 1,063.00 £/moDecreased by 28.32 %
- Est rental Yield
- 1.28 %Decreased by 66.32 %
- Crime Rate
- 8.00 %Unchanged by 0.00 %
from 468,087.00 £
from 1,483.00 £/mo
from 3.80 %
from 8.00 %
Agent Activity
holland & odam created the listing.
Nearby Schools
| Name | Type | Ofsted | Distance |
|---|---|---|---|
| King Ina Church Of England Academy | Academy Converter | Good | 1.46 KM |
| Long Sutton Cofe Primary School | Voluntary Aided School | Good | 3.06 KM |
| Compton Dundon School | Other Independent Special School | Good | 4.11 KM |
| Avalon School | Community Special School | Good | 6.88 KM |
| Brookside Community Primary School | Academy Converter | Good | 7.02 KM |
Images
Nearby Streets
| Name | Average Price | Average Sqft | Distance |
|---|---|---|---|
| Cartway Lane | £ 260,000 | 0 | 0.00 KM |
| Drayton Court | £ 0 | 0 | 0.00 KM |
| Langport Road | £ 0 | 0 | 0.00 KM |
| Thyme Walk | £ 380,000 | 0 | 0.00 KM |
| Orchid Road | £ 0 | 0 | 0.00 KM |
Nearby Listings
| Address | Price | Type | Score | Distance |
|---|---|---|---|---|
| Langport Road, Somerton | £ 425,000 | BUY | Unknown | 0.00 KM |
| Pepper Drive, Somerton | £ 419,000 | BUY | 7 / 10 | 0.24 KM |
| Pepper Drive, Somerton | £ 460,000 | BUY | 7 / 10 | 0.27 KM |
| Meadow Close, Somerton | £ 360,000 | BUY | 7 / 10 | 0.30 KM |
| Langport Road, Somerton | £ 735,000 | BUY | 7 / 10 | 0.33 KM |
Nearby Properties
| Address | Price | Distance |
|---|---|---|
| 2 Meadow Close | £ 300,000 | 0.31 KM |
| Little Home | £ 345,000 | 0.32 KM |
| Elmwood | £ 710,000 | 0.32 KM |
| Lyndhurst | £ 525,000 | 0.32 KM |
| Meadow Lea | £ 235,000 | 0.32 KM |