Old Hall Road, Glusburn, Keighley, West Yorkshire, UK, BD20
By Dale Eddison
£ 325,000
Reviews
3 out of 5 stars
Dale Eddison says ..
***NO FORWARD CHAIN*** OFFERED TO THE MARKET IS THIS TWO BEDROOM LINK DETACHED BUNGALOW SITUATED IN A POPULAR RESIDENTIAL LOCATION IN GLUSBURN.
Property Oracle says ..
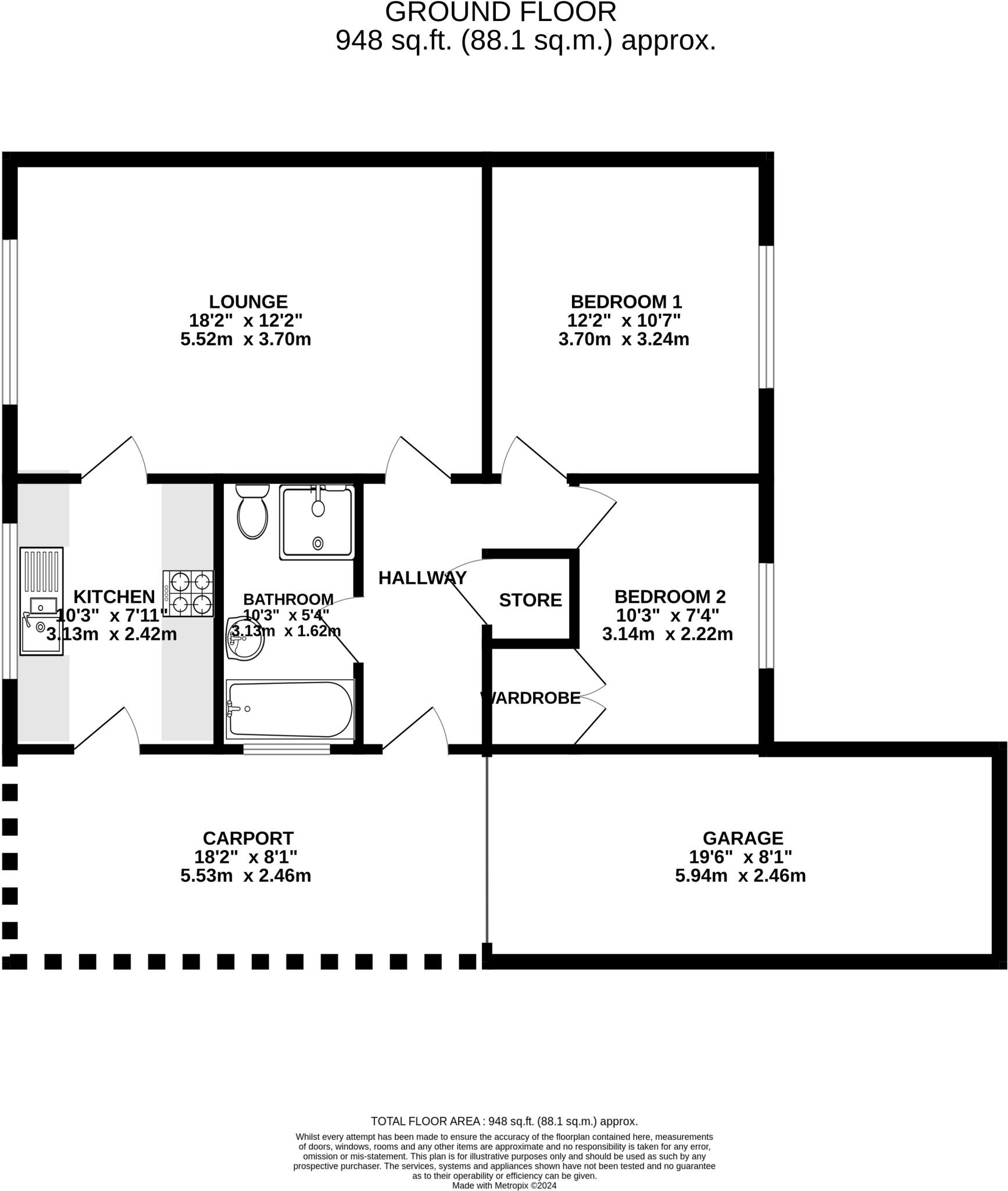
The property is a 2 bedroom bungalow located in Glusburn, North Yorkshire. It is listed at £325,000 and has 889.64 sqft of living space and a 948 sqft plot. The property appears to be in good condition, recently renovated or modernised. The images show a clean and updated interior with modern fixtures and fittings. There is also evidence of a well-maintained garden. The kitchen and bathroom appear to be recently updated. The location is in a quiet residential area, with nearby primary and secondary schools. Train stations are within a reasonable distance, providing access to other towns and cities. However, the average house price in the area is significantly higher (£771,250) than the listed price of this property. Considering the property’s condition, the size of the plot, and its location, the list price of £325,000 appears to be relatively low compared to the average house price in the area. However, the lack of information on comparable properties with similar sqft makes it difficult to give a definitive opinion on the value. The nearby properties listed have significantly lower prices, but their sqft is not provided.
Therefore, we give this property 7 / 10. *Disclaimer: This is our option and does constitute a recommendation or financial advice. Do your own research. *
- Price
- 6
- Condition
- 9
- Location
- 7
- Land
- 7
- Bedrooms
- 2
- Bathrooms
- 1
- Sqft (est)
- 889.64
- Lot (est)
- 948.00
The heatmap indicates the level of crime in the area. The color of the heatmap indicates the crime severity and recency.
Metrics Year-on-Year
- Average area value
- 1,245,000.00 £Increased by 45.13 %
- Est sale value
- 670,788.56 £Decreased by 10.13 %
- Average area rental value
- 2,513.00 £/moIncreased by 0.60 %
- Est letting value
- 889.64 £/moDecreased by 50.00 %
- Est rental Yield
- 2.42 %Decreased by 30.66 %
- Crime Rate
- 5.00 %Unchanged by 0.00 %
Agent Activity
Dale Eddison created the listing.
Nearby Schools
| Name | Type | Ofsted | Distance |
|---|---|---|---|
| Glusburn Community Primary School | Community School | Requires improvement | 1.00 KM |
| South Craven Children'S Centre | Children's Centre | 1.26 KM | |
| Sutton In Craven Church Of England Voluntary Controlled Primary School | Voluntary Controlled School | Good | 1.75 KM |
| Sutton-In-Craven Community Primary School | Community School | Good | 1.85 KM |
| South Craven School | Academy Converter | Outstanding | 2.02 KM |
Images
Nearby Streets
| Name | Average Price | Average Sqft | Distance |
|---|---|---|---|
| Mount Pleasant | £ 0 | 0 | 0.00 KM |
| Malsis Drive | £ 432,500 | 0 | 0.00 KM |
| Rye Croft Road | £ 0 | 0 | 0.00 KM |
| Malsis Lane | £ 0 | 0 | 0.00 KM |
| Beech Street | £ 0 | 0 | 0.00 KM |
Nearby Transport
| Name | NLC | TLC | Distance |
|---|---|---|---|
| Cononley | 8470 | CEY | 2.19 KM |
| Steeton And Silsden | 8469 | SON | 6.89 KM |
| Skipton | 2728 | SKI | 7.01 KM |
Nearby Listings
| Address | Price | Type | Score | Distance |
|---|---|---|---|---|
| Old Hall Road, Glusburn, Keighley, West Yorkshire, UK, BD20 | £ 325,000 | BUY | 7 / 10 | 0.00 KM |
| Bridge End, Glusburn, BD20 | £ 235,000 | BUY | 7 / 10 | 0.06 KM |
| Bridge End, Glusburn | £ 239,950 | BUY | 7 / 10 | 0.07 KM |
| 3 Old Hall Way, Glusburn BD20 8RA | £ 259,950 | BUY | 6 / 10 | 0.10 KM |
| Bridge End, Glusburn, BD20 | £ 265,000 | BUY | 7 / 10 | 0.12 KM |
Nearby Properties
| Address | Price | Distance |
|---|---|---|
| 1a Old Hall Road | £ 209,000 | 0.01 KM |
| 6 Old Hall Road | £ 160,500 | 0.01 KM |
| 1 Old Hall Road | £ 219,000 | 0.01 KM |
| 1 Old Hall Close | £ 232,500 | 0.04 KM |
| 2 Old Hall Close | £ 245,000 | 0.04 KM |