Hunnable Road, Braintree, CM7
By Michaels Property Consultants Ltd
£ 425,000
Reviews
4 out of 5 stars
Michaels Property Consultants Ltd says ..
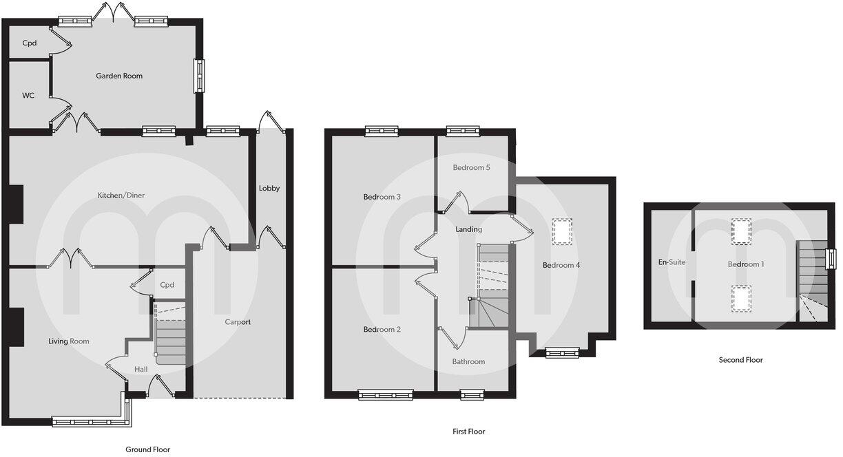
Michaels Property Consultants are delighted to present to the market this 1930s five bedroom semi detached house, conveniently positioned within short walking distance to both the Braintree High Street and the mainline railway station. Having being heavily extended, we feel this deceptively la...
Property Oracle says ..
The property is located in Braintree, Essex, close to several highly-rated primary schools and Braintree train station. The interior is well-maintained and shows no obvious signs of disrepair. The property includes a sizeable rear garden. The list price of £425,000 is slightly below the average price for the area and appears reasonable given the property’s features and location.
Therefore, we give this property 8 / 10. *Disclaimer: This is our option and does constitute a recommendation or financial advice. Do your own research. *
- Price
- 8
- Condition
- 8
- Location
- 8
- Land
- 8
- Bedrooms
- 5
- Bathrooms
- 2
- Sqft (est)
- 1,325.00
The heatmap indicates the level of crime in the area. The color of the heatmap indicates the crime severity and recency.
Metrics Year-on-Year
- Average area value
- 233,000.00 £Increased by 9.20 %
- Est sale value
- 382,925.00 £Increased by 23.50 %
- Average area rental value
- 814.00 £/moDecreased by 17.11 %
- Est letting value
- 1,325.00 £/moUnchanged by 0.00 %
- Est rental Yield
- 4.19 %Decreased by 24.09 %
- Crime Rate
- 4.00 %Unchanged by 0.00 %
Agent Activity
Michaels Property Consultants Ltd created the listing.
Nearby Schools
| Name | Type | Ofsted | Distance |
|---|---|---|---|
| St Michael'S Church Of England Voluntary Aided Primary School | Voluntary Aided School | Outstanding | 0.50 KM |
| St Francis Catholic Primary School, Braintree | Voluntary Aided School | Good | 0.76 KM |
| John Bunyan Primary School And Nursery | Community School | Good | 0.88 KM |
| Tabor Academy | Academy Converter | Good | 0.91 KM |
| The Edith Borthwick School | Community Special School | Good | 1.23 KM |
Images
Nearby Streets
| Name | Average Price | Average Sqft | Distance |
|---|---|---|---|
| Hamilton Gardens | £ 490,000 | 0 | 0.00 KM |
| Chadwic Drive | £ 0 | 0 | 0.00 KM |
| Chestnut Grove | £ 385,000 | 0 | 0.00 KM |
| Bunyan Road | £ 0 | 0 | 0.00 KM |
| High Street | £ 0 | 0 | 0.00 KM |
Nearby Transport
| Name | NLC | TLC | Distance |
|---|---|---|---|
| Braintree | 6801 | BTR | 1.52 KM |
| Braintree Freeport | 2053 | BTP | 2.94 KM |
| Cressing (Essex) | 6837 | CES | 4.78 KM |
| White Notley | 6846 | WNY | 7.26 KM |
Nearby Listings
| Address | Price | Type | Score | Distance |
|---|---|---|---|---|
| Hunnable Road, Braintree, CM7 | £ 425,000 | BUY | 8 / 10 | 0.00 KM |
| Clydesdale Road, Braintree, CM7 | £ 350,000 | BUY | Unknown | 0.09 KM |
| Harold Road, Braintree, Essex, CM7 | £ 350,000 | BUY | Unknown | 0.12 KM |
| Old St. Michaels Drive, Braintree | £ 240,000 | BUY | 6 / 10 | 0.13 KM |
| Old St Michaels Drive, Braintree | £ 225,000 | BUY | 6 / 10 | 0.13 KM |
Nearby Properties
| Address | Price | Distance |
|---|---|---|
| 12 Hunnable Road | £ 313,000 | 0.01 KM |
| 14 Hunnable Road | £ 230,000 | 0.01 KM |
| 27 Hunnable Road | £ 226,000 | 0.01 KM |
| 17 Hunnable Road | £ 300,000 | 0.01 KM |
| 19 Hunnable Road | £ 386,000 | 0.01 KM |