5 St Saviours Hill, Seabrook Road, Hythe, Kent, CT21
By Savills New Homes
£ 580,000
Reviews
3 out of 5 stars
Savills New Homes says ..
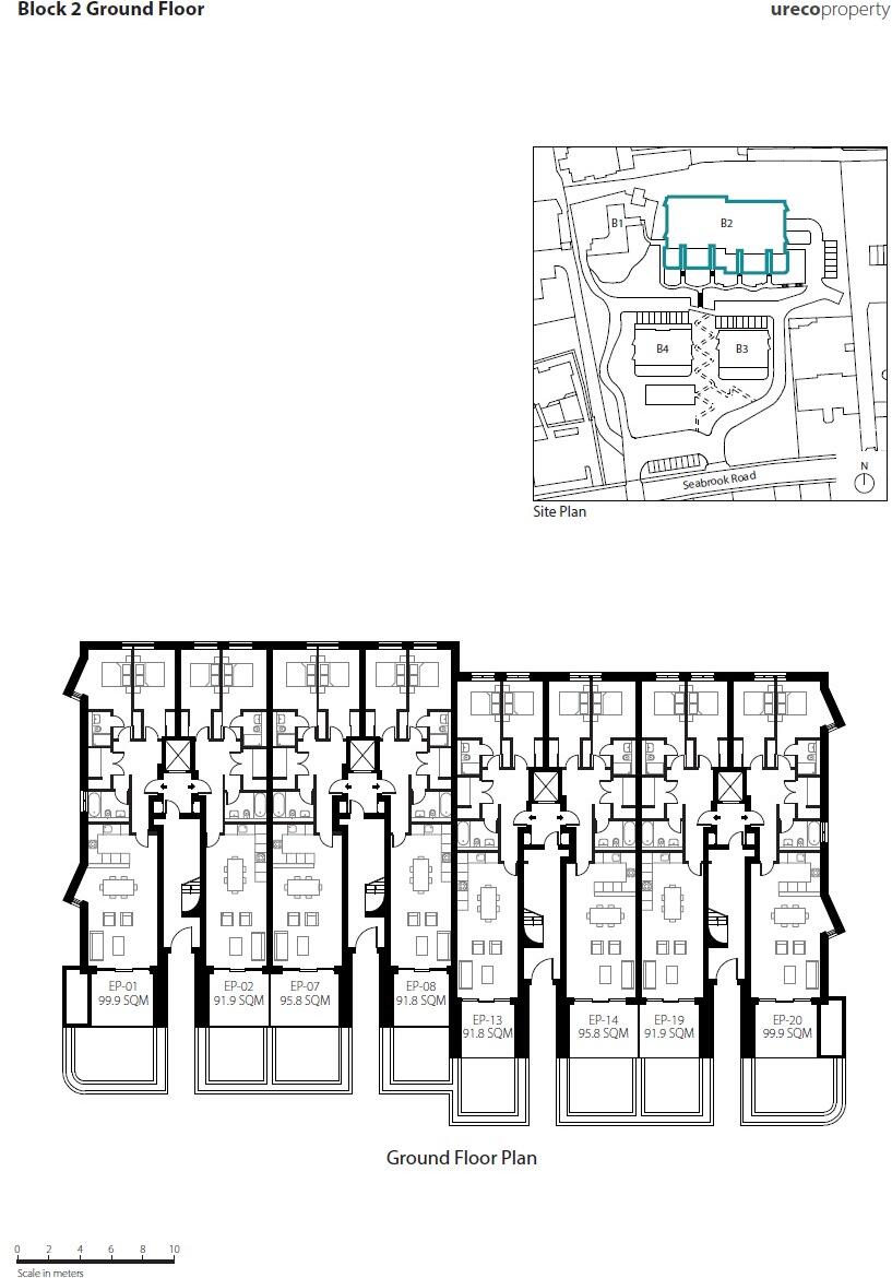
Open Day 22nd November 10am - 2pm A stylish 2-bedroom ground floor apartment in Hythe, Kent – designed by award-winning architects, boasting a spacious terrace and high-spec finishes.
Property Oracle says ..
This is a modern apartment located in a desirable coastal town. The property appears to be in excellent condition and offers some outdoor space. While the price is in line with the local average, further investigation into the square footage is recommended to assess its value fully.
Therefore, we give this property 7 / 10. *Disclaimer: This is our option and does constitute a recommendation or financial advice. Do your own research. *
- Price
- 6
- Condition
- 9
- Location
- 7
- Land
- 6
- Bedrooms
- 2
- Bathrooms
- 2
The heatmap indicates the level of crime in the area. The color of the heatmap indicates the crime severity and recency.
Metrics Year-on-Year
- Average area value
- 695,750.00 £Increased by 35.80 %
- Average area rental value
- 1,400.00 £/moDecreased by 11.56 %
- Est rental Yield
- 2.41 %Decreased by 35.04 %
- Crime Rate
- 17.00 %Unchanged by 0.00 %
Agent Activity
Savills New Homes created the listing.
Nearby Schools
| Name | Type | Ofsted | Distance |
|---|---|---|---|
| Seabrook Church Of England Primary School | Voluntary Controlled School | Outstanding | 1.29 KM |
| Folkestone, St Martin'S Church Of England Primary School | Voluntary Controlled School | Outstanding | 2.34 KM |
| Cheriton Primary School | Foundation School | Good | 3.04 KM |
| Hythe Bay Children'S Centre | Children's Centre | 3.32 KM | |
| Saltwood Cofe Primary School | Voluntary Aided School | Outstanding | 3.32 KM |
Images
Nearby Streets
| Name | Average Price | Average Sqft | Distance |
|---|---|---|---|
| Highridge | £ 0 | 0 | 0.00 KM |
| Colin's Way | £ 0 | 0 | 0.00 KM |
| Owens Close | £ 0 | 0 | 0.00 KM |
| Brook Close | £ 0 | 0 | 0.00 KM |
| Victoria Terrace | £ 0 | 0 | 0.00 KM |
Nearby Transport
| Name | NLC | TLC | Distance |
|---|---|---|---|
| Sandling | 5025 | SDG | 5.10 KM |
| Folkestone West | 5027 | FKW | 5.22 KM |
| Folkestone Central | 5035 | FKC | 6.86 KM |
| Westenhanger | 5030 | WHA | 8.18 KM |
Nearby Listings
| Address | Price | Type | Score | Distance |
|---|---|---|---|---|
| 5 St Saviours Hill, Seabrook Road, Hythe, Kent, CT21 | £ 1,150,000 | BUY | 6 / 10 | 0.00 KM |
| Seabrook Road, Hythe, Kent, CT21 | £ 350,000 | BUY | 7 / 10 | 0.00 KM |
| 3 St Saviours Hill, Seabrook Road, Hythe, Kent, CT21 | £ 340,000 | BUY | 6 / 10 | 0.00 KM |
| 1 St Saviours Hill, Seabrook Road, Hythe, Kent, CT21 | £ 490,000 | BUY | 7 / 10 | 0.00 KM |
| 5 St Saviours Hill, Seabrook Road, Hythe, Kent, CT21 | £ 580,000 | BUY | 7 / 10 | 0.00 KM |
Nearby Properties
| Address | Price | Distance |
|---|---|---|
| 67a Seabrook Road | £ 485,000 | 0.03 KM |
| The Kestrel | £ 1,225,000 | 0.03 KM |
| 67 Seabrook Road | £ 620,000 | 0.03 KM |
| 83a Seabrook Road | £ 445,000 | 0.03 KM |
| 63 Seabrook Road | £ 755,000 | 0.03 KM |