Marrow Meade, Fleet, Hampshire, GU51
By Mackenzie Smith
£ 700,000
Reviews
3 out of 5 stars
Mackenzie Smith says ..
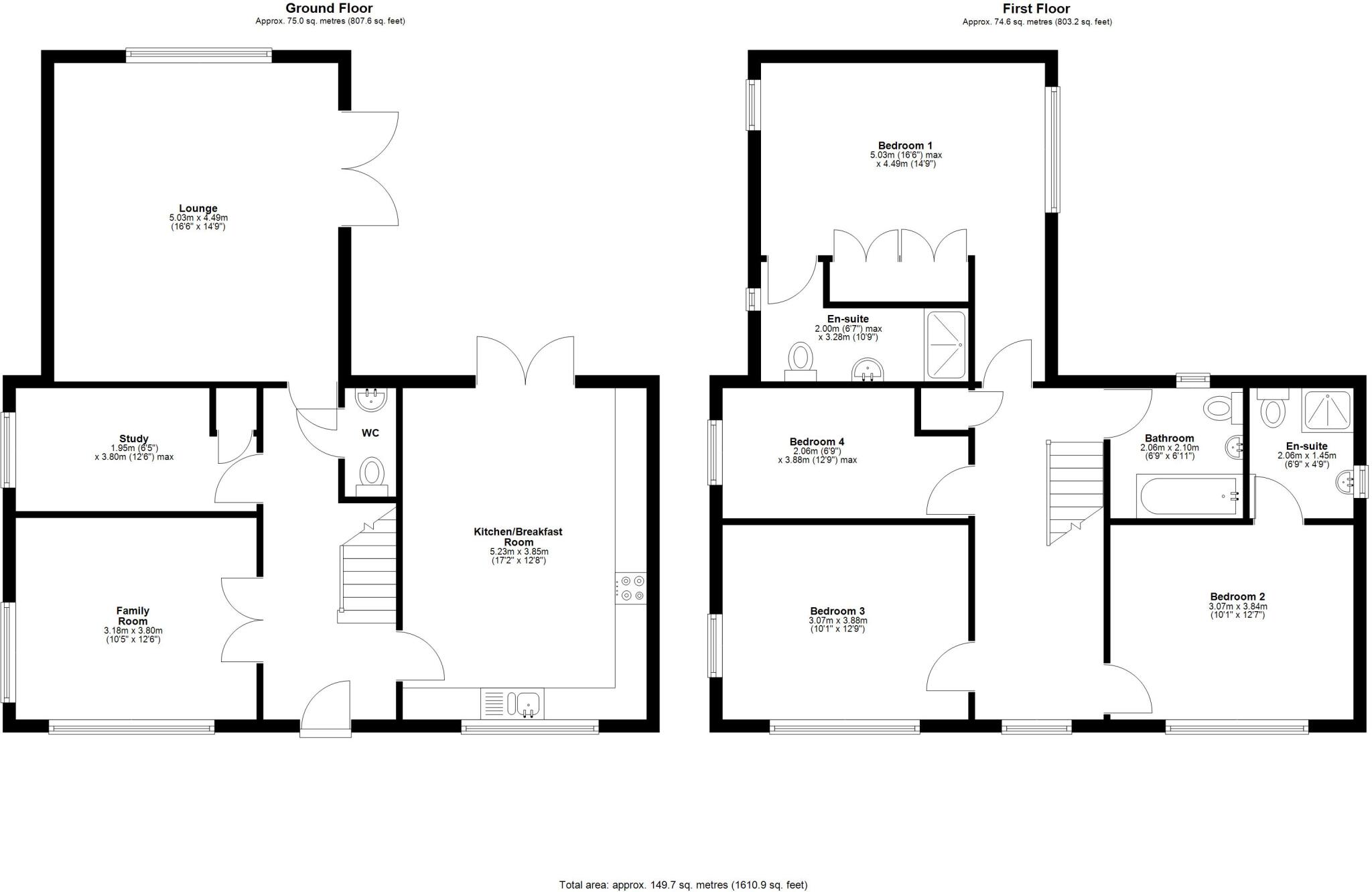
** NO ONWARD CHAIN ** Charming four-bed detached house with a spacious garden, off-street parking, and a double garage. This delightful property boasts three reception rooms, two ensuites and a family bathroom, and a total of 1,603 sq ft. Perfect for families seeking a peaceful retreat.
Property Oracle says ..
This is a detached property in Fleet, Hampshire, offering four bedrooms and two bathrooms. The house appears to be in generally good condition, although some areas could benefit from updating. It features a garden and off-street parking. The location is desirable, with good schools and transport links nearby. The asking price of £700,000 seems reasonable given the property’s size, location, and condition. The property is located close to Elvetham Heath Primary School which has an Ofsted rating of Outstanding.
Therefore, we give this property 6 / 10. *Disclaimer: This is our option and does constitute a recommendation or financial advice. Do your own research. *
- Price
- 7
- Condition
- 7
- Location
- 7
- Land
- 6
- Bedrooms
- 4
- Bathrooms
- 2
- Sqft (est)
- 1,611.36
The heatmap indicates the level of crime in the area. The color of the heatmap indicates the crime severity and recency.
Metrics Year-on-Year
- Average area value
- 587,286.00 £Decreased by 26.45 %
- Est sale value
- 1,087,668.00 £Increased by 72.63 %
- Average area rental value
- 1,582.00 £/moDecreased by 10.97 %
- Est letting value
- 1,611.36 £/mo
- Est rental Yield
- 3.23 %Increased by 20.97 %
- Crime Rate
- 1.00 %Unchanged by 0.00 %
Agent Activity
Mackenzie Smith created the listing.
Nearby Schools
| Name | Type | Ofsted | Distance |
|---|---|---|---|
| Elvetham Heath Primary School | Community School | Outstanding | 0.85 KM |
| Turners Wood, Fleet Fireflies And Wild Rose Children'S Centre | Children's Centre | 0.85 KM | |
| Fleet Fireflies Children'S Centre | Children's Centre Linked Site | 1.48 KM | |
| Tavistock Infant School | Community School | Good | 1.97 KM |
| Heatherside Junior School | Community School | Outstanding | 2.02 KM |
Images
Nearby Streets
| Name | Average Price | Average Sqft | Distance |
|---|---|---|---|
| Church Road | £ 1,200,000 | 0 | 0.00 KM |
| Beaumont Court | £ 0 | 0 | 0.00 KM |
| Rotten Green | £ 0 | 0 | 0.00 KM |
| Sunnyside | £ 1,597,500 | 0 | 0.00 KM |
| Church Grove | £ 0 | 0 | 0.00 KM |
Nearby Transport
| Name | NLC | TLC | Distance |
|---|---|---|---|
| Fleet | 5522 | FLE | 1.98 KM |
| Winchfield | 5528 | WNF | 6.49 KM |
| Sandhurst (Berks) | 5646 | SND | 7.84 KM |
| Crowthorne | 5628 | CRN | 8.96 KM |
| Blackwater | 5625 | BAW | 9.11 KM |
Nearby Listings
| Address | Price | Type | Score | Distance |
|---|---|---|---|---|
| Marrow Meade, Fleet, Hampshire, GU51 | £ 700,000 | BUY | 6 / 10 | 0.00 KM |
| Marrow Meade, Fleet, GU51 | £ 825,000 | BUY | 7 / 10 | 0.00 KM |
| Marrow Meade, Fleet, Hampshire, GU51 | £ 700,000 | BUY | 7 / 10 | 0.03 KM |
| Latimer House, Marrow Meade, Fleet, Hampshire, GU51 | £ 290,000 | BUY | 6 / 10 | 0.08 KM |
| Marrow Meade, Fleet | £ 249,950 | BUY | 5 / 10 | 0.10 KM |
Nearby Properties
| Address | Price | Distance |
|---|---|---|
| 41 Marrow Meade | £ 475,000 | 0.01 KM |
| 10 Marrow Meade | £ 318,500 | 0.01 KM |
| 9 Marrow Meade | £ 395,000 | 0.01 KM |
| 20 Marrow Meade | £ 249,995 | 0.01 KM |
| 33 Marrow Meade | £ 640,000 | 0.01 KM |