Move Residential says ..
Arriving at the sales market courtesy of appointed agents Move Residential is this this charming three bedroom semi detached cottage style property, located on Dinas Lane in the popular residential area of Huyton, L36.
Property Oracle says ..
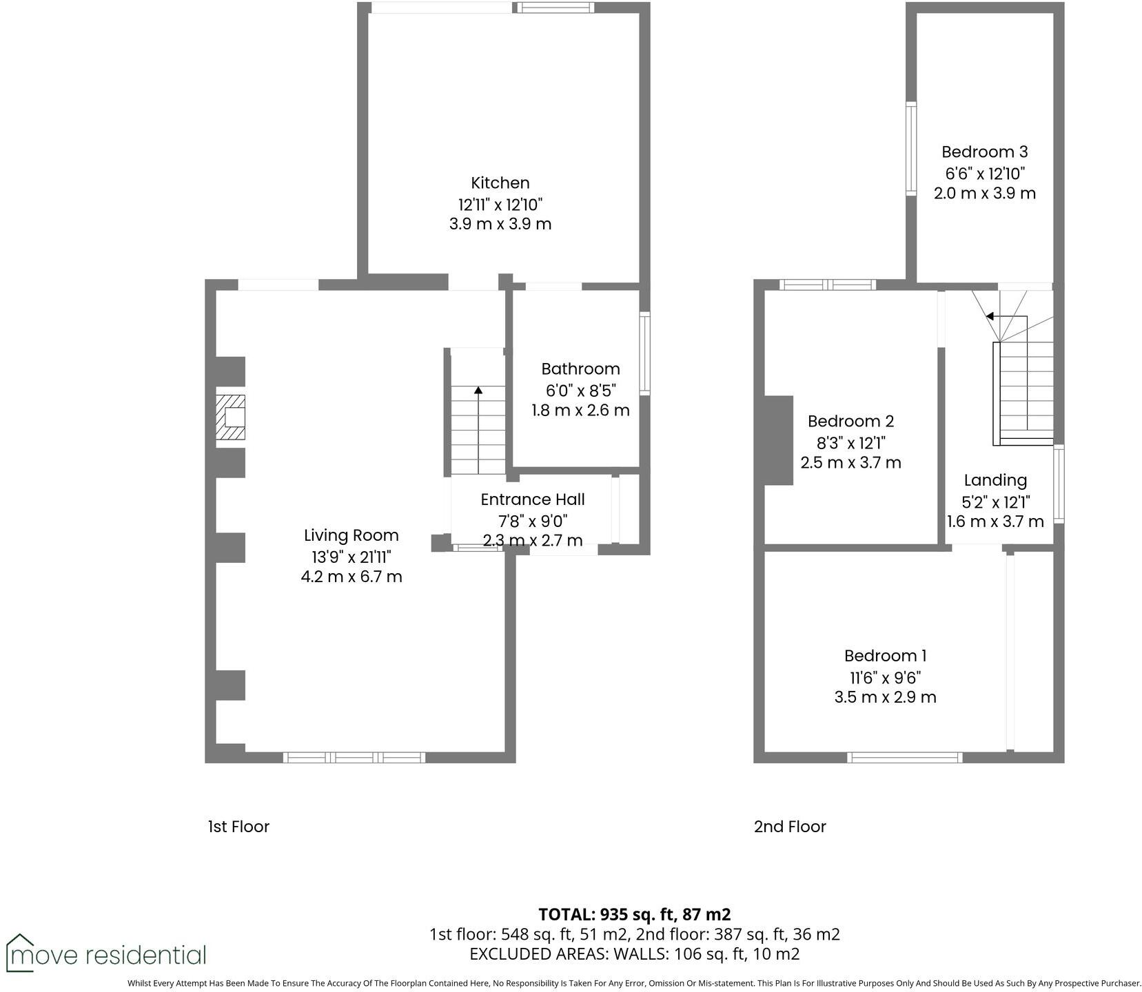
This semi-detached property on Dinas Lane, Liverpool, presents a well-maintained and modern living space. The interior boasts recent renovations, particularly in the kitchen and bathroom, with high-quality finishes. The presence of a fireplace adds character to the living area. The property benefits from a large garden, enhancing its appeal for families and those who enjoy outdoor activities. While the location in Page Moss is not the most upscale, it provides convenient access to schools, transportation, and local amenities. Considering the condition, size, and features, the asking price of £325,000 seems reasonable, although slightly above the area average. Overall, this property offers a blend of modern comfort and practical living in a well-connected location.
Therefore, we give this property 7 / 10. *Disclaimer: This is our option and does constitute a recommendation or financial advice. Do your own research. *
- Price
- 7
- Condition
- 9
- Location
- 7
- Land
- 8
- Bedrooms
- 3
- Bathrooms
- 1
- Sqft (est)
- 940.34
The heatmap indicates the level of crime in the area. The color of the heatmap indicates the crime severity and recency.
Metrics Year-on-Year
- Average area value
- 251,238.00 £Increased by 46.81 %
- Est sale value
- 252,951.46 £Increased by 26.29 %
- Average area rental value
- 1,303.00 £/moIncreased by 8.58 %
- Est letting value
- 940.34 £/moUnchanged by 0.00 %
- Est rental Yield
- 6.22 %Decreased by 26.04 %
- Crime Rate
- 3.00 %Unchanged by 0.00 %
Agent Activity
Move Residential created the listing.
Nearby Schools
| Name | Type | Ofsted | Distance |
|---|---|---|---|
| Park View Academy | Academy Converter | Good | 0.31 KM |
| St Aloysius Catholic Primary School | Voluntary Aided School | Good | 0.37 KM |
| Jubilee Sscc | Children's Centre | 0.45 KM | |
| Roby Park Primary School | Community School | Good | 1.21 KM |
| Huyton With Roby Church Of England Primary School | Academy Converter | 1.31 KM |
Images
Nearby Streets
| Name | Average Price | Average Sqft | Distance |
|---|---|---|---|
| Station Road | £ 345,000 | 0 | 0.00 KM |
| Eaton Close | £ 519,950 | 0 | 0.00 KM |
| Kingsway | £ 195,000 | 0 | 0.00 KM |
| Saint Davids Road | £ 0 | 0 | 0.00 KM |
| Harrington Road | £ 80,000 | 0 | 0.00 KM |
Nearby Transport
| Name | NLC | TLC | Distance |
|---|---|---|---|
| Roby | 2261 | ROB | 0.70 KM |
| Huyton | 2160 | HUY | 1.62 KM |
| Broad Green | 2240 | BGE | 4.28 KM |
| Hunts Cross | 2235 | HNX | 6.19 KM |
| Prescot | 2337 | PSC | 6.34 KM |
Nearby Listings
| Address | Price | Type | Score | Distance |
|---|---|---|---|---|
| Dinas Lane, Liverpool, L36 | £ 325,000 | BUY | 7 / 10 | 0.00 KM |
| Newby Drive, Liverpool, Merseyside, L36 | £ 85,000 | BUY | 5 / 10 | 0.12 KM |
| Dinas Lane, Huyton, Liverpool, L36 | £ 350,000 | BUY | 6 / 10 | 0.12 KM |
| Newby Drive, Liverpool, Merseyside, L36 | £ 130,000 | BUY | 7 / 10 | 0.15 KM |
| Newby Drive, Huyton, Liverpool | £ 120,000 | BUY | Unknown | 0.17 KM |
Nearby Properties
| Address | Price | Distance |
|---|---|---|
| 65a Church Road | £ 12,500 | 0.17 KM |
| 67 Church Road | £ 395,000 | 0.17 KM |
| 65d Church Road | £ 26,000 | 0.17 KM |
| 77 Church Road | £ 75,000 | 0.17 KM |
| 40 Garrowby Drive | £ 83,000 | 0.17 KM |