MA
Lagham Road, South Godstone, Godstone, RH9
By Mayhew Estates
£ 620,000
Mayhew Estates says ..
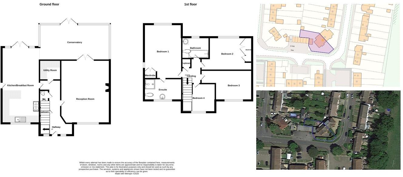
Guide Price £620,000 to £640,000. A substantial, extended, four bedroom, semi-detached family home with generous well-appointed living accommodation and outside front and rear gardens, plenty of parking and a detached garage.
- Bedrooms
- 4
- Bathrooms
- 3
- Sqft (est)
- 1,382.00
The heatmap indicates the level of crime in the area. The color of the heatmap indicates the crime severity and recency.
Metrics Year-on-Year
- Average area value
- 535,833.00 £Decreased by 10.41 %
- Est sale value
- 967,400.00 £Increased by 34.87 %
- Average area rental value
- 1,875.00 £/moDecreased by 13.31 %
- Est letting value
- 2,764.00 £/moIncreased by 100.00 %
- Est rental Yield
- 4.20 %Decreased by 3.23 %
- Crime Rate
- 37.00 %Unchanged by 0.00 %
from 598,123.00 £
from 717,258.00 £
from 2,163.00 £/mo
from 1,382.00 £/mo
from 4.34 %
from 37.00 %
Agent Activity
Mayhew Estates created the listing.
Nearby Schools
| Name | Type | Ofsted | Distance |
|---|---|---|---|
| St Stephen'S Cofe Primary School | Academy Converter | 0.48 KM | |
| St Peter'S Cofe Infant School | Voluntary Aided School | Outstanding | 2.59 KM |
| Godstone Primary And Nursery School | Foundation School | Good | 4.32 KM |
| Moor House School & College | Non-maintained Special School | Outstanding | 5.34 KM |
| Lingfield Primary School | Community School | Good | 5.43 KM |
Images
Nearby Transport
| Name | NLC | TLC | Distance |
|---|---|---|---|
| Godstone | 5474 | GDN | 0.92 KM |
| Hurst Green | 5463 | HUR | 5.83 KM |
| Oxted | 5377 | OXT | 6.01 KM |
| Lingfield | 5369 | LFD | 6.02 KM |
| Woldingham | 5440 | WOH | 8.08 KM |
Nearby Listings
| Address | Price | Type | Score | Distance |
|---|---|---|---|---|
| Lagham Road, South Godstone, Godstone, RH9 | £ 620,000 | BUY | Unknown | 0.00 KM |
| St. Johns Court, Lagham Road, South Godstone, Godstone, RH9 | £ 400,000 | BUY | 7 / 10 | 0.06 KM |
| Lagham Road, South Godstone, RH9 | £ 375,000 | BUY | 7 / 10 | 0.09 KM |
| Lagham Road, Godstone, RH9 | £ 425,000 | BUY | 7 / 10 | 0.09 KM |
| Hunters Chase, South Godstone, Godstone, RH9 | £ 475,000 | BUY | 8 / 10 | 0.14 KM |
Nearby Properties
| Address | Price | Distance |
|---|---|---|
| 100 Lagham Road | £ 250,000 | 0.08 KM |
| 122 Lagham Road | £ 207,500 | 0.08 KM |
| 130 Lagham Road | £ 118,000 | 0.08 KM |
| 90 Easter Way | £ 225,000 | 0.16 KM |
| 76 Easter Way | £ 185,000 | 0.16 KM |