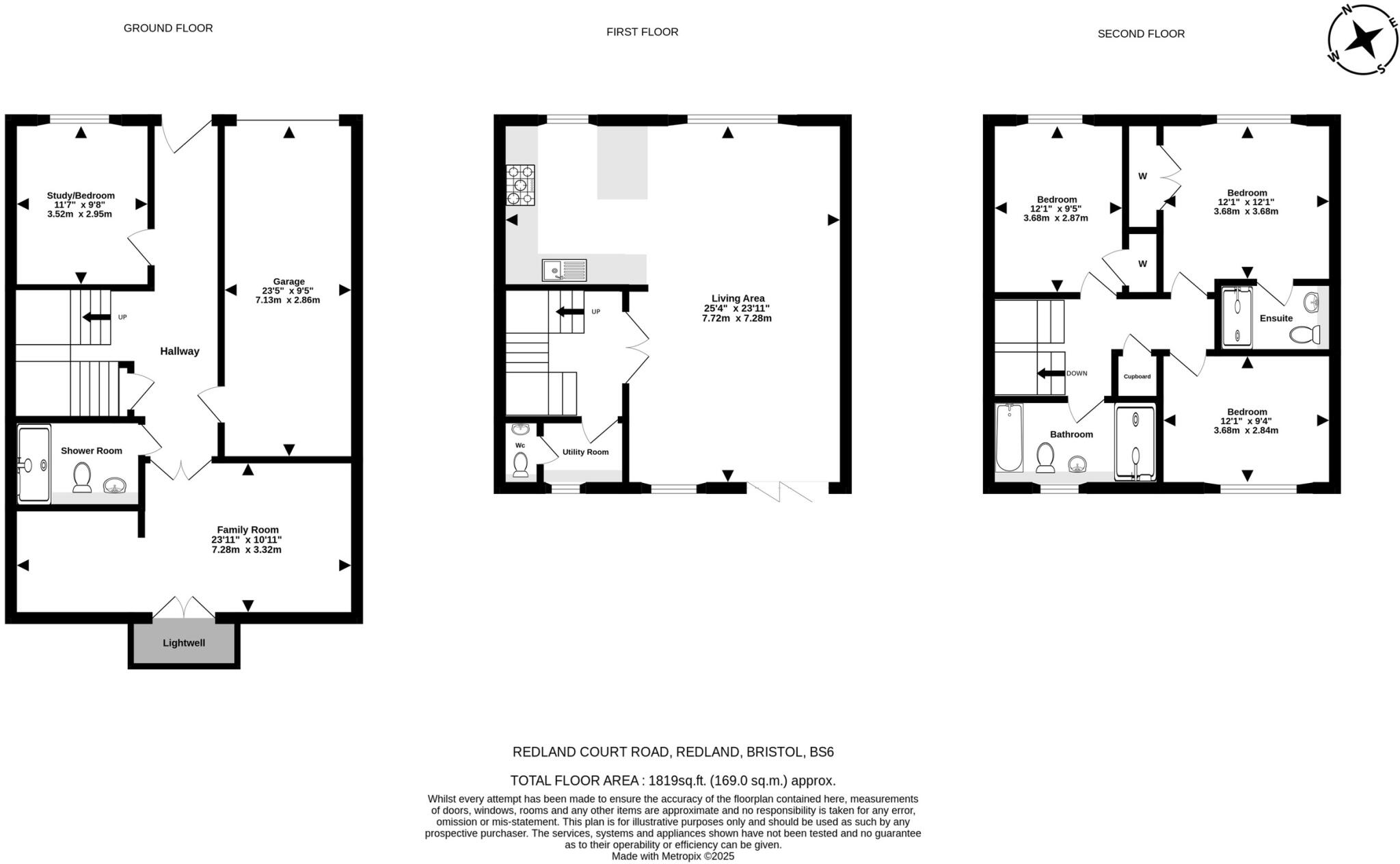
Redland Court Road, Redland, Bristol, BS6
By Ocean
£ 1,000,000
Reviews
3 out of 5 stars
Ocean says ..
Beautiful family home in the primary catchment for Redland Green school. South west facing garden, garage, and no onward chain.
Property Oracle says ..
This is a modern terraced property in the desirable Redland area of Bristol. It features four bedrooms and three bathrooms, making it suitable for families. The property is in excellent condition, with a modern kitchen and bathrooms. It also benefits from a garden and garage. The location is ideal, with good schools and transport links nearby. The price is slightly above the average price per square foot for the area, but this is justified by the property’s condition and location.
Therefore, we give this property 7 / 10. *Disclaimer: This is our option and does constitute a recommendation or financial advice. Do your own research. *
- Price
- 6
- Condition
- 9
- Location
- 8
- Land
- 7
- Bedrooms
- 4
- Bathrooms
- 3
- Sqft (est)
- 1,819.10
The heatmap indicates the level of crime in the area. The color of the heatmap indicates the crime severity and recency.
Metrics Year-on-Year
- Average area value
- 610,833.00 £Decreased by 12.76 %
- Est sale value
- 938,655.60 £Increased by 14.41 %
- Average area rental value
- 1,853.00 £/moDecreased by 9.70 %
- Est letting value
- 1,819.10 £/moUnchanged by 0.00 %
- Est rental Yield
- 3.64 %Increased by 3.41 %
- Crime Rate
- 0.00 %
Agent Activity
Ocean created the listing.
Nearby Schools
| Name | Type | Ofsted | Distance |
|---|---|---|---|
| Redland Green School | Academy Converter | Outstanding | 0.23 KM |
| Cotham Gardens Primary School | Academy Converter | Good | 0.72 KM |
| Cotham School | Academy Converter | Good | 0.91 KM |
| North Bristol Post 16 Centre | Sixth Form Centres | 0.91 KM | |
| Ss Peter And Paul Rc Primary School | Voluntary Aided School | Outstanding | 0.97 KM |
Images
Nearby Streets
| Name | Average Price | Average Sqft | Distance |
|---|---|---|---|
| Old School Close | £ 585,000 | 0 | 0.00 KM |
| Clarendon Road | £ 0 | 0 | 0.00 KM |
| Salisbury House | £ 0 | 0 | 0.00 KM |
| Redland Green Road | £ 0 | 0 | 0.00 KM |
| Palmerston Road | £ 785,000 | 0 | 0.00 KM |
Nearby Transport
| Name | NLC | TLC | Distance |
|---|---|---|---|
| Redland | 3247 | RDA | 0.49 KM |
| Clifton Down | 3202 | CFN | 1.34 KM |
| Montpelier | 3203 | MTP | 1.52 KM |
| Bristol Temple Meads | 3231 | BRI | 3.40 KM |
| Bedminster | 3245 | BMT | 3.63 KM |
Nearby Listings
| Address | Price | Type | Score | Distance |
|---|---|---|---|---|
| Redland Court Road, Redland, Bristol, BS6 | £ 1,000,000 | BUY | 7 / 10 | 0.00 KM |
| Redland Court Road, Redland, Bristol, BS6 | £ 1,250,000 | BUY | 7 / 10 | 0.03 KM |
| Old School Close, Bristol, Somerset, BS6 | £ 565,000 | BUY | 7 / 10 | 0.04 KM |
| REDUCED FOR AUCTION | REDLAND | £ 99,000 | BUY | 7 / 10 | 0.05 KM |
| School Buildings, 5 Old School Close, Bristol, BS6 | £ 565,000 | BUY | Unknown | 0.06 KM |
Nearby Properties
| Address | Price | Distance |
|---|---|---|
| 10 Redland Court Road | £ 630,000 | 0.06 KM |
| 26 Redland Court Road | £ 625,000 | 0.06 KM |
| 12 Redland Court Road | £ 275,000 | 0.06 KM |
| 20 Woodstock Road | £ 1,700,000 | 0.12 KM |
| 14 Woodstock Road | £ 1,100,000 | 0.12 KM |