Station Road, Budleigh Salterton
By Hall & Scott
£ 120,000
Reviews
3 out of 5 stars
Hall & Scott says ..
A well located first floor retirement apartment, within half a mile of the town centre and seafront
Property Oracle says ..
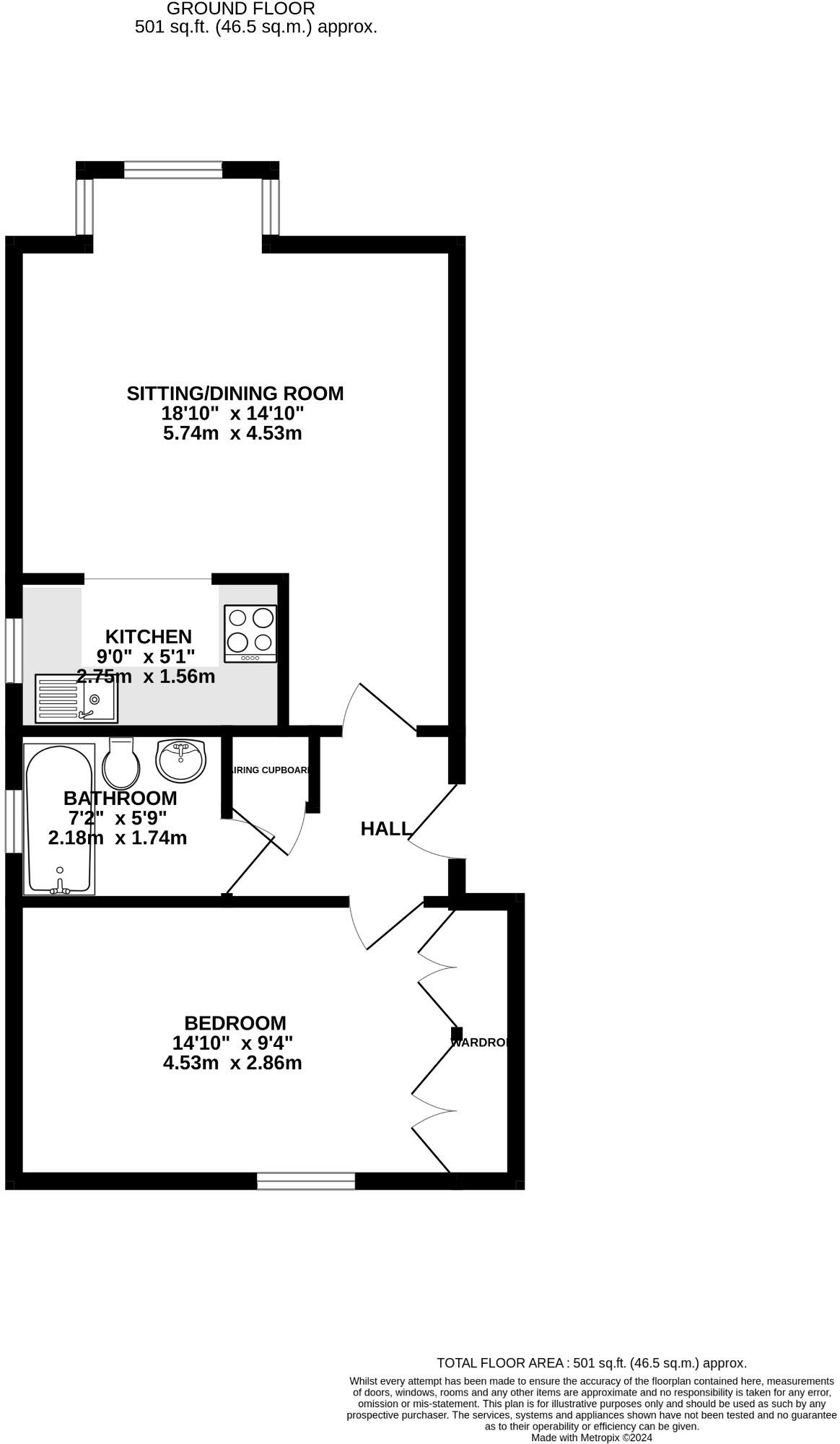
This one-bedroom sheltered housing property in Budleigh Salterton, East Devon, is listed at £120,000. The property is situated on Clarence Road and has a small garden. While the property’s age is not explicitly stated, the images suggest it may be in need of some modernisation, although it appears to be well-maintained. The location benefits from proximity to St Peter’s Church of England Primary School (0.67km), making it potentially attractive to families or those looking to be near good schooling. The average house price in the area is significantly higher (£565,723), and the average price per square foot is £410. However, this property is considerably smaller (501 sqft) than the average and is a sheltered housing unit, which typically commands a lower price. Nearby comparable properties range from £125,000 to £300,000, with some significantly higher priced properties further away. Given its size, type, and condition, the listed price of £120,000 appears to be relatively reasonable in comparison to other similar properties in the area. The lack of sqft information for nearby listings makes direct comparison difficult. The proximity to local amenities and schools is a positive factor for potential buyers.
Therefore, we give this property 6 / 10. *Disclaimer: This is our option and does constitute a recommendation or financial advice. Do your own research. *
- Price
- 7
- Condition
- 7
- Location
- 8
- Land
- 4
- Bedrooms
- 1
- Bathrooms
- 1
- Sqft (est)
- 501.45
- Lot (est)
- 501.00
The heatmap indicates the level of crime in the area. The color of the heatmap indicates the crime severity and recency.
Metrics Year-on-Year
- Average area value
- 604,931.00 £Decreased by 0.31 %
- Est sale value
- 237,185.85 £Decreased by 1.05 %
- Average area rental value
- 2,475.00 £/moIncreased by 98.64 %
- Est letting value
- 501.45 £/mo
- Est rental Yield
- 4.91 %Increased by 99.59 %
- Crime Rate
- 17.00 %Unchanged by 0.00 %
Agent Activity
Hall & Scott created the listing.
Nearby Schools
| Name | Type | Ofsted | Distance |
|---|---|---|---|
| St Peter'S Church Of England Primary School | Voluntary Aided School | Good | 0.67 KM |
| Drake'S Church Of England Primary School | Academy Converter | 2.20 KM | |
| Otterton Church Of England Primary School | Academy Converter | 3.87 KM | |
| Mill Water School | Foundation Special School | Good | 4.33 KM |
| Littleham Church Of England Primary School | Voluntary Controlled School | Requires improvement | 5.60 KM |
Images
Nearby Streets
| Name | Average Price | Average Sqft | Distance |
|---|---|---|---|
| Westfield Close | £ 1,250,000 | 0 | 0.00 KM |
| Ragg Lane | £ 0 | 0 | 0.00 KM |
| Chapel Hill | £ 975,000 | 0 | 0.00 KM |
| Bridge Road | £ 0 | 0 | 0.00 KM |
| Steamer Steps | £ 0 | 0 | 0.00 KM |
Nearby Transport
| Name | NLC | TLC | Distance |
|---|---|---|---|
| Exmouth | 5756 | EXM | 9.80 KM |
Nearby Listings
| Address | Price | Type | Score | Distance |
|---|---|---|---|---|
| Station Road, Budleigh Salterton | £ 120,000 | BUY | 6 / 10 | 0.00 KM |
| Stanley Mews, Devon, Station Road,, Budleigh Salterton, EX9 | £ 145,000 | BUY | 6 / 10 | 0.03 KM |
| Stanley Mews, Station Road, Budleigh Salterton, Devon | £ 125,000 | BUY | 5 / 10 | 0.04 KM |
| Stanley Mews, Station Road, Budleigh Salterton, Devon | £ 145,000 | BUY | Unknown | 0.06 KM |
| Armytage Road, Budleigh Salterton, EX9 6SD | £ 289,950 | BUY | 7 / 10 | 0.09 KM |
Nearby Properties
| Address | Price | Distance |
|---|---|---|
| 13 Clarence Road | £ 228,000 | 0.08 KM |
| 37 Clarence Road | £ 204,950 | 0.08 KM |
| 1 Clarence Road | £ 292,500 | 0.08 KM |
| 15 Clarence Road | £ 188,000 | 0.08 KM |
| 19 Clarence Road | £ 220,000 | 0.08 KM |