Westholm, Hampstead Garden Suburb, London, NW11
By Wayne & Silver
£ 995,000
Reviews
3 out of 5 stars
Wayne & Silver says ..
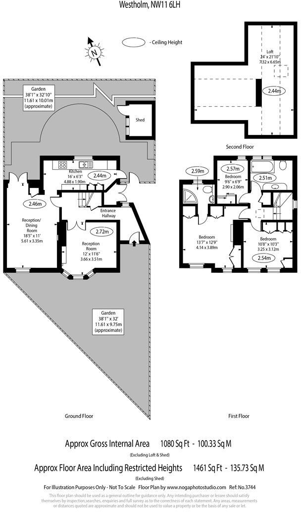
Nestled within a quiet cul-de-sac in Hampstead Garden suburb is this outstanding 3 bedroom 2 bathroom, 1080 sq ft semi-detached cottage. Accessed via a charming private front garden, this beautiful home offers bright and inviting living spaces throughout the ground floor, including a spa...
Property Oracle says ..
This is a well-presented 3-bedroom house located in the desirable Hampstead Garden Suburb. The property benefits from a modern interior, a garden, and proximity to good schools and transportation links. While the price is slightly above the average price per square foot for the area, the property’s condition and location justify the premium. The property retains its traditional charm.
Therefore, we give this property 7 / 10. *Disclaimer: This is our option and does constitute a recommendation or financial advice. Do your own research. *
- Price
- 7
- Condition
- 8
- Location
- 8
- Land
- 7
- Bedrooms
- 3
- Bathrooms
- 2
- Sqft (est)
- 1,220.07
- Lot (est)
- 1,249.70
The heatmap indicates the level of crime in the area. The color of the heatmap indicates the crime severity and recency.
Metrics Year-on-Year
- Average area value
- 1,617,059.00 £Decreased by 47.03 %
- Est sale value
- 780,844.80 £Decreased by 60.64 %
- Average area rental value
- 2,345.00 £/moDecreased by 26.70 %
- Est letting value
- 0.00 £/moDecreased by 100.00 %
- Est rental Yield
- 1.74 %Increased by 38.10 %
- Crime Rate
- 4.00 %Unchanged by 0.00 %
Agent Activity
Wayne & Silver created the listing.
Nearby Schools
| Name | Type | Ofsted | Distance |
|---|---|---|---|
| Brookland Infant And Nursery School | Community School | Outstanding | 0.29 KM |
| Brookland Junior School | Community School | Outstanding | 0.29 KM |
| Christ'S College Finchley | Academy Converter | Good | 0.37 KM |
| The Henrietta Barnett School | Academy Converter | 0.75 KM | |
| St Theresa'S Catholic Primary School | Voluntary Aided School | Good | 0.79 KM |
Images
Nearby Streets
| Name | Average Price | Average Sqft | Distance |
|---|---|---|---|
| Eger Close | £ 374,975 | 0 | 0.00 KM |
| Hurst Close | £ 0 | 0 | 0.00 KM |
| Juliana Close | £ 575,000 | 0 | 0.00 KM |
| Meadway Close | £ 0 | 0 | 0.00 KM |
| Hill Close | £ 0 | 0 | 0.00 KM |
Nearby Transport
| Name | NLC | TLC | Distance |
|---|---|---|---|
| Finchley Road And Frognal | 1445 | FNY | 4.20 KM |
| Cricklewood | 1519 | CRI | 4.25 KM |
| Hampstead Heath | 1413 | HDH | 4.37 KM |
| West Hampstead Thameslink | 1525 | WHP | 4.39 KM |
| West Hampstead | 1421 | WHD | 4.49 KM |
Nearby Listings
| Address | Price | Type | Score | Distance |
|---|---|---|---|---|
| Westholm, Hampstead Garden Suburb, London, NW11 | £ 995,000 | BUY | 7 / 10 | 0.00 KM |
| Westholm, Hampstead Garden Suburb, NW11 | £ 995,000 | BUY | 7 / 10 | 0.02 KM |
| Westholm, Hampstead Garden Suburb, NW11 | £ 995,000 | BUY | Unknown | 0.04 KM |
| Westholm, Hampstead Garden Suburb | £ 799,000 | BUY | 6 / 10 | 0.10 KM |
| Hill Top, Hampstead Garden Suburb, NW11 | £ 1,999,995 | BUY | 7 / 10 | 0.10 KM |
Nearby Properties
| Address | Price | Distance |
|---|---|---|
| 45 Midholm | £ 875,000 | 0.09 KM |
| 1 Midholm | £ 645,000 | 0.09 KM |
| 43 Midholm | £ 1,070,000 | 0.09 KM |
| 21 Midholm | £ 940,000 | 0.09 KM |
| 27 Midholm | £ 625,000 | 0.09 KM |