Abercrombie Drive, Bearsden

Rettie & Co says ..

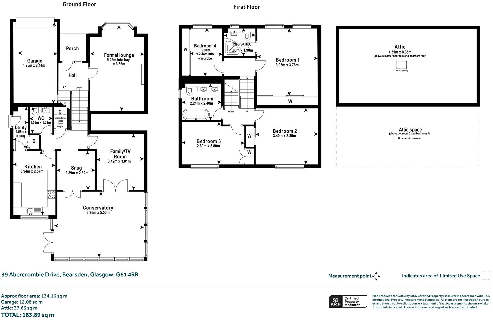
Highly impressive Detached House 4 Bedrooms 2 Public Rooms & large Conservatory Great south-facing rear garden/setting Superb, and private, outlook High-end Bathroom, Ensuite, and WC Very smart Kitchen Gas CH and do...

Property Oracle says ..

Therefore, we give this property 7 / 10. *Disclaimer: This is our option and does constitute a recommendation or financial advice. Do your own research. *

Price
7
Condition
8
Location
8
Land
7
Bedrooms
4
Bathrooms
2

The heatmap indicates the level of crime in the area. The color of the heatmap indicates the crime severity and recency.

Metrics Year-on-Year

Average area value
512,500.00 £
Increased by 58.76 %
from 322,824.00 £
Average area rental value
1,100.00 £/mo
Decreased by 47.62 %
from 2,100.00 £/mo
Est rental Yield
2.58 %
Decreased by 66.97 %
from 7.81 %
Crime Rate
0.00 %
from 0.00 %

Agent Activity

  • Rettie & Co created the listing.

Images

Picture 1 Picture 2 Picture 3 Picture 4 Picture 5 Picture 6 Picture 7 Picture 8 Picture 9 Picture 10 Picture 11 Picture 12 Picture 13 Picture 14 Picture 15 Picture 16 Picture 17 Picture 18 Picture 19 Picture 20 Picture 21 Picture 22 Picture 23 Picture 24 Picture 25 Picture 26 Picture 27 Picture 28 Picture 29 Picture 30 Picture 31 Picture 32 Picture 33 Picture 34 Picture 35 Picture 36 Picture 37 Picture 38 Picture 39 Picture 40 Picture 41 Picture 42 Picture 43

Nearby Streets

NameAverage PriceAverage SqftDistance
Grampian Way £ 295,00000.00 KM
Abercrombie Drive £ 458,50000.00 KM
Lochnagar Drive £ 369,00000.00 KM
Murray Grove £ 495,00000.00 KM
Rutherford Avenue £ 529,50000.00 KM

Nearby Transport

NameNLCTLCDistance
Drumchapel9994DMC3.20 KM
Bearsden9966BRN3.36 KM
Westerton9998WES4.04 KM
Hillfoot9983HLF4.39 KM
Drumry9993DMY4.41 KM

Nearby Listings

AddressPriceTypeScoreDistance
Abercrombie Drive, Bearsden £ 479,000BUY7 / 100.00 KM
Abercrombie Drive, Bearsden £ 415,000BUY7 / 100.00 KM
Abercrombie Drive, Bearsden, G61 £ 575,000BUY7 / 100.18 KM
4 Lochnagar Drive, Bearsden, G61 4RP £ 290,000BUYUnknown0.24 KM
Loyal Gardens, Bearsden £ 410,000BUY7 / 100.24 KM