Peglars Way, Wichelstowe, Swindon, Wiltshire, SN1 7GX
By McCarthy Stone
£ 240,000
Reviews
3 out of 5 stars
McCarthy Stone says ..
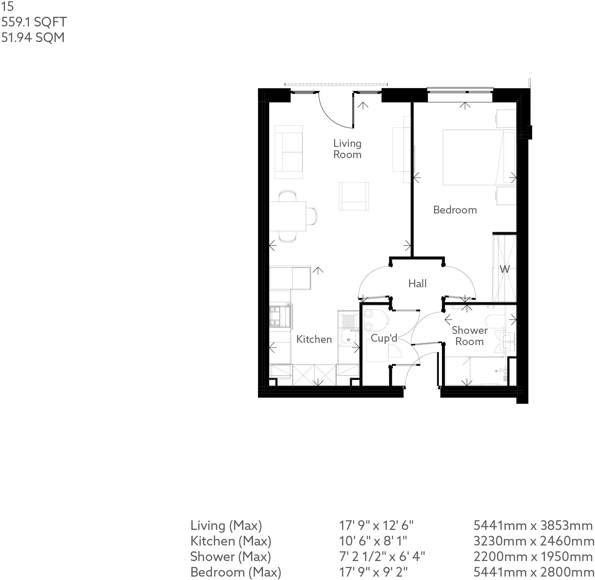
Apartment 15 is a beautiful one-bedroom apartment at our stunning Locks View development in Swindon.
Property Oracle says ..
This one-bedroom apartment in Wichelstowe, Swindon, is presented as a modern and well-maintained property. The development’s location offers convenient access to amenities, schools (Kingfisher Ce Academy and The Deanery Ce Academy are particularly close), and transport links to Swindon. The interior is finished to a high standard, as shown in the provided images. While the property itself looks excellent, the lack of private outdoor space is a notable factor. The price of £240,000 seems reasonable in the context of the local market, although more detailed comparable data is needed for a definitive assessment. The absence of square footage data for comparable properties makes a precise price-per-square-foot comparison impossible. Overall, this property is likely to appeal to first-time buyers or those seeking a low-maintenance, modern apartment in a convenient location. However, potential buyers should weigh the lack of private outdoor space against the other benefits.
Therefore, we give this property 6 / 10. *Disclaimer: This is our option and does constitute a recommendation or financial advice. Do your own research. *
- Price
- 7
- Condition
- 8
- Location
- 7
- Land
- 2
- Bedrooms
- 1
- Bathrooms
- 0
- Sqft (est)
- 559.08
The heatmap indicates the level of crime in the area. The color of the heatmap indicates the crime severity and recency.
Metrics Year-on-Year
- Average area value
- 460,714.00 £Increased by 27.86 %
- Est sale value
- 283,453.56 £Increased by 63.55 %
- Average area rental value
- 1,150.00 £/moDecreased by 37.30 %
- Est letting value
- 559.08 £/moUnchanged by 0.00 %
- Est rental Yield
- 3.00 %Decreased by 50.90 %
- Crime Rate
- 0.00 %
Agent Activity
McCarthy Stone created the listing.
Nearby Schools
| Name | Type | Ofsted | Distance |
|---|---|---|---|
| Kingfisher Ce Academy | Free Schools | 0.01 KM | |
| The Deanery Ce Academy | Free Schools | 0.09 KM | |
| Hazelwood Academy | Academy Sponsor Led | Good | 1.75 KM |
| Robert Le Kyng Primary School | Community School | Good | 1.95 KM |
| East Wichel Primary School & Nursery | Community School | Good | 1.96 KM |
Images
Nearby Streets
| Name | Average Price | Average Sqft | Distance |
|---|---|---|---|
| Deanery Drive | £ 0 | 0 | 0.00 KM |
| Prunus Walk | £ 0 | 0 | 0.00 KM |
| Wishford Row | £ 0 | 0 | 0.00 KM |
| Conference Road | £ 375,000 | 0 | 0.00 KM |
| Scott Way | £ 0 | 0 | 0.00 KM |
Nearby Transport
| Name | NLC | TLC | Distance |
|---|---|---|---|
| Swindon (Wilts) | 3333 | SWI | 3.48 KM |
Nearby Listings
| Address | Price | Type | Score | Distance |
|---|---|---|---|---|
| Peglars Way, Wichelstowe, Swindon, Wiltshire, SN1 7GX | £ 255,500 | BUY | 7 / 10 | 0.00 KM |
| Peglars Way, Wichelstowe, Swindon, Wiltshire, SN1 7GX | £ 277,000 | BUY | 7 / 10 | 0.00 KM |
| Peglars Way, Wichelstowe, Swindon, Wiltshire, SN1 7GX | £ 365,000 | BUY | 7 / 10 | 0.00 KM |
| Peglars Way, Wichelstowe, Swindon, Wiltshire, SN1 7GX | £ 203,250 | BUY | 6 / 10 | 0.00 KM |
| Peglars Way, Wichelstowe, Swindon, Wiltshire, SN1 7GX | £ 253,500 | BUY | 6 / 10 | 0.00 KM |
Nearby Properties
| Address | Price | Distance |
|---|---|---|
| 37 Gold View | £ 295,000 | 0.80 KM |
| 8 Gold View | £ 250,000 | 0.80 KM |
| 30 Gold View | £ 275,000 | 0.80 KM |
| 25 Gold View | £ 355,000 | 0.80 KM |
| 5 Gold View | £ 537,500 | 0.80 KM |