Foxtons says ..
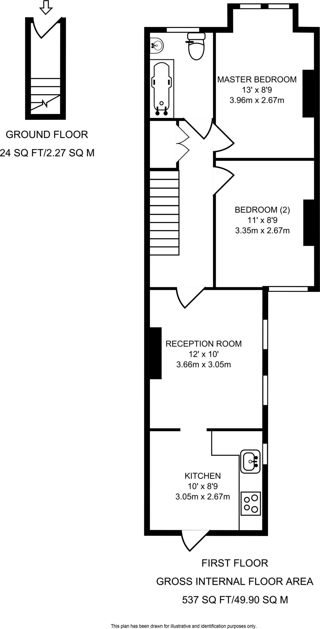
Stunning two-bedroom maisonette offering something truly unique ? zero service charge and ground rent, plus an impressive over 900-year lease. A rare opportunity not to be missed!.
Property Oracle says ..
Therefore, we give this property 5 / 10. *Disclaimer: This is our option and does constitute a recommendation or financial advice. Do your own research. *
- Price
- 4
- Condition
- 6
- Location
- 7
- Land
- 5
- Bedrooms
- 2
- Bathrooms
- 1
- Sqft (est)
- 417.75
The heatmap indicates the level of crime in the area. The color of the heatmap indicates the crime severity and recency.
Metrics Year-on-Year
- Average area value
- 687,500.00 £Decreased by 0.32 %
- Est sale value
- 223,496.25 £Decreased by 18.32 %
- Average area rental value
- 2,627.00 £/moIncreased by 13.18 %
- Est letting value
- 835.50 £/moUnchanged by 0.00 %
- Est rental Yield
- 4.59 %Increased by 13.61 %
- Crime Rate
- 3.00 %Unchanged by 0.00 %
from 689,737.00 £
from 273,626.25 £
from 2,321.00 £/mo
from 835.50 £/mo
from 4.04 %
from 3.00 %
Agent Activity
Foxtons created the listing.
Nearby Schools
| Name | Type | Ofsted | Distance |
|---|---|---|---|
| King'S Oak Primary School | Community School | Good | 0.45 KM |
| Norbiton Children'S Centre | Children's Centre | 0.48 KM | |
| Corpus Christi Catholic Primary School | Voluntary Aided School | Good | 0.66 KM |
| Christ Church New Malden Cofe Primary School | Voluntary Aided School | Good | 0.82 KM |
| Westbury House School | Other Independent School | 1.17 KM |
Images
Nearby Streets
| Name | Average Price | Average Sqft | Distance |
|---|---|---|---|
| Springfield Place | £ 0 | 0 | 0.00 KM |
| South Park Grove | £ 0 | 0 | 0.00 KM |
| Stafford Road | £ 0 | 0 | 0.00 KM |
| Rosemont Road | £ 0 | 0 | 0.00 KM |
| Hawkhurst Way | £ 0 | 0 | 0.00 KM |
Nearby Transport
| Name | NLC | TLC | Distance |
|---|---|---|---|
| Berrylands | 5581 | BRS | 0.90 KM |
| Norbiton | 5568 | NBT | 1.78 KM |
| New Malden | 5567 | NEM | 1.89 KM |
| Malden Manor | 5599 | MAL | 2.21 KM |
| Tolworth | 5573 | TOL | 2.78 KM |
Nearby Listings
| Address | Price | Type | Score | Distance |
|---|---|---|---|---|
| Beresford Road, New Malden, KT3 | £ 350,000 | BUY | 5 / 10 | 0.00 KM |
| Beresford Court, Beresford Road | £ 340,000 | BUY | 7 / 10 | 0.04 KM |
| Beresford Road, New Malden | £ 350,000 | BUY | 6 / 10 | 0.08 KM |
| Beresford Road, New Malden, KT3 | £ 600,000 | BUY | Unknown | 0.08 KM |
| Beresford Road, New Malden, KT3 | £ 615,000 | BUY | Unknown | 0.09 KM |
Nearby Properties
| Address | Price | Distance |
|---|---|---|
| 45 Beresford Road | £ 612,000 | 0.07 KM |
| 31 Beresford Road | £ 270,000 | 0.07 KM |
| 43 Beresford Road | £ 274,000 | 0.07 KM |
| 66 Beresford Road | £ 460,000 | 0.07 KM |
| 53a Beresford Road | £ 249,950 | 0.07 KM |