Reading Road, Mattingley, RG27
By Domus Partners
£ 2,750,000
Reviews
3 out of 5 stars
Domus Partners says ..
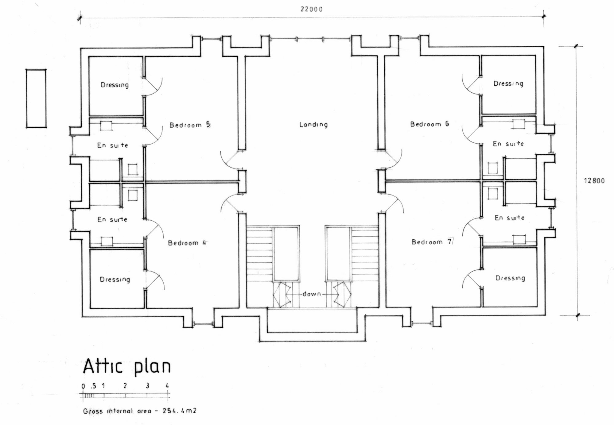
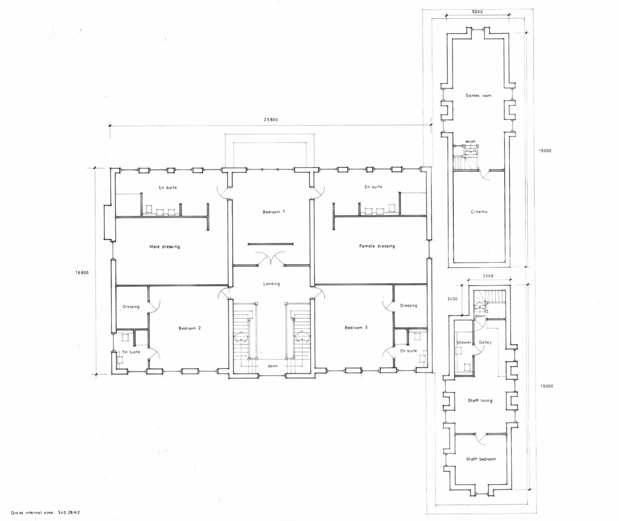
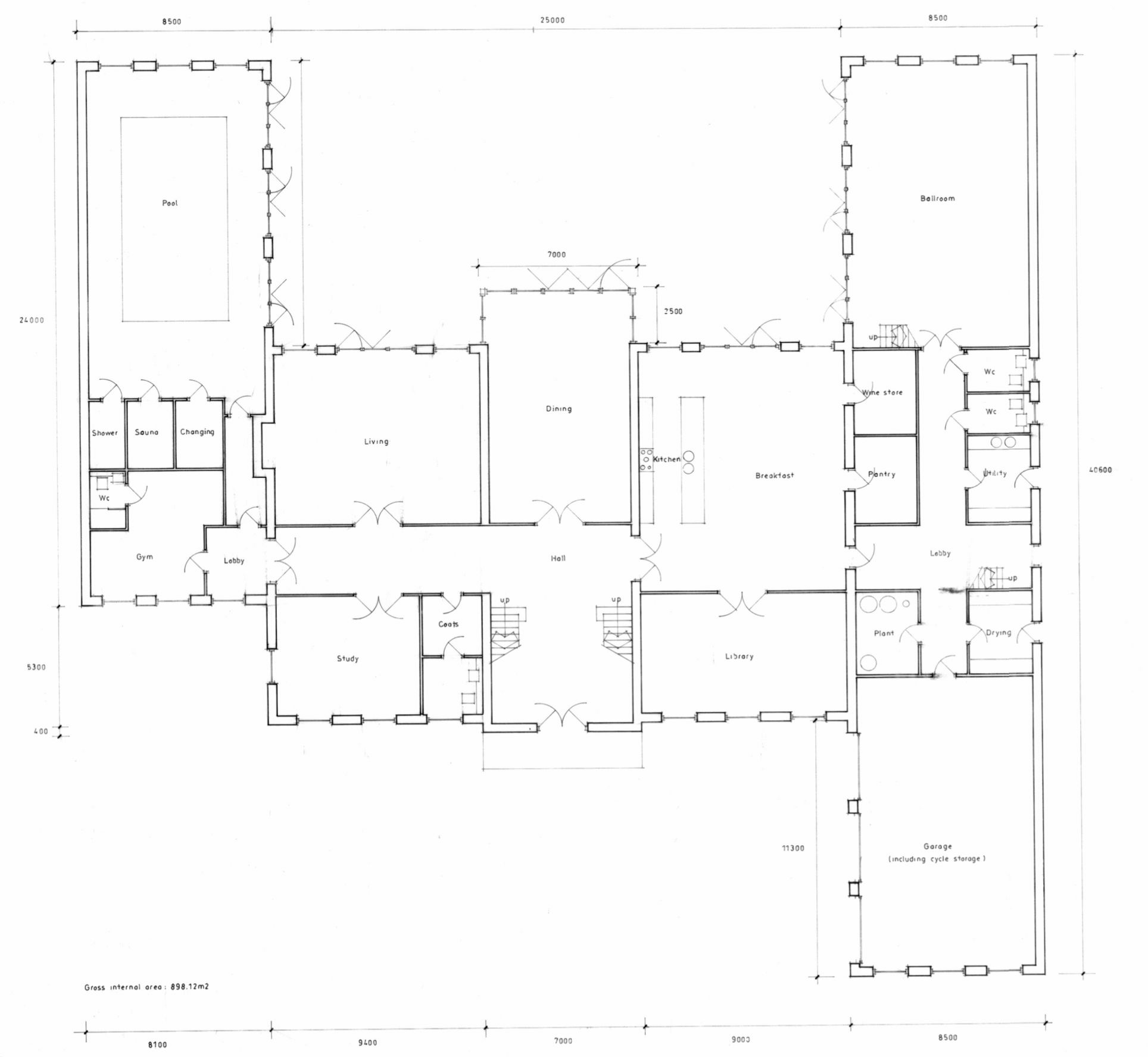
**The price stated is purely for the land with planning permission granted for the proposed property shown in the CGI images and floorplans.
Property Oracle says ..
This property is listed as land with planning permission granted for the construction of a large family home in Mattingley, Hampshire. The CGI renderings showcase an impressive, large house with numerous bedrooms and bathrooms, promising luxurious living. The substantial land surrounding the existing structure offers potential for extensive gardens or landscaping. The location in Mattingley provides a balance between rural tranquility and reasonable proximity to commuter links via Hook railway station. The area also benefits from the presence of several well-regarded primary and junior schools. However, it is important to note that the purchase price represents solely the value of the land and planning permission, not the constructed home. Therefore, potential buyers should carefully consider the projected costs of construction, including potential material inflation and contractor fees, and compare that total cost with the expected market value post-completion in the surrounding area. Additionally, the lack of detailed specifications regarding the final construction and potential for unseen delays are crucial factors in due diligence before committing to the purchase.
Therefore, we give this property 6 / 10. *Disclaimer: This is our option and does constitute a recommendation or financial advice. Do your own research. *
- Price
- 6
- Condition
- 3
- Location
- 7
- Land
- 8
- Bedrooms
- 8
- Bathrooms
- 9
- Sqft (est)
- 9,667.28
The heatmap indicates the level of crime in the area. The color of the heatmap indicates the crime severity and recency.
Metrics Year-on-Year
- Average area value
- 605,000.00 £Decreased by 12.61 %
- Est sale value
- 7,298,796.40 £Increased by 45.19 %
- Average area rental value
- 1,924.00 £/moDecreased by 7.72 %
- Est letting value
- 19,334.56 £/moIncreased by 100.00 %
- Est rental Yield
- 3.82 %Increased by 5.82 %
- Crime Rate
- 0.00 %
Agent Activity
Domus Partners created the listing.
Nearby Schools
| Name | Type | Ofsted | Distance |
|---|---|---|---|
| Whitewater Church Of England Primary School | Voluntary Controlled School | Requires improvement | 3.98 KM |
| Daneshill School | Other Independent School | 4.26 KM | |
| Hook Infant School | Community School | Outstanding | 4.45 KM |
| Hook Junior School | Community School | Outstanding | 4.45 KM |
| Greenfields Junior School | Community School | Good | 5.60 KM |
Images
Nearby Streets
| Name | Average Price | Average Sqft | Distance |
|---|---|---|---|
| Bottle Lane | £ 1,033,333 | 0 | 0.00 KM |
Nearby Transport
| Name | NLC | TLC | Distance |
|---|---|---|---|
| Hook | 5523 | HOK | 4.88 KM |
| Winchfield | 5528 | WNF | 6.37 KM |
Nearby Listings
| Address | Price | Type | Score | Distance |
|---|---|---|---|---|
| Reading Road, Mattingley, RG27 | £ 6,995,000 | BUY | 6 / 10 | 0.00 KM |
| Reading Road, Mattingley, RG27 | £ 2,750,000 | BUY | 6 / 10 | 0.00 KM |
| Mattingley, Hook, Hampshire, RG27 | £ 2,250,000 | BUY | 6 / 10 | 0.47 KM |
| Vicarage Lane, Hound Green | £ 1,000,000 | BUY | 7 / 10 | 0.52 KM |
| Mattingley, Hound Green | £ 850,000 | BUY | 7 / 10 | 0.56 KM |
Nearby Properties
| Address | Price | Distance |
|---|---|---|
| The Old Police House | £ 1,100,000 | 0.00 KM |
| The Lanterns | £ 500,000 | 0.21 KM |
| Japonica | £ 340,000 | 0.43 KM |
| Mattingley Lodge | £ 745,000 | 0.51 KM |
| Kale House Cottage | £ 1,025,000 | 0.51 KM |