Nine Mile Ride, Finchampstead, WOKINGHAM
By Barnard Marcus
£ 745,000
Reviews
2 out of 5 stars
Barnard Marcus says ..
AUCTION SALE 18 November 2025 - Freehold site comprising three dwellingsFurther site development potentialSite area approx. 0.68 acresPrivate Lane and semi-rural locationFull vacant possession
Property Oracle says ..
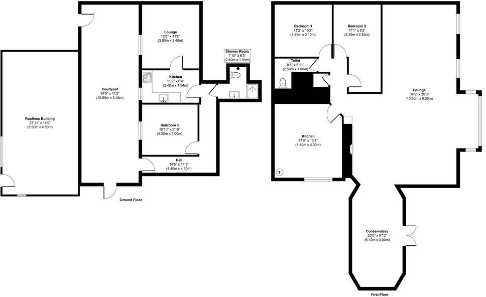
This is a detached bungalow located on Nine Mile Ride, Finchampstead, Wokingham. The property features 6 bedrooms and is listed for £745,000. While the location offers proximity to schools, it is somewhat removed from major transport links. The property is in need of significant renovation, as evidenced by the visible damage and disrepair. However, it benefits from a large plot size, including a garden and driveway. The price reflects the renovation needs and the value of the land. The property is listed with Barnard Marcus.
Therefore, we give this property 5 / 10. *Disclaimer: This is our option and does constitute a recommendation or financial advice. Do your own research. *
- Price
- 7
- Condition
- 2
- Location
- 6
- Land
- 7
- Bedrooms
- 6
- Bathrooms
- 0
The heatmap indicates the level of crime in the area. The color of the heatmap indicates the crime severity and recency.
Metrics Year-on-Year
- Average area value
- 1,516,667.00 £Increased by 102.87 %
- Average area rental value
- 2,250.00 £/moDecreased by 16.20 %
- Est rental Yield
- 1.78 %Decreased by 58.70 %
- Crime Rate
- 0.00 %
Agent Activity
Barnard Marcus created the listing.
Nearby Schools
| Name | Type | Ofsted | Distance |
|---|---|---|---|
| Bohunt School Wokingham | Academy Sponsor Led | Good | 1.27 KM |
| Gorse Ride Junior School | Community School | Requires improvement | 2.29 KM |
| Finchampstead Children'S Centre | Children's Centre | 2.49 KM | |
| Gorse Ride Infants' School | Community School | Good | 2.52 KM |
| Finchampstead Cofe Va Primary School | Voluntary Aided School | Good | 2.71 KM |
Images
Nearby Streets
| Name | Average Price | Average Sqft | Distance |
|---|---|---|---|
| Nuthatch Drive | £ 0 | 0 | 0.00 KM |
| Commonfield Lane | £ 0 | 0 | 0.00 KM |
| Lime Grove | £ 600,000 | 0 | 0.00 KM |
| Buttenshaw Close | £ 0 | 0 | 0.00 KM |
| Cook Way | £ 0 | 0 | 0.00 KM |
Nearby Transport
| Name | NLC | TLC | Distance |
|---|---|---|---|
| Wokingham | 5696 | WKM | 5.86 KM |
| Winnersh | 5697 | WNS | 5.97 KM |
| Winnersh Triangle | 5698 | WTI | 6.72 KM |
| Crowthorne | 5628 | CRN | 7.11 KM |
| Earley | 5694 | EAR | 8.14 KM |
Nearby Listings
| Address | Price | Type | Score | Distance |
|---|---|---|---|---|
| Nine Mile Ride, Finchampstead, WOKINGHAM | £ 699,000 | BUY | 6 / 10 | 0.00 KM |
| Nine Mile Ride, Finchampstead, WOKINGHAM | £ 745,000 | BUY | 5 / 10 | 0.00 KM |
| Nine Mile Ride, Wokingham, RG40 | £ 595,000 | BUY | Unknown | 0.01 KM |
| Nine Mile Ride, Finchampstead, Wokingham, Berkshire, RG40 | £ 795,000 | BUY | 8 / 10 | 0.14 KM |
| Nine Mile Ride, WOKINGHAM | £ 420,000 | BUY | 5 / 10 | 0.15 KM |
Nearby Properties
| Address | Price | Distance |
|---|---|---|
| Denewood | £ 715,000 | 0.00 KM |
| Pentre Stable | £ 755,000 | 0.00 KM |
| Rushmere Lodge | £ 401,000 | 0.00 KM |
| Santolina | £ 320,000 | 0.00 KM |
| 7a Nine Mile Ride | £ 747,500 | 0.25 KM |