Lancaster Way, Market Deeping, PE6
By Newton Fallowell
£ 192,500
Reviews
3 out of 5 stars
Newton Fallowell says ..
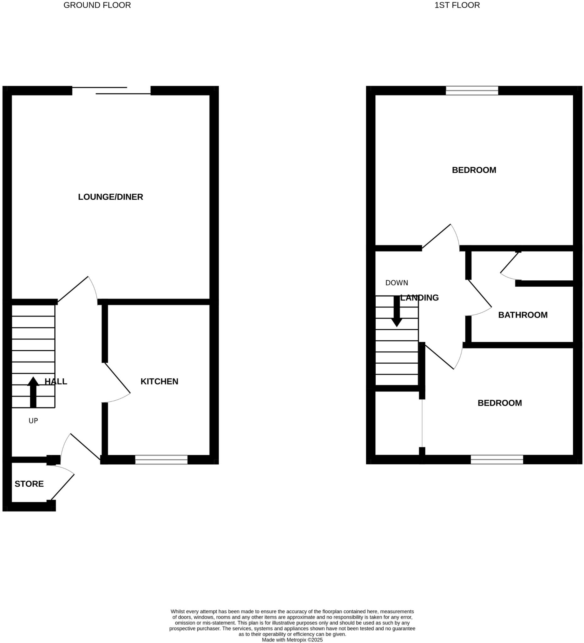
Newton Fallowell are proud to offer for sale with NO ONWARD CHAIN, this well presented two bedroom end of terrace house. The accommodation briefly comprises of an entrance hall, a modern fitted kitchen and a lounge diner with patio doors opening to the rear garden. To the first floor there are...
Property Oracle says ..
This end-of-terrace property on Lancaster Way, Market Deeping, presents a good opportunity for buyers. The house appears to be in good condition, with a modern kitchen and bathroom. The presence of a garden with a shed adds to its appeal. Its location in Market Deeping, with proximity to schools, makes it suitable for families. The price seems reasonable compared to other properties in the area.
Therefore, we give this property 7 / 10. *Disclaimer: This is our option and does constitute a recommendation or financial advice. Do your own research. *
- Price
- 8
- Condition
- 8
- Location
- 7
- Land
- 7
- Bedrooms
- 2
- Bathrooms
- 1
- Sqft (est)
- 770.00
The heatmap indicates the level of crime in the area. The color of the heatmap indicates the crime severity and recency.
Metrics Year-on-Year
- Average area value
- 366,033.00 £Increased by 22.85 %
- Est sale value
- 275,660.00 £Decreased by 2.19 %
- Average area rental value
- 1,155.00 £/moDecreased by 5.41 %
- Est letting value
- 770.00 £/moUnchanged by 0.00 %
- Est rental Yield
- 3.79 %Decreased by 22.97 %
- Crime Rate
- 56.00 %Unchanged by 0.00 %
Agent Activity
Newton Fallowell created the listing.
Nearby Schools
| Name | Type | Ofsted | Distance |
|---|---|---|---|
| William Hildyard Church Of England Primary And Nursery School | Voluntary Aided School | Good | 0.68 KM |
| Market Deeping Community Primary School | Community School | Requires improvement | 0.80 KM |
| Market Deeping Children'S Centre | Children's Centre Linked Site | 0.84 KM | |
| Linchfield Academy | Academy Sponsor Led | 1.66 KM | |
| The Deepings School | Academy Converter | Requires improvement | 2.60 KM |
Images
Nearby Streets
| Name | Average Price | Average Sqft | Distance |
|---|---|---|---|
| Tornado Way | £ 399,000 | 0 | 0.00 KM |
| Northfields Road | £ 300,000 | 0 | 0.00 KM |
| Forge Court | £ 0 | 0 | 0.00 KM |
| Burnside Avenue | £ 0 | 0 | 0.00 KM |
| Bramley Road | £ 0 | 0 | 0.00 KM |
Nearby Listings
| Address | Price | Type | Score | Distance |
|---|---|---|---|---|
| Lancaster Way, Market Deeping, Peterborough | £ 235,000 | BUY | 6 / 10 | 0.00 KM |
| Lancaster Way, Market Deeping, PE6 | £ 192,500 | BUY | 7 / 10 | 0.00 KM |
| Lancaster Way, Market Deeping, Peterborough | £ 140,000 | BUY | 7 / 10 | 0.00 KM |
| Harrier Way, Market Deeping, PE6 | £ 420,000 | BUY | 8 / 10 | 0.07 KM |
| Harrier Way, Market Deeping, PE6 | £ 399,000 | BUY | 7 / 10 | 0.07 KM |
Nearby Properties
| Address | Price | Distance |
|---|---|---|
| 12 Lancaster Way | £ 245,000 | 0.01 KM |
| 2c Lancaster Way | £ 170,000 | 0.01 KM |
| 27 Lancaster Way | £ 160,000 | 0.01 KM |
| 2b Lancaster Way | £ 151,500 | 0.01 KM |
| 1c Lancaster Way | £ 135,000 | 0.01 KM |