Whitehill Road, Meopham
By Kings Estate Agents
£ 860,000
Reviews
4 out of 5 stars
Kings Estate Agents says ..
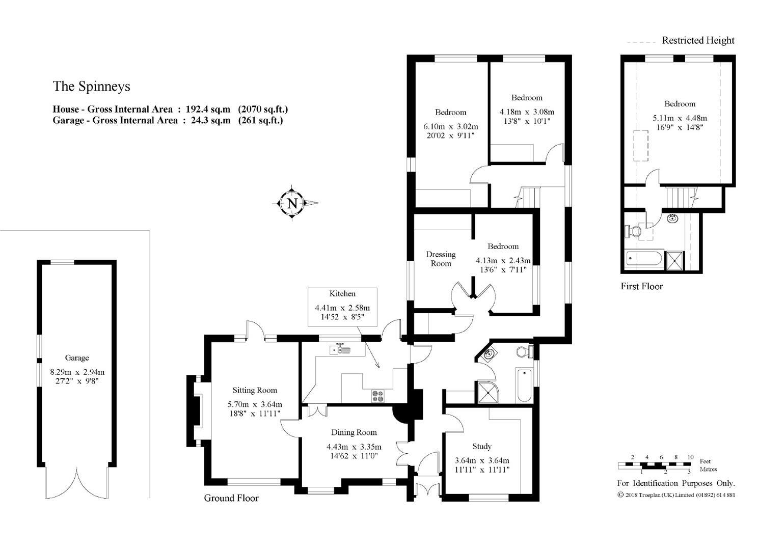
A detached bungalow of charm and character that has been extended to the rear to give spacious flexible accommodation and sited on a generous plot of 0.4 acres. The accommodation comprises: porch, entrance hall, dining room, lounge, study, kitchen/breakfast room, 5 bedrooms and 2 bathrooms, ...
Property Oracle says ..
Meopham is a desirable village in Kent, known for its good schools and convenient access to transport links. The property’s proximity to Meopham train station, providing links to London, adds to its appeal. The presence of several well-regarded schools within a short distance further enhances the location score. The property appears to be well-maintained and in good condition. The images show clean and updated interiors, suggesting that significant renovations are not immediately necessary. The property presents itself well and is ready to move into. The property includes a sizable garden, offering ample outdoor space. The garden is well-maintained and adds significant value to the property. The list price of £860,000 is higher than the average price for the area (£559,450). However, this property is significantly larger than the average house in the area (2,070.98 sqft vs 1,173 sqft). Considering the property’s size, location, condition, and the presence of a garden, the list price appears reasonable, although at the higher end of the market. Nearby comparable properties support this assessment.
Therefore, we give this property 8 / 10. *Disclaimer: This is our option and does constitute a recommendation or financial advice. Do your own research. *
- Price
- 7
- Condition
- 9
- Location
- 9
- Land
- 8
- Bedrooms
- 5
- Bathrooms
- 2
- Sqft (est)
- 2,070.98
The heatmap indicates the level of crime in the area. The color of the heatmap indicates the crime severity and recency.
Metrics Year-on-Year
- Average area value
- 631,833.00 £Increased by 2.70 %
- Est sale value
- 1,126,613.12 £Increased by 24.20 %
- Average area rental value
- 1,875.00 £/moDecreased by 0.21 %
- Est letting value
- 2,070.98 £/moUnchanged by 0.00 %
- Est rental Yield
- 3.56 %Decreased by 3.00 %
- Crime Rate
- 45.00 %Unchanged by 0.00 %
Agent Activity
Kings Estate Agents created the listing.
Nearby Schools
| Name | Type | Ofsted | Distance |
|---|---|---|---|
| Meopham School | Academy Sponsor Led | Outstanding | 0.65 KM |
| Meopham Community Academy | Academy Converter | Good | 0.98 KM |
| Helen Allison School | Other Independent Special School | Good | 1.18 KM |
| Culverstone Green Primary School | Academy Converter | Good | 3.23 KM |
| Vigo Village School | Community School | Good | 4.13 KM |
Images
Nearby Streets
| Name | Average Price | Average Sqft | Distance |
|---|---|---|---|
| A227 | £ 0 | 0 | 0.00 KM |
| Chandler's Road | £ 860,000 | 0 | 0.00 KM |
Nearby Transport
| Name | NLC | TLC | Distance |
|---|---|---|---|
| Meopham | 5116 | MEP | 2.26 KM |
| Sole Street | 5126 | SOR | 2.38 KM |
| Longfield | 5114 | LGF | 7.71 KM |
| Gravesend | 5172 | GRV | 8.25 KM |
| Halling | 5173 | HAI | 9.13 KM |
Nearby Listings
| Address | Price | Type | Score | Distance |
|---|---|---|---|---|
| Whitehill Road, Meopham | £ 860,000 | BUY | 8 / 10 | 0.00 KM |
| Arnold Avenue, Meopham, Kent | £ 500,000 | BUY | 6 / 10 | 0.15 KM |
| Hadley Close, Meopham, Kent | £ 675,000 | BUY | 6 / 10 | 0.16 KM |
| Warwick Gardens, Meopham, Gravesend | £ 650,000 | BUY | 7 / 10 | 0.21 KM |
| Cheyne Walk, Gravesend, DA13 | £ 625,000 | BUY | 7 / 10 | 0.29 KM |
Nearby Properties
| Address | Price | Distance |
|---|---|---|
| Belmont | £ 852,000 | 0.07 KM |
| Hill View | £ 370,000 | 0.07 KM |
| The Hollies | £ 412,500 | 0.07 KM |
| Aysgarth | £ 550,000 | 0.07 KM |
| Linden | £ 480,000 | 0.07 KM |