St. Georges Street, Chorley
BE

St. Georges Street, Chorley

By Ben Rose

£ 189,995

Reviews

3 out of 5 stars

Ben Rose says ..

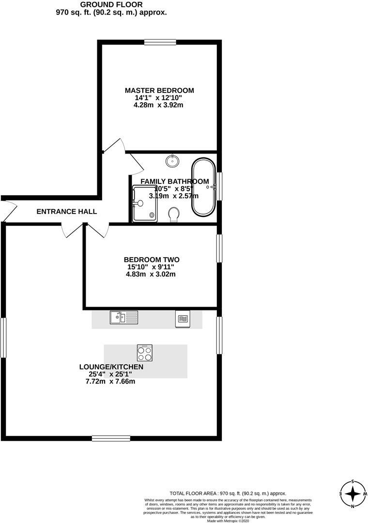
Ben Rose Estate Agents are delighted to present to the market this stunning two-bedroom apartment, perfectly situated on the second floor of a beautifully designed development in the very heart of Chorley town centre. Forming part of an exclusive collection of just six modern apartments on the ev...

Property Oracle says ..

This is a modern two-bedroom apartment located on Saint George’S Street in Chorley. The property is in good condition and features a modern kitchen and bathroom. The apartment is located close to local transportation and schools. The asking price of £189,995 appears reasonable when compared to similar properties in the area. The property benefits from its proximity to Chorley train station and several schools, making it a potentially attractive investment for commuters and families.

Therefore, we give this property 6 / 10. *Disclaimer: This is our option and does constitute a recommendation or financial advice. Do your own research. *

Price
7
Condition
9
Location
7
Land
3
Bedrooms
2
Bathrooms
1
Sqft (est)
970.00

The heatmap indicates the level of crime in the area. The color of the heatmap indicates the crime severity and recency.

Metrics Year-on-Year

Average area value
271,777.00 £
Increased by 15.25 %
from 235,807.00 £
Est sale value
219,220.00 £
Increased by 15.90 %
from 189,150.00 £
Average area rental value
761.00 £/mo
Decreased by 4.04 %
from 793.00 £/mo
Est letting value
0.00 £/mo
from 0.00 £/mo
Est rental Yield
3.36 %
Decreased by 16.83 %
from 4.04 %
Crime Rate
31.00 %
Unchanged by 0.00 %
from 31.00 %

Agent Activity

  • Ben Rose created the listing.

Nearby Schools

NameTypeOfstedDistance
Duke Street Children'S CentreChildren's Centre0.55 KM
Duke Street Primary SchoolCommunity SchoolGood0.60 KM
Duke Street Nursery SchoolLocal Authority Nursery SchoolOutstanding0.69 KM
Chorley, The Parish Of St Laurence Church Of England Primary SchoolVoluntary Aided SchoolGood0.76 KM
Mayfield House SchoolOther Independent Special School0.77 KM

Images

Front External Lounge Lounge/Kitchen/Diner Gated Parking Lounge/Kitchen/Diner Lounge/Kitchen/Diner Lounge/Kitchen/Diner Lounge/Kitchen/Diner Lounge/Kitchen/Diner Lounge/Kitchen/Diner Lounge/Kitchen/Diner Master Bedroom Master Bedroom Master Bedroom Bedroom Two Bedroom Two Hallway Family Bathroom Family Bathroom Family Bathroom St. Georges St Front External

Nearby Streets

NameAverage PriceAverage SqftDistance
St Georges Street £ 000.00 KM
Chapel Street £ 000.00 KM
Victoria Street £ 120,00000.00 KM
Oxford Street £ 109,95000.00 KM
Northumberland Street £ 000.00 KM

Nearby Transport

NameNLCTLCDistance
Chorley2745CRL0.37 KM
Buckshaw Parkway7501BSV4.13 KM
Euxton Balshaw Lane2080EBA4.72 KM
Adlington (Lancashire)2641ADL5.26 KM
Leyland2710LEY8.17 KM

Nearby Listings

AddressPriceTypeScoreDistance
St. Georges Street, Chorley £ 189,995BUY6 / 100.00 KM
Market Street, Chorley £ 199,995BUY4 / 100.17 KM
St. Georges Street, Chorley £ 159,995BUY6 / 100.18 KM
Anderton Street, Chorley £ 120,000BUY5 / 100.20 KM
Market Street, Chorley £ 169,995BUYUnknown0.20 KM

Nearby Properties

AddressPriceDistance
23 Halliwell Street £ 54,0000.06 KM
25 Halliwell Street £ 165,5000.06 KM
40 Halliwell Street £ 201,0000.06 KM
20 St Georges Street £ 97,5000.08 KM
7 St Georges Street £ 185,0000.08 KM