Hermes Close, Fleet
By Selbon property services
£ 800,000
Reviews
3 out of 5 stars
Selbon property services says ..
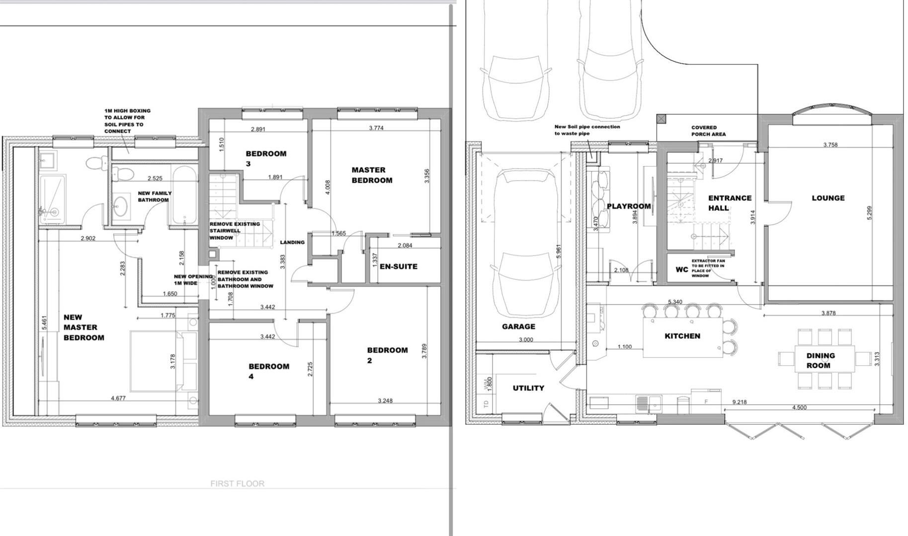
Selbon Estate Agents are delighted to offer the opportunity to purchase this deceptively spacious detached family home, located in the ever popular Pondtail area of Fleet, close to Fleet pond and nature reserve. The current vendors purchased the property in 2021 and have extended, remode...
Property Oracle says ..
This property is a 5 bedroom detached house located in Fleet, Hampshire. It benefits from a large garden, modern kitchen and bathrooms, and is within easy reach of local amenities and schools. The property appears to be in excellent condition and has undergone recent renovations. The asking price is higher than the average for the area, but the size and condition of the property justify this to some extent.
Therefore, we give this property 7 / 10. *Disclaimer: This is our option and does constitute a recommendation or financial advice. Do your own research. *
- Price
- 6
- Condition
- 9
- Location
- 7
- Land
- 8
- Bedrooms
- 5
- Bathrooms
- 2
- Sqft (est)
- 42,730.00
The heatmap indicates the level of crime in the area. The color of the heatmap indicates the crime severity and recency.
Metrics Year-on-Year
- Average area value
- 510,625.00 £Increased by 2.78 %
- Est sale value
- 26,535,330.00 £Increased by 48.21 %
- Average area rental value
- 1,150.00 £/moDecreased by 10.92 %
- Est letting value
- 42,730.00 £/moUnchanged by 0.00 %
- Est rental Yield
- 2.70 %Decreased by 13.46 %
- Crime Rate
- 5.00 %Unchanged by 0.00 %
Agent Activity
Selbon property services created the listing.
Nearby Schools
| Name | Type | Ofsted | Distance |
|---|---|---|---|
| Fleet Infant School | Community School | Outstanding | 1.01 KM |
| Velmead Junior School | Community School | Good | 1.09 KM |
| Heatherside Infant School | Community School | Outstanding | 2.38 KM |
| Heatherside Junior School | Community School | Outstanding | 2.38 KM |
| Tweseldown Infant School | Community School | Outstanding | 2.71 KM |
Images
Nearby Streets
| Name | Average Price | Average Sqft | Distance |
|---|---|---|---|
| Royal Court | £ 0 | 0 | 0.00 KM |
| Hawkins Way | £ 0 | 0 | 0.00 KM |
| Pondview Close | £ 0 | 0 | 0.00 KM |
| Crown Gardens | £ 0 | 0 | 0.00 KM |
| Violet Heath | £ 0 | 0 | 0.00 KM |
Nearby Transport
| Name | NLC | TLC | Distance |
|---|---|---|---|
| Fleet | 5522 | FLE | 1.63 KM |
| Farnborough (Main) | 5521 | FNB | 7.27 KM |
| Blackwater | 5625 | BAW | 7.35 KM |
| Sandhurst (Berks) | 5646 | SND | 7.52 KM |
| Aldershot | 5623 | AHT | 7.65 KM |
Nearby Listings
| Address | Price | Type | Score | Distance |
|---|---|---|---|---|
| Hermes Close, Fleet | £ 800,000 | BUY | 7 / 10 | 0.00 KM |
| Cedar Drive, Fleet, GU51 | £ 850,000 | BUY | 8 / 10 | 0.07 KM |
| Guildford Road, Fleet, Hampshire, GU51 | £ 700,000 | BUY | 7 / 10 | 0.08 KM |
| Guildford Road, Fleet, Hampshire, GU51 | £ 750,000 | BUY | 8 / 10 | 0.10 KM |
| Cedar Drive, Fleet | £ 900,000 | BUY | Unknown | 0.11 KM |
Nearby Properties
| Address | Price | Distance |
|---|---|---|
| 24 Cedar Drive | £ 530,000 | 0.07 KM |
| 12 Cedar Drive | £ 320,000 | 0.07 KM |
| 21 Cedar Drive | £ 500,000 | 0.07 KM |
| 10 Cedar Drive | £ 415,000 | 0.07 KM |
| 20 Cedar Drive | £ 404,000 | 0.07 KM |