Leonard Street, Stockton Heath, Warrington
By Gascoigne Halman
£ 245,000
Reviews
3 out of 5 stars
Gascoigne Halman says ..
This charming two-bedroom period mid-terrace enjoys a prime location in Stockton Heath village, with easy access to local amenities, bars and restaurants.
Property Oracle says ..
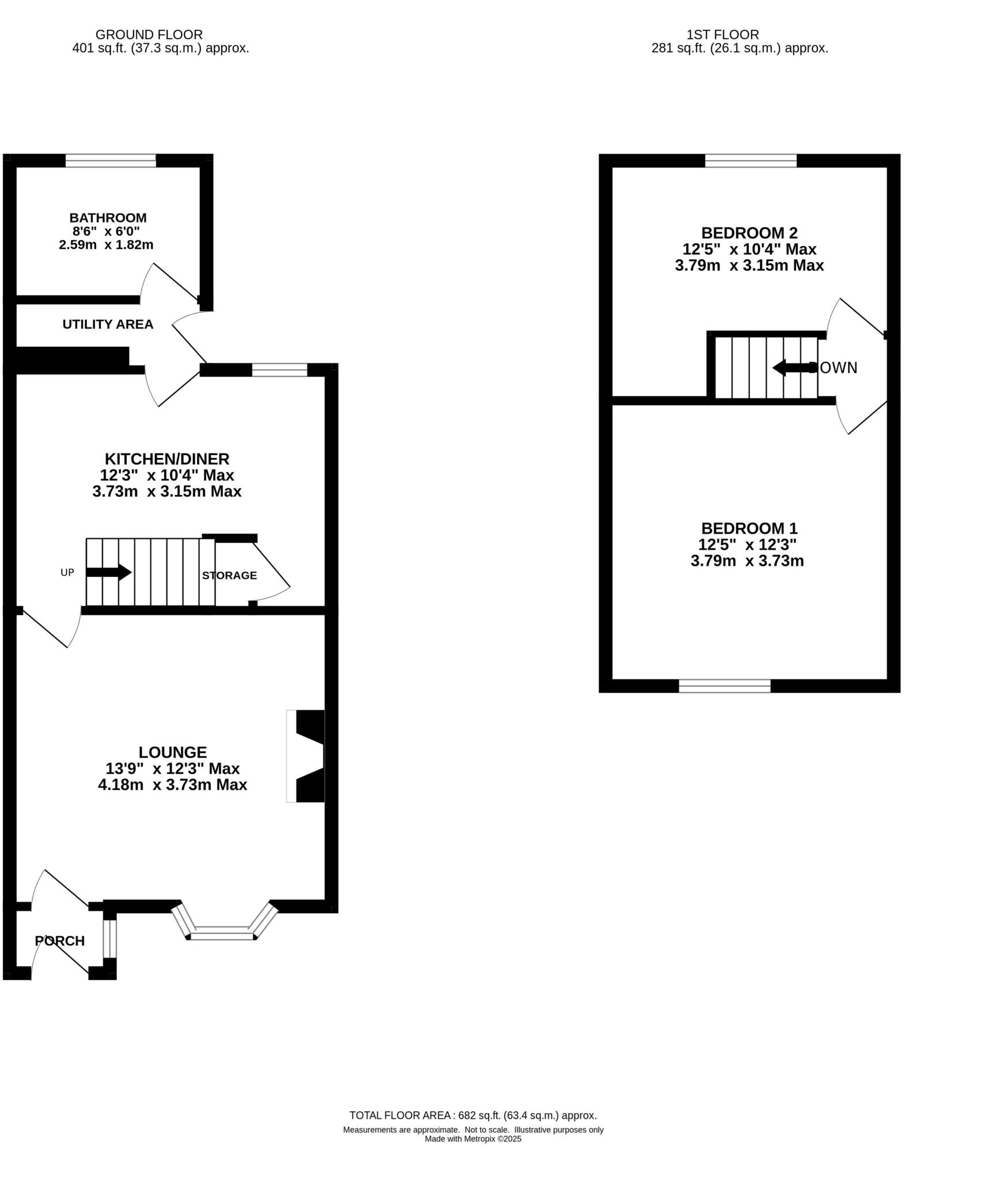
This is a two-bedroom terraced property located on Leonard Street in Stockton Heath, Warrington. The property is in good condition and has a modern kitchen and bathroom. The property also has a garden to the rear. The property is located in a desirable area, close to schools and amenities. The property is listed for sale at £245,000, which is below the average price for a property in the area. Overall, this is a good opportunity to purchase a property in a sought-after location.
Therefore, we give this property 7 / 10. *Disclaimer: This is our option and does constitute a recommendation or financial advice. Do your own research. *
- Price
- 8
- Condition
- 7
- Location
- 7
- Land
- 6
- Bedrooms
- 2
- Bathrooms
- 1
- Sqft (est)
- 682.00
The heatmap indicates the level of crime in the area. The color of the heatmap indicates the crime severity and recency.
Metrics Year-on-Year
- Average area value
- 393,000.00 £Decreased by 15.72 %
- Est sale value
- 307,582.00 £Increased by 37.92 %
- Average area rental value
- 1,388.00 £/moIncreased by 10.60 %
- Est letting value
- 682.00 £/mo
- Est rental Yield
- 4.24 %Increased by 31.27 %
- Crime Rate
- 15.00 %Unchanged by 0.00 %
Agent Activity
Gascoigne Halman created the listing.
Nearby Schools
| Name | Type | Ofsted | Distance |
|---|---|---|---|
| St Thomas' Cofe Primary School | Voluntary Aided School | Good | 0.50 KM |
| Stockton Heath Primary School | Community School | Good | 0.77 KM |
| Priestley College | Academy 16-19 Converter | Good | 0.88 KM |
| Our Lady'S Catholic Primary School | Voluntary Aided School | Good | 1.18 KM |
| St Monica'S Catholic Primary School | Voluntary Aided School | Good | 1.21 KM |
Images
Nearby Streets
| Name | Average Price | Average Sqft | Distance |
|---|---|---|---|
| Ellison Street | £ 266,250 | 0 | 0.00 KM |
| Hawthorn Grove | £ 280,000 | 0 | 0.00 KM |
| Victoria Road | £ 532,800 | 0 | 0.00 KM |
| Black Bear Park | £ 475,000 | 0 | 0.00 KM |
| Trans Pennine Trail | £ 0 | 0 | 0.00 KM |
Nearby Transport
| Name | NLC | TLC | Distance |
|---|---|---|---|
| Warrington Central | 2390 | WAC | 2.55 KM |
| Warrington Bank Quay | 2384 | WBQ | 2.85 KM |
| Padgate | 2387 | PDG | 4.49 KM |
| Warrington West | 6583 | WAW | 6.82 KM |
| Birchwood | 2304 | BWD | 7.52 KM |
Nearby Listings
| Address | Price | Type | Score | Distance |
|---|---|---|---|---|
| Leonard Street, Stockton Heath, Warrington | £ 245,000 | BUY | 7 / 10 | 0.00 KM |
| Leonard Street, Stockton Heath, Warrington | £ 250,000 | BUY | 7 / 10 | 0.01 KM |
| Leonard Street, Stockton Heath, Warrington, WA4 2UP | £ 260,000 | BUY | 6 / 10 | 0.04 KM |
| Leonard Street, Stockton Heath, Warrington | £ 299,950 | BUY | 7 / 10 | 0.07 KM |
| Pike Street, Stockton Heath, Warrington | £ 250,000 | BUY | 6 / 10 | 0.07 KM |
Nearby Properties
| Address | Price | Distance |
|---|---|---|
| 8 Leonard Street | £ 155,000 | 0.01 KM |
| 18 Leonard Street | £ 141,500 | 0.01 KM |
| 2 Leonard Street | £ 140,000 | 0.01 KM |
| 14 Leonard Street | £ 148,000 | 0.01 KM |
| 22 Leonard Street | £ 178,000 | 0.01 KM |