Dart Avenue, North Hykeham, Lincoln, Lincolnshire, LN6
By Your Move
£ 300,000
Reviews
3 out of 5 stars
Your Move says ..
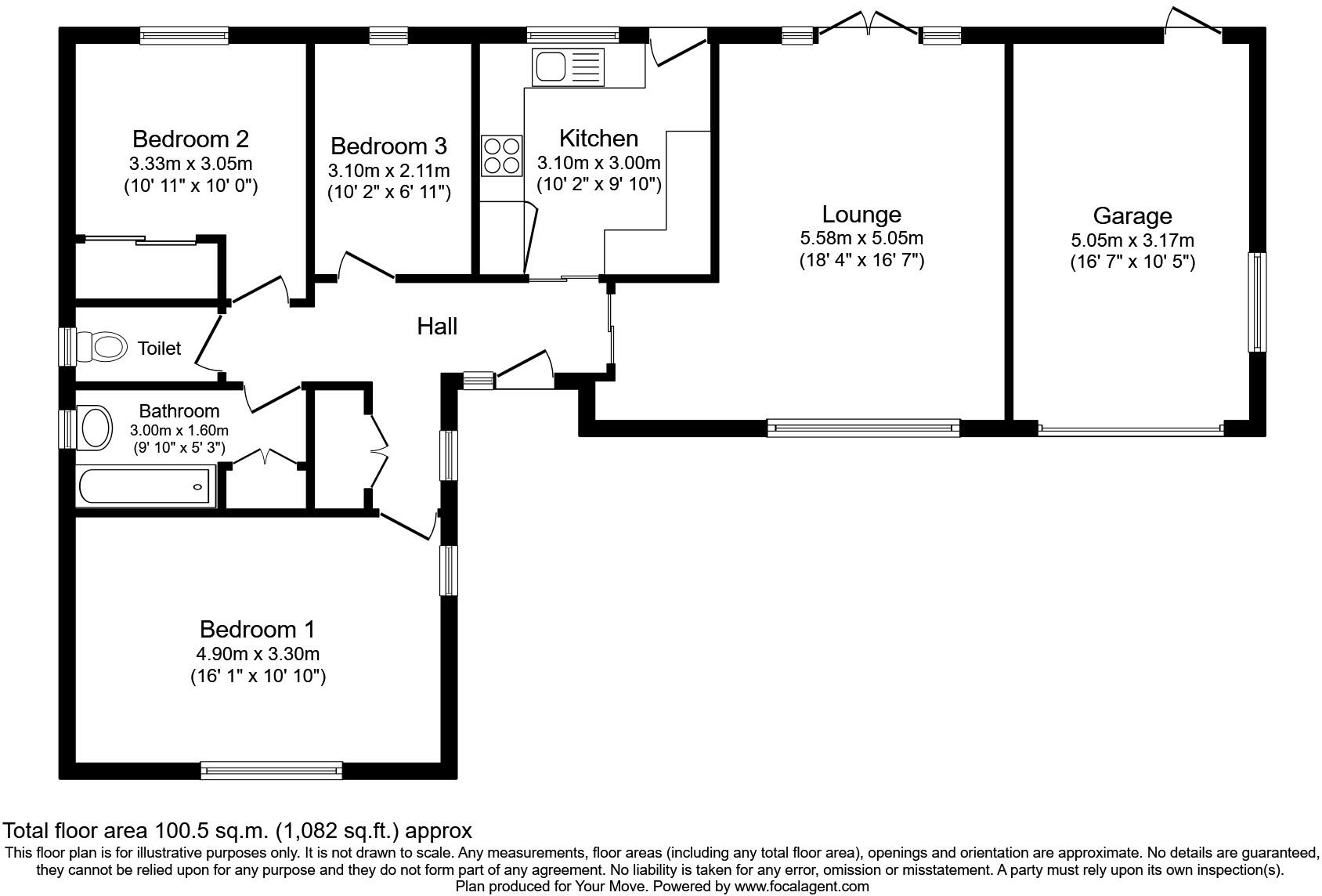
***SPACIOUS DETACHED BUNGALOW WITH A DOUBLE GARAGE*** Being sold with NO ONWARD CHAIN is this substantial Three bedroom Detached bungalow which offers plenty of further scope & potential. Having two garages one of which is a double. BOOK YOUR VIEWING NOW! North Kesteven District Council-Band C.
Property Oracle says ..
This three-bedroom bungalow on Dart Avenue in North Hykeham presents a solid opportunity for buyers. The property features a functional layout with a garden. While the house is generally in good order, the kitchen and bathroom would benefit from modernisation. The location is convenient, with nearby schools and transport links. Overall, this property offers good value for its price, especially for those willing to invest in some updates.
Therefore, we give this property 6 / 10. *Disclaimer: This is our option and does constitute a recommendation or financial advice. Do your own research. *
- Price
- 7
- Condition
- 6
- Location
- 7
- Land
- 7
- Bedrooms
- 3
- Bathrooms
- 1
- Sqft (est)
- 1,081.77
The heatmap indicates the level of crime in the area. The color of the heatmap indicates the crime severity and recency.
Metrics Year-on-Year
- Average area value
- 921,429.00 £Increased by 70.18 %
- Est sale value
- 1,216,991.25 £Increased by 95.99 %
- Average area rental value
- 1,672.00 £/moDecreased by 4.68 %
- Est letting value
- 2,163.54 £/moIncreased by 100.00 %
- Est rental Yield
- 2.18 %Decreased by 43.96 %
- Crime Rate
- 3.00 %Unchanged by 0.00 %
Agent Activity
Your Move created the listing.
Nearby Schools
| Name | Type | Ofsted | Distance |
|---|---|---|---|
| The Lincoln Manor Leas Junior School | Academy Converter | Good | 0.91 KM |
| The Lincoln Manor Leas Infants School | Academy Converter | Good | 0.91 KM |
| The Lincoln St Christopher'S School | Community Special School | Good | 1.03 KM |
| Fosse Way Academy | Academy Converter | Good | 1.10 KM |
| Acorn Free School | Free Schools Alternative Provision | Good | 1.51 KM |
Images
Nearby Streets
| Name | Average Price | Average Sqft | Distance |
|---|---|---|---|
| Tyne Close | £ 0 | 0 | 0.00 KM |
| Lincoln Road | £ 250,000 | 0 | 0.00 KM |
| Skerries Close | £ 293,333 | 0 | 0.00 KM |
| A1434 | £ 353,000 | 0 | 0.00 KM |
| Greenbank Drive | £ 0 | 0 | 0.00 KM |
Nearby Transport
| Name | NLC | TLC | Distance |
|---|---|---|---|
| Hykeham | 6310 | HKM | 3.00 KM |
| Lincoln | 6340 | LCN | 5.54 KM |
Nearby Listings
| Address | Price | Type | Score | Distance |
|---|---|---|---|---|
| Dart Avenue, North Hykeham, Lincoln, Lincolnshire, LN6 | £ 300,000 | BUY | 6 / 10 | 0.00 KM |
| Windermere Avenue, North Hykeham, LN6 | £ 250,000 | BUY | 7 / 10 | 0.03 KM |
| Windermere Avenue, North Hykeham, LN6 | £ 200,000 | BUY | 7 / 10 | 0.10 KM |
| Windermere Avenue, North Hykeham, Lincoln, Lincolnshire, LN6 | £ 280,000 | BUY | 7 / 10 | 0.11 KM |
| Tyne Close, North Hykeham, Lincoln | £ 250,000 | BUY | Unknown | 0.12 KM |
Nearby Properties
| Address | Price | Distance |
|---|---|---|
| 46 Windermere Avenue | £ 47,942 | 0.03 KM |
| 36 Windermere Avenue | £ 180,000 | 0.03 KM |
| 48 Windermere Avenue | £ 163,000 | 0.03 KM |
| 22 Windermere Avenue | £ 147,500 | 0.03 KM |
| 44 Windermere Avenue | £ 275,000 | 0.03 KM |