The Birches, The Avenue, Ross-on-wye, Herefordshire, HR9
By John Goodwin FRICS
£ 675,000
Reviews
3 out of 5 stars
John Goodwin FRICS says ..
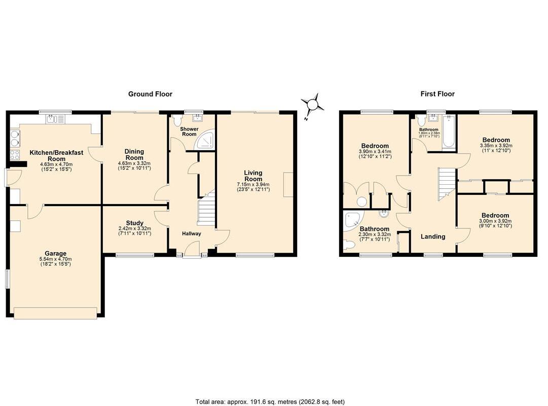
Generous and Versatile Accommodation, Positioned in a Highly Sought After Residential Location. Easy Access of Ross Town Centre & Countryside Walks. Ample Parking and Double Garage. EPC C
Property Oracle says ..
The Birches is a detached property located on The Avenue in Ross-on-Wye. It features four bedrooms and three bathrooms. The property appears to be well-maintained, with a traditional style. It benefits from a garden and a garage. The property is located close to local schools and amenities. While the asking price is above the average for the area, the property offers considerable appeal due to its location and features.
Therefore, we give this property 6 / 10. *Disclaimer: This is our option and does constitute a recommendation or financial advice. Do your own research. *
- Price
- 6
- Condition
- 7
- Location
- 7
- Land
- 7
- Bedrooms
- 4
- Bathrooms
- 3
The heatmap indicates the level of crime in the area. The color of the heatmap indicates the crime severity and recency.
Metrics Year-on-Year
- Average area value
- 360,250.00 £Increased by 11.43 %
- Average area rental value
- 1,009.00 £/moIncreased by 12.86 %
- Est rental Yield
- 3.36 %Increased by 1.20 %
- Crime Rate
- 1.00 %Unchanged by 0.00 %
Agent Activity
John Goodwin FRICS created the listing.
Nearby Schools
| Name | Type | Ofsted | Distance |
|---|---|---|---|
| St Joseph'S Rc Primary School | Voluntary Aided School | Good | 0.13 KM |
| Ashfield Park Primary School | Community School | Good | 0.63 KM |
| Children'S Centre, Ross On Wye | Children's Centre | 1.05 KM | |
| Brampton Abbotts Cofe Primary School | Voluntary Aided School | Good | 1.55 KM |
| John Kyrle High School And Sixth Form Centre Academy | Academy Converter | Good | 1.75 KM |
Images
Nearby Streets
| Name | Average Price | Average Sqft | Distance |
|---|---|---|---|
| Merrivale Road | £ 0 | 0 | 0.00 KM |
| Lakeside Drive | £ 0 | 0 | 0.00 KM |
| Woodland View | £ 0 | 0 | 0.00 KM |
| Palmerston Road | £ 300,000 | 0 | 0.00 KM |
| Market Place | £ 235,000 | 0 | 0.00 KM |
Nearby Listings
| Address | Price | Type | Score | Distance |
|---|---|---|---|---|
| The Birches, The Avenue, Ross-on-wye, Herefordshire, HR9 | £ 675,000 | BUY | 6 / 10 | 0.00 KM |
| The Avenue, Ross-on-Wye, Herefordshire, HR9 | £ 475,000 | BUY | 6 / 10 | 0.12 KM |
| Eastfield Road, Ross-on-Wye, Herefordshire, HR9 | £ 525,000 | BUY | 4 / 10 | 0.18 KM |
| Merrivale Road, Ross-on-Wye, Herefordshire, HR9 | £ 600,000 | BUY | 7 / 10 | 0.20 KM |
| 12 Kent Avenue, Ross-on-Wye, Herefordshire | £ 395,000 | BUY | 7 / 10 | 0.20 KM |
Nearby Properties
| Address | Price | Distance |
|---|---|---|
| Lime Trees | £ 400,000 | 0.10 KM |
| Penwood | £ 420,000 | 0.10 KM |
| 10 Eastfield Road | £ 265,000 | 0.14 KM |
| 16 Eastfield Road | £ 200,000 | 0.14 KM |
| 20 Eastfield Road | £ 290,000 | 0.14 KM |