Woodcote Grove Road, Coulsdon
By Monochrome Homes
£ 1,000,000
Reviews
3 out of 5 stars
Monochrome Homes says ..
Exclusive To Monochrome Homes -A stunning six-bedroom detached home in Purley’s exclusive Woodcote area, combining luxury, space, and family comfort on a generous plot.
Property Oracle says ..
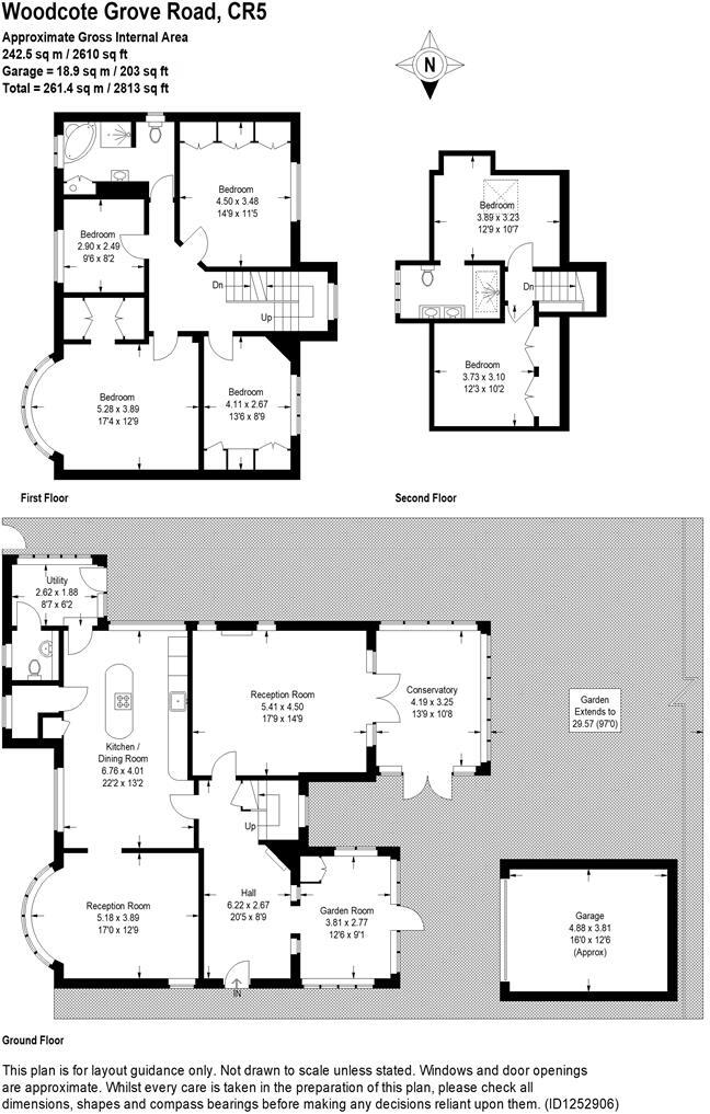
This is a detached property located on Woodcote Grove Road in Coulsdon. It features six bedrooms and three bathrooms, making it suitable for a large family. The property spans 2,095 square feet and includes a garden with a patio and swimming pool. The interior is modern and well-maintained, with a contemporary kitchen and bathrooms. The property is conveniently located near schools and transportation links, enhancing its appeal. The asking price of £1,000,000 appears reasonable when compared to similar properties in the area, suggesting good value for money. The property also benefits from off-street parking and a garage.
Therefore, we give this property 7 / 10. *Disclaimer: This is our option and does constitute a recommendation or financial advice. Do your own research. *
- Price
- 7
- Condition
- 8
- Location
- 7
- Land
- 7
- Bedrooms
- 6
- Bathrooms
- 3
- Sqft (est)
- 2,095.00
The heatmap indicates the level of crime in the area. The color of the heatmap indicates the crime severity and recency.
Metrics Year-on-Year
- Average area value
- 1,268,750.00 £Increased by 29.81 %
- Est sale value
- 3,320,575.00 £Increased by 115.35 %
- Average area rental value
- 2,317.00 £/moIncreased by 19.00 %
- Est letting value
- 4,190.00 £/moIncreased by 100.00 %
- Est rental Yield
- 2.19 %Decreased by 8.37 %
- Crime Rate
- 3.00 %Unchanged by 0.00 %
Agent Activity
Monochrome Homes created the listing.
Nearby Schools
| Name | Type | Ofsted | Distance |
|---|---|---|---|
| Woodcote Primary School | Academy Converter | 0.13 KM | |
| Woodcote High School | Academy Converter | Good | 0.34 KM |
| Cumnor House School | Other Independent School | 1.09 KM | |
| Smitham Primary School | Community School | Good | 1.31 KM |
| St Aidan'S Catholic Primary School | Academy Converter | Good | 1.55 KM |
Images
Nearby Streets
| Name | Average Price | Average Sqft | Distance |
|---|---|---|---|
| Fairfield Way | £ 560,500 | 0 | 0.00 KM |
| Meadow Close | £ 0 | 0 | 0.00 KM |
| Farthing Way | £ 243,500 | 0 | 0.00 KM |
| Railway Terrace | £ 0 | 0 | 0.00 KM |
| Badgers Walk | £ 0 | 0 | 0.00 KM |
Nearby Transport
| Name | NLC | TLC | Distance |
|---|---|---|---|
| Coulsdon Town | 5382 | CDN | 0.88 KM |
| Coulsdon South | 5408 | CDS | 1.46 KM |
| Reedham (London) | 5431 | RHM | 1.66 KM |
| Woodmansterne | 5441 | WME | 2.08 KM |
| Purley | 5379 | PUR | 2.85 KM |
Nearby Listings
| Address | Price | Type | Score | Distance |
|---|---|---|---|---|
| Woodcote Grove Road, Coulsdon | £ 1,000,000 | BUY | 7 / 10 | 0.00 KM |
| Woodcote Grove Road, Coulsdon | £ 1,300,000 | BUY | Unknown | 0.02 KM |
| Woodcote Grove Road, Coulsdon | £ 1,050,000 | BUY | 8 / 10 | 0.06 KM |
| Woodcote Grove Road, Coulsdon, CR5 | £ 1,100,000 | BUY | Unknown | 0.06 KM |
| Woodcote Grove Road, Coulsdon, Surrey, CR5 | £ 700,000 | BUY | 7 / 10 | 0.06 KM |
Nearby Properties
| Address | Price | Distance |
|---|---|---|
| 91 Woodcote Grove Road | £ 725,000 | 0.05 KM |
| 101 Woodcote Grove Road | £ 740,000 | 0.05 KM |
| 115 Woodcote Grove Road | £ 730,000 | 0.05 KM |
| 105 Woodcote Grove Road | £ 1,130,000 | 0.05 KM |
| 105a Woodcote Grove Road | £ 990,000 | 0.05 KM |