Kingswood says ..
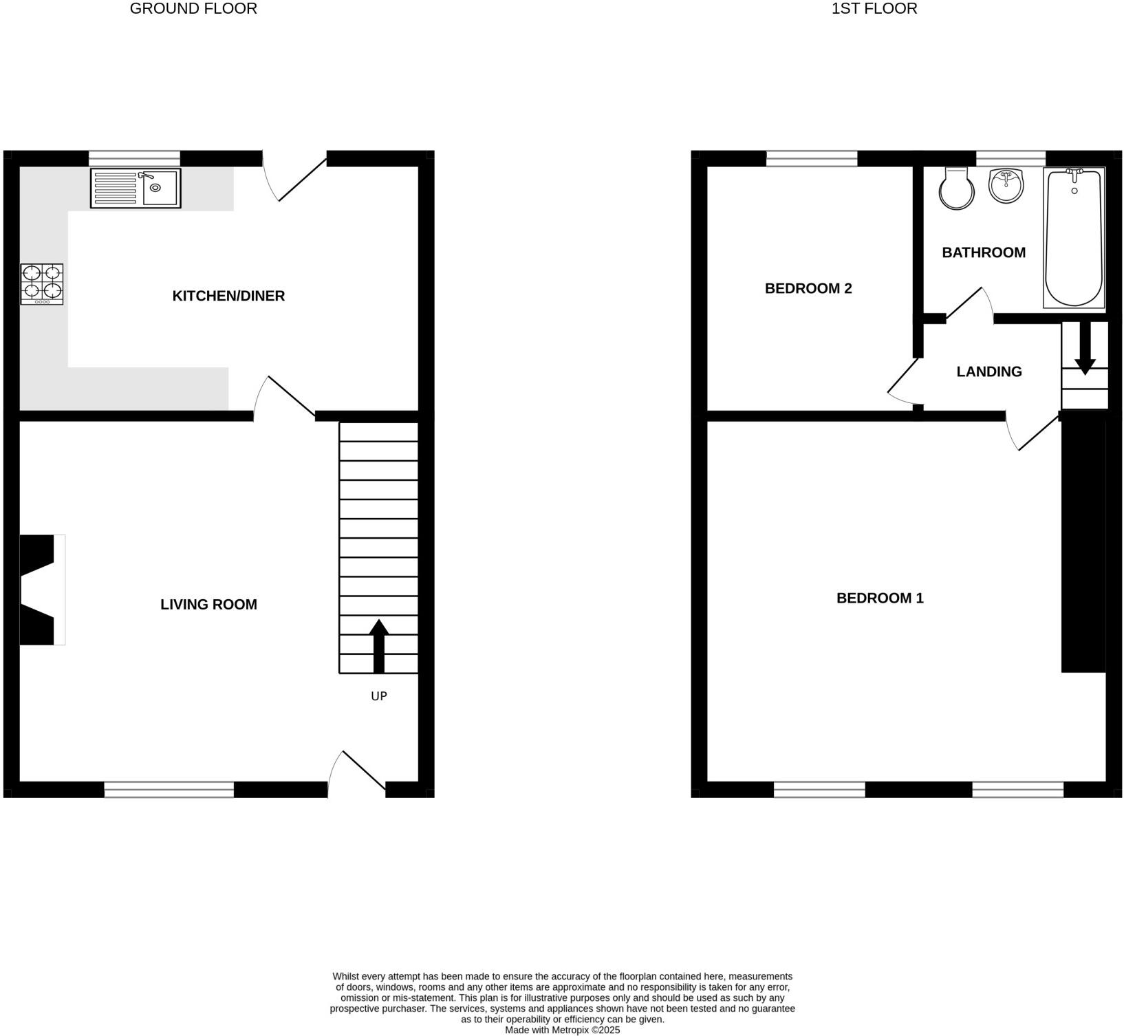
Attention first time buyers or investors!!! This very spacious two bedroom terraced house has been renovated to a high standard making this ideal for a first time buyer who is looking to move on to the ladder or for an investor who is looking to expand their portfolio as this is a very popular re...
Property Oracle says ..
Therefore, we give this property 6 / 10. *Disclaimer: This is our option and does constitute a recommendation or financial advice. Do your own research. *
- Price
- 8
- Condition
- 7
- Location
- 7
- Land
- 5
- Bedrooms
- 2
- Bathrooms
- 1
- Sqft (est)
- 808.00
The heatmap indicates the level of crime in the area. The color of the heatmap indicates the crime severity and recency.
Metrics Year-on-Year
- Average area value
- 308,182.00 £Increased by 29.01 %
- Est sale value
- 288,456.00 £Increased by 74.15 %
- Average area rental value
- 811.00 £/moDecreased by 5.59 %
- Est letting value
- 0.00 £/mo
- Est rental Yield
- 3.16 %Decreased by 26.85 %
- Crime Rate
- 14.00 %Unchanged by 0.00 %
from 238,886.00 £
from 165,640.00 £
from 859.00 £/mo
from 0.00 £/mo
from 4.32 %
from 14.00 %
Agent Activity
Kingswood created the listing.
Nearby Schools
| Name | Type | Ofsted | Distance |
|---|---|---|---|
| St Joseph'S Catholic Primary School, Preston | Voluntary Aided School | Good | 0.40 KM |
| Ribbleton Avenue Infant School | Community School | Outstanding | 0.47 KM |
| Ribbleton Avenue Methodist Junior School | Voluntary Controlled School | Good | 0.54 KM |
| Preston Muslim Girls High School | Voluntary Aided School | Outstanding | 0.66 KM |
| St Gregory'S Catholic Primary School, Preston | Voluntary Aided School | Outstanding | 0.95 KM |
Images
Nearby Streets
| Name | Average Price | Average Sqft | Distance |
|---|---|---|---|
| Poynter Street | £ 0 | 0 | 0.00 KM |
| West View | £ 0 | 0 | 0.00 KM |
| Wignall Street | £ 0 | 0 | 0.00 KM |
| Lonsdale Road | £ 0 | 0 | 0.00 KM |
| Romford Road | £ 0 | 0 | 0.00 KM |
Nearby Transport
| Name | NLC | TLC | Distance |
|---|---|---|---|
| Preston (Lancs) | 2753 | PRE | 3.29 KM |
| Lostock Hall | 2689 | LOH | 4.89 KM |
| Bamber Bridge | 2561 | BMB | 5.04 KM |
| Leyland | 2710 | LEY | 7.69 KM |
Nearby Listings
| Address | Price | Type | Score | Distance |
|---|---|---|---|---|
| Fletcher Road, Preston, PR1 | £ 135,000 | BUY | 6 / 10 | 0.00 KM |
| Raikes Road, Preston, Lancashire, PR1 | £ 112,500 | BUY | 6 / 10 | 0.04 KM |
| Raikes Road, Preston | £ 145,000 | BUY | Unknown | 0.04 KM |
| Dodgson Road, Preston, PR1 | £ 139,995 | BUY | 6 / 10 | 0.04 KM |
| Dodgson Road, Preston, PR1 | £ 125,000 | BUY | Unknown | 0.04 KM |
Nearby Properties
| Address | Price | Distance |
|---|---|---|
| 251 Fletcher Road | £ 17,000 | 0.02 KM |
| 235 Fletcher Road | £ 70,000 | 0.02 KM |
| 234 Fletcher Road | £ 66,000 | 0.02 KM |
| 239 Fletcher Road | £ 80,500 | 0.02 KM |
| 198 Fletcher Road | £ 76,000 | 0.02 KM |