Ross Road, Kilcot, Newent
By Steve Gooch Estate Agents
£ 465,000
Reviews
3 out of 5 stars
Steve Gooch Estate Agents says ..
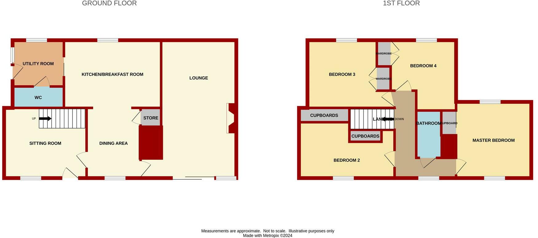
A FOUR DOUBLE BEDROOM DETACHED COTTAGE having TWO RECEPTIONS, situated in a PLOT OF 1/5TH OF AN ACRE, SOUTH FACING TO THE FRONT, AMPLE PARKING, DETACHED DOUBLE GARAGE / WORKSHOP situated within EASY REACH OF THE MARKET TOWN OF NEWENT.
Property Oracle says ..
This four-bedroom detached cottage in Kilcot, Gloucestershire presents a charming opportunity for family living in a tranquil setting. The property’s stone facade and traditional design blend well with the village’s character. The interior offers a good amount of living space, featuring two reception rooms, a kitchen with an island, and a bathroom. The kitchen shows signs of having been well maintained, although the decor appears slightly dated. The inclusion of four bedrooms suggests ample accommodation for a growing family.
The presence of a substantial garden is a significant bonus, with room for outdoor recreation. While there may be elements in need of modernization, the overall condition appears good, and the potential for improvements enhances its long-term investment potential. There is also on site parking and a detached garage/workshop which is an additional benefit.
The location in Kilcot offers a balance between rural living and access to the nearby amenities and services of Newent. The proximity to several well-regarded schools makes it attractive to families. However, potential buyers may want to consider the lack of nearby public transportation. The price appears competitive within the local market but should be examined thoroughly against similar properties to ensure it accurately reflects the market value.
Therefore, we give this property 6 / 10. *Disclaimer: This is our option and does constitute a recommendation or financial advice. Do your own research. *
- Price
- 7
- Condition
- 6
- Location
- 7
- Land
- 4
- Bedrooms
- 4
- Bathrooms
- 1
- Sqft (est)
- 1,000.00
The heatmap indicates the level of crime in the area. The color of the heatmap indicates the crime severity and recency.
Metrics Year-on-Year
- Average area value
- 268,125.00 £Increased by 15.58 %
- Est sale value
- 273,000.00 £Increased by 19.21 %
- Average area rental value
- 1,044.00 £/moIncreased by 5.56 %
- Est letting value
- 1,000.00 £/mo
- Est rental Yield
- 4.67 %Decreased by 8.79 %
- Crime Rate
- 3.00 %Unchanged by 0.00 %
Agent Activity
Steve Gooch Estate Agents created the listing.
Nearby Schools
| Name | Type | Ofsted | Distance |
|---|---|---|---|
| The Family Tree Children'S Centre (Branches) | Children's Centre | 3.38 KM | |
| Newent Community School And Sixth Form Centre | Academy Converter | Good | 3.53 KM |
| Glebe Infants' School | Foundation School | Good | 3.64 KM |
| Picklenash Junior School | Foundation School | Good | 3.70 KM |
| Gorsley Goffs Primary School | Voluntary Controlled School | Good | 3.79 KM |
Images
Nearby Streets
| Name | Average Price | Average Sqft | Distance |
|---|---|---|---|
| Mill Lane | £ 0 | 0 | 0.00 KM |
| Conigree Road | £ 0 | 0 | 0.00 KM |
Nearby Listings
| Address | Price | Type | Score | Distance |
|---|---|---|---|---|
| Ross Road, Kilcot, Newent | £ 465,000 | BUY | 6 / 10 | 0.00 KM |
| Stony Lane, Kilcot, Newent | £ 500,000 | BUY | Unknown | 0.11 KM |
| Stony Lane, Kilcot, Newent | £ 575,000 | BUY | Unknown | 0.15 KM |
| Kilcot Lane, Kilcot, Newent | £ 665,000 | BUY | 7 / 10 | 0.30 KM |
| Aston Ingham Road, Kilcot, Newent | £ 975,000 | BUY | 7 / 10 | 0.78 KM |
Nearby Properties
| Address | Price | Distance |
|---|---|---|
| The Nest | £ 249,950 | 0.19 KM |
| The Old Post Office | £ 328,000 | 0.19 KM |
| Sunnycroft | £ 325,000 | 0.19 KM |
| Rosemary Cottage | £ 22,500 | 0.33 KM |
| Grasmere | £ 830,000 | 0.33 KM |