Lomond says ..
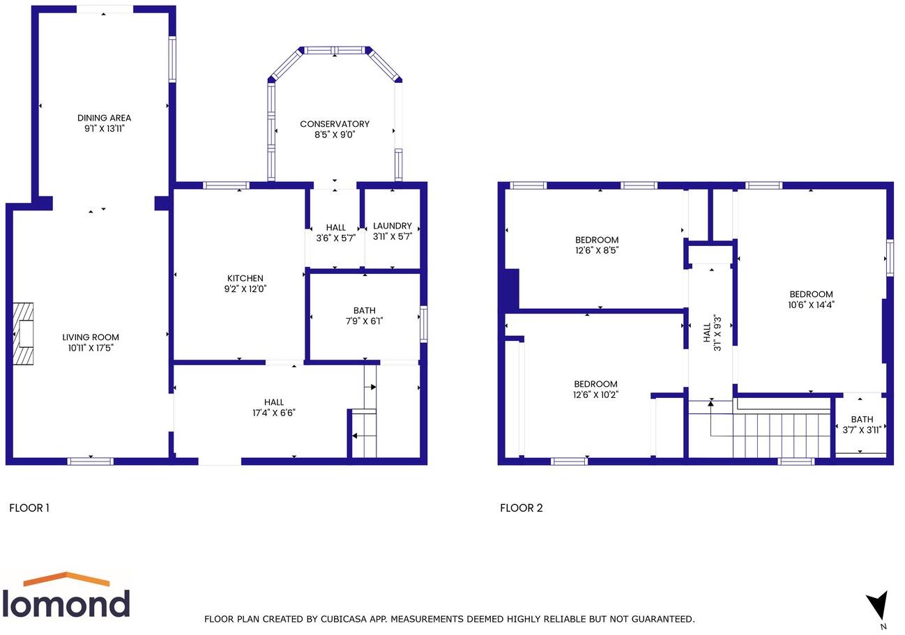
Occupying a large plot with extensive garden grounds and ample parking and outbuildings. 2 Duncan Drive offers generous living space with three bedrooms, large lounge/ diner, conservatory, kitchen, and newly fitted bathroom. The location will appeal to the family market, and those seeking ease...
Property Oracle says ..
Therefore, we give this property 8 / 10. *Disclaimer: This is our option and does constitute a recommendation or financial advice. Do your own research. *
- Price
- 9
- Condition
- 8
- Location
- 7
- Land
- 9
- Bedrooms
- 3
- Bathrooms
- 2
- Sqft (est)
- 1,123.34
The heatmap indicates the level of crime in the area. The color of the heatmap indicates the crime severity and recency.
Metrics Year-on-Year
- Average area value
- 327,363.00 £Increased by 26.97 %
- Est sale value
- 431,362.56 £Increased by 70.67 %
- Average area rental value
- 1,112.00 £/moIncreased by 23.69 %
- Est letting value
- 1,123.34 £/mo
- Est rental Yield
- 4.08 %Decreased by 2.39 %
- Crime Rate
- 0.00 %
from 257,821.00 £
from 252,751.50 £
from 899.00 £/mo
from 0.00 £/mo
from 4.18 %
from 0.00 %
Agent Activity
Lomond created the listing.
Images
Nearby Streets
| Name | Average Price | Average Sqft | Distance |
|---|---|---|---|
| Beech Avenue | £ 150,000 | 0 | 0.00 KM |
| Sloan Place | £ 0 | 0 | 0.00 KM |
| Watson Terrace | £ 150,000 | 0 | 0.00 KM |
| Gilbertfield Place | £ 70,000 | 0 | 0.00 KM |
| Queens Court | £ 135,000 | 0 | 0.00 KM |
Nearby Transport
| Name | NLC | TLC | Distance |
|---|---|---|---|
| Irvine | 9508 | IRV | 2.03 KM |
| Barassie | 9466 | BSS | 6.00 KM |
| Kilwinning | 9517 | KWN | 7.42 KM |
| Troon | 9562 | TRN | 7.99 KM |
Nearby Listings
| Address | Price | Type | Score | Distance |
|---|---|---|---|---|
| Duncan Drive, Irvine, KA12 | £ 195,000 | BUY | Unknown | 0.00 KM |
| Duncan Drive, Irvine, KA12 | £ 190,000 | BUY | 8 / 10 | 0.00 KM |
| 16 Duncan Drive, Irvine, KA12 0HY | £ 160,000 | BUY | 7 / 10 | 0.04 KM |
| Watson Terrace, Irvine, KA12 0HZ | £ 149,995 | BUY | 7 / 10 | 0.08 KM |
| Watson Terrace, Irvine , KA12 | £ 170,000 | BUY | 7 / 10 | 0.09 KM |