Yopa says ..
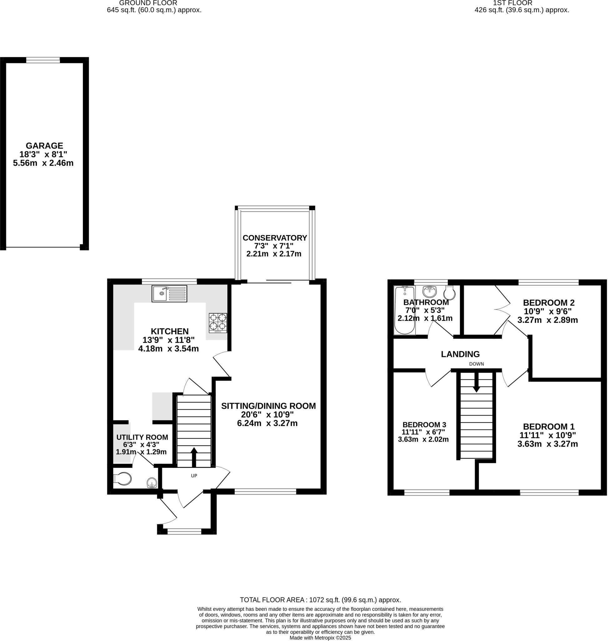
This end of terrace home is located in CENTRAL LOCATION in reading situated in a quiet cul-de-sac close to local amenities. The property offers spacious accommodation including a sitting/dining room, a conservatory three generous bedrooms, LARGE CORNER PLOT GARDEN, and has NO ONWARD CHAIN.
Property Oracle says ..
This is an end-of-terrace property located on Heron Way in Reading. It features three bedrooms and two bathrooms, with a square footage of 1,072. The property includes a garden and off-street parking. While the house is in reasonable condition, some modernisation could enhance its appeal. Its location is convenient for families, with several schools nearby, and commuters, due to its proximity to Reading West train station. The asking price of £400,000 seems reasonable given the property’s size, location, and the local market conditions.
Therefore, we give this property 6 / 10. *Disclaimer: This is our option and does constitute a recommendation or financial advice. Do your own research. *
- Price
- 7
- Condition
- 6
- Location
- 7
- Land
- 7
- Bedrooms
- 3
- Bathrooms
- 2
- Sqft (est)
- 1,072.00
The heatmap indicates the level of crime in the area. The color of the heatmap indicates the crime severity and recency.
Metrics Year-on-Year
- Average area value
- 382,304.00 £Increased by 10.41 %
- Est sale value
- 455,600.00 £Increased by 23.91 %
- Average area rental value
- 1,370.00 £/moIncreased by 3.55 %
- Est letting value
- 1,072.00 £/moUnchanged by 0.00 %
- Est rental Yield
- 4.30 %Decreased by 6.32 %
- Crime Rate
- 7.00 %Unchanged by 0.00 %
Agent Activity
Yopa created the listing.
Nearby Schools
| Name | Type | Ofsted | Distance |
|---|---|---|---|
| Coley Park | Children's Centre | 0.13 KM | |
| St Mary & All Saints Church Of England Primary School | Academy Sponsor Led | 0.53 KM | |
| All Saints Junior School | Free Schools | Outstanding | 1.08 KM |
| All Saints Church Of England Aided Infant School | Voluntary Aided School | Good | 1.08 KM |
| The Wren School | Free Schools | Good | 1.14 KM |
Images
Nearby Streets
| Name | Average Price | Average Sqft | Distance |
|---|---|---|---|
| Ashley Road | £ 600,000 | 0 | 0.00 KM |
| North Lodge Mews | £ 0 | 0 | 0.00 KM |
| Bath Road Overbridge | £ 1,150,000 | 0 | 0.00 KM |
| Hay Road | £ 0 | 0 | 0.00 KM |
| Josephine Court | £ 0 | 0 | 0.00 KM |
Nearby Transport
| Name | NLC | TLC | Distance |
|---|---|---|---|
| Reading West | 3160 | RDW | 1.47 KM |
| Reading | 3149 | RDG | 2.79 KM |
| Tilehurst | 3154 | TLH | 5.40 KM |
| Earley | 5694 | EAR | 8.06 KM |
| Mortimer | 5501 | MOR | 9.24 KM |
Nearby Listings
| Address | Price | Type | Score | Distance |
|---|---|---|---|---|
| Heron Way, Reading, RG1 | £ 400,000 | BUY | 6 / 10 | 0.00 KM |
| Heron Way, Reading | £ 425,000 | BUY | 7 / 10 | 0.03 KM |
| Lesford Road, Reading, Berkshire, RG1 | £ 340,000 | BUY | Unknown | 0.06 KM |
| Central Reading, Berkshire, RG1 | £ 190,000 | BUY | 5 / 10 | 0.08 KM |
| Central Reading, Berkshire, RG1 | £ 200,000 | BUY | 5 / 10 | 0.08 KM |
Nearby Properties
| Address | Price | Distance |
|---|---|---|
| 15 Heron Way | £ 297,500 | 0.01 KM |
| 10 Heron Way | £ 123,000 | 0.01 KM |
| 8 Heron Way | £ 217,500 | 0.01 KM |
| 1 Heron Way | £ 352,500 | 0.01 KM |
| 155 Wensley Road | £ 325,000 | 0.12 KM |