Derwendeg Avenue, Hengoed, Caerphilly, CF82
By Cariad Property
£ 150,000
Reviews
3 out of 5 stars
Cariad Property says ..
BEAUTIFUL THREE BEDROOM FAMILY HOME, modern interior, popular position, lovely kitchen, and bathroom, en suite to the master bedroom, great garden house, no chain.
Property Oracle says ..
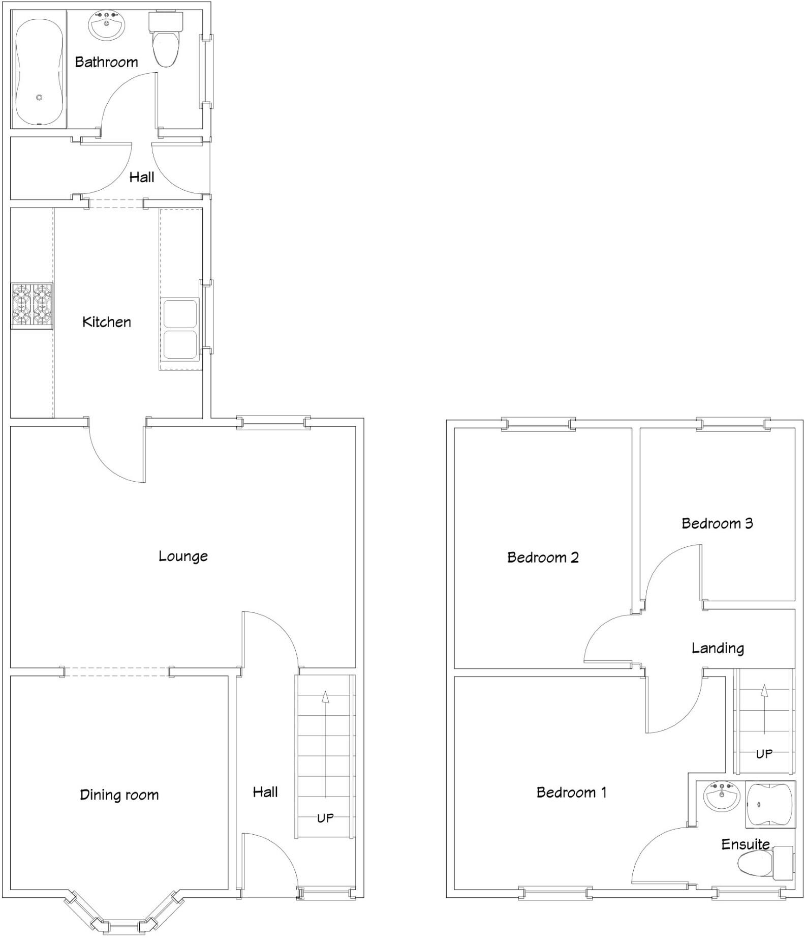
The property is a 3-bedroom, 2-bathroom semi-detached house located in Hengoed, Caerphilly. The list price is £150,000. Based on the provided images, the property appears to be in good condition internally. The interior has been recently decorated and modernised, with new flooring and updated kitchen and bathrooms. There is evidence of some minor cosmetic work that could be undertaken to further enhance the property’s presentation. Externally, the property benefits from a garden, which appears to be of average size for the area. There are also two sheds in the garden. One appears to be in good condition, the other is in need of repair. The location is positive. Hengoed offers good access to local amenities and transportation links, including several primary schools within a short distance. The proximity to train stations at Hengoed, Pengam, Ystrad Mynach, Gilfach Fargoed and Bargoed provides convenient commuting options. Considering the list price of £150,000, and comparing it to nearby properties, the price seems reasonable. While the average price in the area is higher (£252,500), the lower price may reflect the smaller size of the property (size not provided) and the fact that it is a semi-detached rather than a detached property. The average price per square foot in the area is £223, but without the square footage of this property, a precise comparison cannot be made. However, given the condition and location, the asking price is likely competitive within the local market.
Therefore, we give this property 7 / 10. *Disclaimer: This is our option and does constitute a recommendation or financial advice. Do your own research. *
- Price
- 7
- Condition
- 8
- Location
- 7
- Land
- 6
- Bedrooms
- 3
- Bathrooms
- 2
The heatmap indicates the level of crime in the area. The color of the heatmap indicates the crime severity and recency.
Metrics Year-on-Year
- Average area value
- 250,000.00 £Increased by 4.06 %
- Average area rental value
- 129.00 £/moDecreased by 82.80 %
- Est rental Yield
- 0.62 %Decreased by 83.47 %
- Crime Rate
- 28.00 %Unchanged by 0.00 %
Agent Activity
Cariad Property marked this listing as sold.
Cariad Property created the listing.
Nearby Schools
| Name | Type | Ofsted | Distance |
|---|---|---|---|
| Derwendeg Primary School | Welsh Establishment | 0.48 KM | |
| Hengoed Primary School | Welsh Establishment | 0.57 KM | |
| Tiryberth Primary School | Welsh Establishment | 1.09 KM | |
| Glanynant Learning Centre (Pru) | Welsh Establishment | 1.59 KM | |
| Ystrad Mynach Primary | Welsh Establishment | 1.60 KM |
Images
Nearby Streets
| Name | Average Price | Average Sqft | Distance |
|---|---|---|---|
| Hawthorn Avenue | £ 165,000 | 0 | 0.00 KM |
| Myrtle Grove | £ 182,500 | 0 | 0.00 KM |
| Estyniad yr Hwyaid Gwyllt | £ 300,000 | 0 | 0.00 KM |
| Rhodfa'r Penfflamgoch | £ 319,950 | 0 | 0.00 KM |
| Bryn Glas | £ 165,000 | 0 | 0.00 KM |
Nearby Transport
| Name | NLC | TLC | Distance |
|---|---|---|---|
| Hengoed | 4028 | HNG | 1.38 KM |
| Pengam | 4021 | PGM | 1.74 KM |
| Ystrad Mynach | 4026 | YSM | 1.79 KM |
| Gilfach Fargoed | 4022 | GFF | 3.33 KM |
| Bargoed | 4011 | BGD | 4.15 KM |
Nearby Listings
| Address | Price | Type | Score | Distance |
|---|---|---|---|---|
| Derwendeg Avenue, Hengoed, Caerphilly, CF82 | £ 150,000 | BUY | 7 / 10 | 0.00 KM |
| Hengoed Crescent, Cefn Hengoed, Hengoed, CF82 7HF | £ 139,950 | BUY | 5 / 10 | 0.11 KM |
| Derwendeg Avenue, Cefn Hengoed, Hengoed, CF82 7HQ | £ 120,000 | BUY | 5 / 10 | 0.14 KM |
| Derwendeg Avenue, Cefn Hengoed, Hengoed | £ 100,000 | BUY | 6 / 10 | 0.15 KM |
| Gelligaer Road, Cefn Hengoed | £ 147,500 | BUY | Unknown | 0.19 KM |
Nearby Properties
| Address | Price | Distance |
|---|---|---|
| 78 Derwendeg Avenue | £ 89,950 | 0.00 KM |
| 70 Derwendeg Avenue | £ 79,000 | 0.00 KM |
| 65 Derwendeg Avenue | £ 85,000 | 0.00 KM |
| 66 Derwendeg Avenue | £ 78,000 | 0.00 KM |
| 55 Derwendeg Avenue | £ 34,000 | 0.00 KM |