Daniel Ford says ..
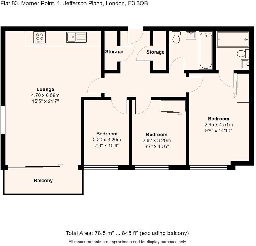
We are proud to present this lovely 3 bedroom property located in Marner Point. It is comprised of 3 spacious double bedrooms, 1 of which is served by an ensuite, a full sized family bathroom and a spacious open-planned kitchen/living area. The property is located only a stones' throw a...
Property Oracle says ..
This is a 3-bedroom flat located in Jefferson Plaza, Bromley South, London. The property offers 2 bathrooms and has a total area of 844.97 sqft. The flat benefits from a balcony. Nearby schools include Ian Mikardo School and Marner Primary School. Several transportation options are available, with West Ham being the closest station at 1.97 KM away. The flat appears to be in good condition and offers modern living space. The asking price of £550,000 seems reasonable given the location, size, and condition of the property.
Therefore, we give this property 6 / 10. *Disclaimer: This is our option and does constitute a recommendation or financial advice. Do your own research. *
- Price
- 7
- Condition
- 8
- Location
- 7
- Land
- 3
- Bedrooms
- 3
- Bathrooms
- 2
- Sqft (est)
- 844.97
The heatmap indicates the level of crime in the area. The color of the heatmap indicates the crime severity and recency.
Metrics Year-on-Year
- Average area value
- 491,357.00 £Increased by 22.72 %
- Est sale value
- 720,759.41 £Increased by 37.14 %
- Average area rental value
- 2,124.00 £/moDecreased by 3.37 %
- Est letting value
- 2,534.91 £/moUnchanged by 0.00 %
- Est rental Yield
- 5.19 %Decreased by 21.24 %
- Crime Rate
- 14.00 %Unchanged by 0.00 %
Agent Activity
Daniel Ford created the listing.
Nearby Schools
| Name | Type | Ofsted | Distance |
|---|---|---|---|
| Ian Mikardo School | Academy Special Converter | 0.16 KM | |
| Marner | Children's Centre | 0.17 KM | |
| Marner Primary School | Community School | Good | 0.17 KM |
| Bow School | Community School | Good | 0.29 KM |
| East London Arts & Music | Free Schools 16 To 19 | Outstanding | 0.32 KM |
Images
Nearby Streets
| Name | Average Price | Average Sqft | Distance |
|---|---|---|---|
| Reed Avenue | £ 300,000 | 0 | 0.00 KM |
| Grant Square | £ 0 | 0 | 0.00 KM |
| Mayfly Close | £ 0 | 0 | 0.00 KM |
| Brickfield Road | £ 0 | 0 | 0.00 KM |
| Towcester Road | £ 0 | 0 | 0.00 KM |
Nearby Transport
| Name | NLC | TLC | Distance |
|---|---|---|---|
| West Ham | 7474 | WEH | 1.97 KM |
| Stratford | 6969 | SRA | 2.16 KM |
| Stratford International | 7222 | SFA | 2.30 KM |
| Hackney Wick | 6978 | HKW | 2.56 KM |
| Maryland | 6970 | MYL | 3.11 KM |
Nearby Listings
| Address | Price | Type | Score | Distance |
|---|---|---|---|---|
| Jefferson Plaza, Marner Point, E3 | £ 575,000 | BUY | 6 / 10 | 0.00 KM |
| Jefferson Plaza, London | £ 550,000 | BUY | 6 / 10 | 0.00 KM |
| Jefferson Plaza London E3 | £ 350,000 | BUY | 6 / 10 | 0.00 KM |
| Marner Point, 1 Jefferson Plaza, London, E3 | £ 500,000 | BUY | 6 / 10 | 0.00 KM |
| 1 Jefferson Plaza, London, E3 | £ 420,000 | BUY | Unknown | 0.00 KM |
Nearby Properties
| Address | Price | Distance |
|---|---|---|
| 26 Oxley Square | £ 473,000 | 0.09 KM |
| 24 Oxley Square | £ 299,250 | 0.09 KM |
| 4 Harston Walk | £ 435,000 | 0.10 KM |
| 14 Harston Walk | £ 271,200 | 0.10 KM |
| 5 Oxley Square | £ 181,650 | 0.13 KM |