31 Broomhill Avenue, Penicuik, EH26 9EG
MC

31 Broomhill Avenue, Penicuik, EH26 9EG

By McDougall McQueen

£ 445,000

Reviews

3 out of 5 stars

McDougall McQueen says ..

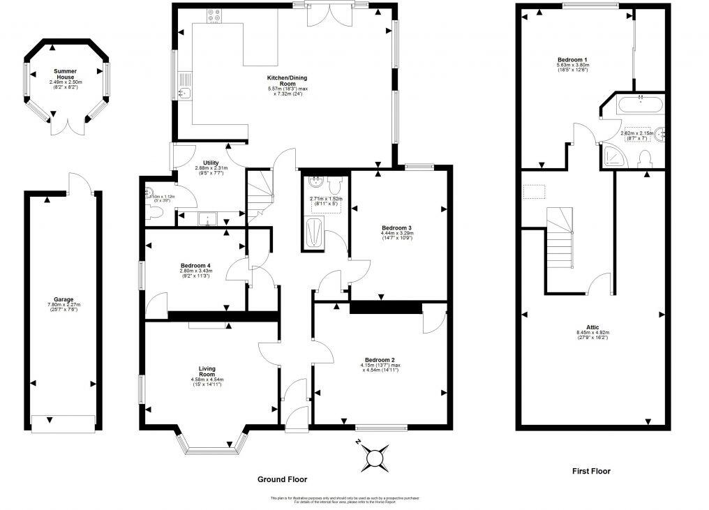
Welcome to 31 Broomhill Avenue, a well-presented and thoughtfully extended four-bedroom semi-detached villa (formerly a bungalow), ideal for anyone seeking a high-quality home in true move-in condition. Set within a popular residential area of Penicuik, the property enjoys a peaceful setting whil...

Property Oracle says ..

This is a semi-detached property located in Penicuik, Midlothian, Scotland, listed for £445,000. It features four bedrooms and two bathrooms, with a spacious interior of 2,130.40 sqft. The property appears to be in good condition, with modern interiors and a well-maintained exterior. It also benefits from a garden with a lawn, paved area, and gazebo. The location in Penicuik offers a suburban environment, with nearby schools, but is a bit removed from major urban centers. The price per square foot is significantly lower than the average for the area, but comparable properties are listed lower.

Therefore, we give this property 7 / 10. *Disclaimer: This is our option and does constitute a recommendation or financial advice. Do your own research. *

Price
6
Condition
8
Location
7
Land
7
Bedrooms
4
Bathrooms
2
Sqft (est)
2,130.40

The heatmap indicates the level of crime in the area. The color of the heatmap indicates the crime severity and recency.

Metrics Year-on-Year

Average area value
345,048.00 £
Increased by 34.37 %
from 256,780.00 £
Est sale value
1,080,112.80 £
Increased by 11.92 %
from 965,071.20 £
Average area rental value
803.00 £/mo
Decreased by 6.19 %
from 856.00 £/mo
Est letting value
2,130.40 £/mo
Unchanged by 0.00 %
from 2,130.40 £/mo
Est rental Yield
2.79 %
Decreased by 30.25 %
from 4.00 %
Crime Rate
0.00 %
from 0.00 %

Agent Activity

  • McDougall McQueen created the listing.

Nearby Schools

NameTypeOfstedDistance
Merchiston Castle SchoolOffshore Schools9.87 KM

Images

Property Image 5 Property Image 15 Property Image 12 Property Image 21 Primary Property Image Property Image 2 Property Image 3 Property Image 4 Property Image 7 Property Image 9 Property Image 10 Property Image 11 Property Image 14 Property Image 6 Property Image 8 Property Image 13 Property Image 22 Property Image 24 Property Image 26 Property Image 16 Property Image 20 Property Image 17 Property Image 18 Property Image 19 Property Image 23 Property Image 25 Property Image 27 Property Image 28 Property Image 29 Property Image 30 Property Image 31 Property Image 32

Nearby Streets

NameAverage PriceAverage SqftDistance
Craigiebield Crescent £ 000.00 KM
Broomhill Avenue £ 000.00 KM
Broomhill Road £ 545,00000.00 KM
Cairnbank Gardens £ 245,00000.00 KM
Vaucluse Place £ 125,00000.00 KM

Nearby Listings

AddressPriceTypeScoreDistance
31 Broomhill Avenue, Penicuik, EH26 9EG £ 445,000BUY7 / 100.00 KM
17 Broomhill Avenue, Penicuik, EH26 9EG £ 410,000BUYUnknown0.10 KM
7 Bog Road, Penicuik, EH26 £ 150,000BUYUnknown0.12 KM
Broomhill Avenue, Penicuik, EH26 £ 375,000BUY5 / 100.20 KM
Cranston Street, Penicuik, EH26 £ 145,000BUY7 / 100.32 KM