HA
Charlottes, Washbrook, Ipswich, Suffolk, IP8
By Hamilton Smith
£ 325,000
Reviews
2 out of 5 stars
Hamilton Smith says ..
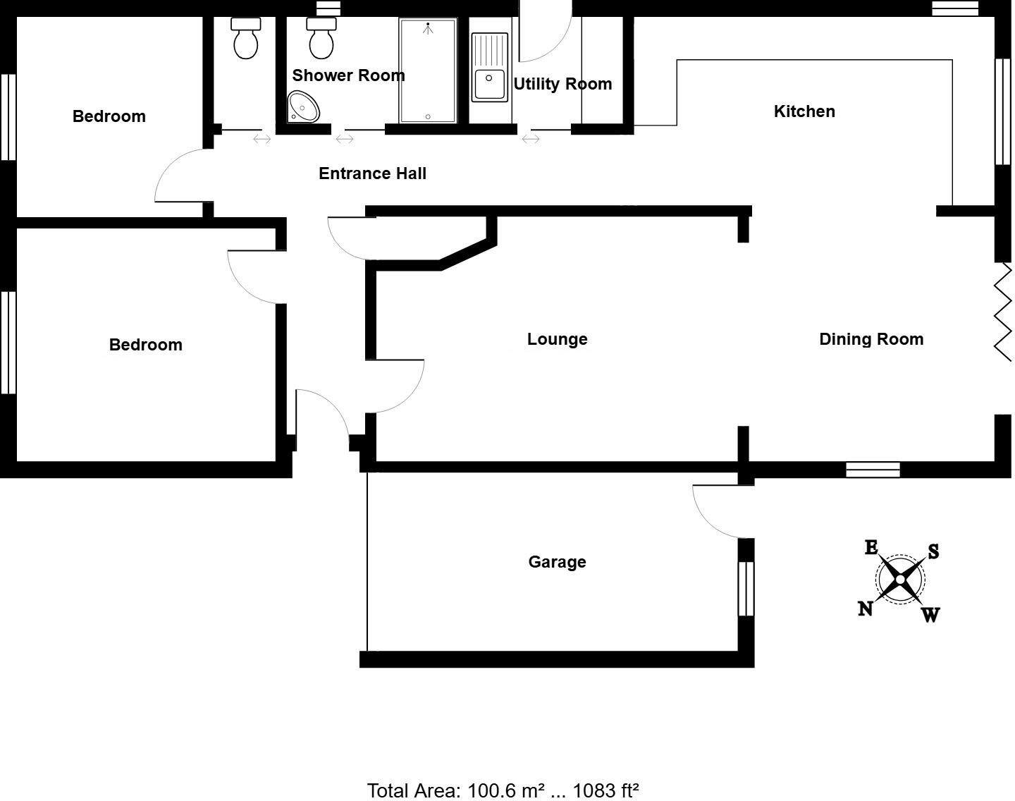
We are pleased to offer for sale this RARELY AVAILABLE, EXTENDED TWO BEDROOM DETACHED VILLAGE BUNGALOW, occupying a prime position within this most desirable close in the easily accessible, picturesque village of Washbrook. Offered for sale with the benefit of no onward chain.
Property Oracle says ..
Therefore, we give this property 5 / 10. *Disclaimer: This is our option and does constitute a recommendation or financial advice. Do your own research. *
- Price
- 5
- Condition
- 5
- Location
- 7
- Land
- 6
- Bedrooms
- 2
- Bathrooms
- 1
- Sqft (est)
- 1,082.85
The heatmap indicates the level of crime in the area. The color of the heatmap indicates the crime severity and recency.
Metrics Year-on-Year
- Average area value
- 269,990.00 £Increased by 14.67 %
- Est sale value
- 291,286.65 £Increased by 35.18 %
- Average area rental value
- 888.00 £/moDecreased by 3.06 %
- Est letting value
- 0.00 £/mo
- Est rental Yield
- 3.95 %Decreased by 15.42 %
- Crime Rate
- 23.00 %Unchanged by 0.00 %
from 235,441.00 £
from 215,487.15 £
from 916.00 £/mo
from 0.00 £/mo
from 4.67 %
from 23.00 %
Agent Activity
Hamilton Smith created the listing.
Nearby Schools
| Name | Type | Ofsted | Distance |
|---|---|---|---|
| Copdock Primary School | Community School | Outstanding | 0.31 KM |
| Catch 22 Include Primary School Suffolk | Other Independent School | Good | 2.38 KM |
| The Bridge School | Academy Special Sponsor Led | 2.38 KM | |
| Belstead House Adult Education Centre | Miscellaneous | 2.46 KM | |
| One Sixth Form College | Academy 16-19 Converter | 2.49 KM |
Images
Nearby Streets
| Name | Average Price | Average Sqft | Distance |
|---|---|---|---|
| Charlotte's | £ 0 | 0 | 0.00 KM |
| Mill Lane | £ 0 | 0 | 0.00 KM |
| Pigeon's Lane | £ 0 | 0 | 0.00 KM |
| Church Lane | £ 550,000 | 0 | 0.00 KM |
| Spring Road | £ 0 | 0 | 0.00 KM |
Nearby Transport
| Name | NLC | TLC | Distance |
|---|---|---|---|
| Ipswich | 7217 | IPS | 6.84 KM |
Nearby Listings
| Address | Price | Type | Score | Distance |
|---|---|---|---|---|
| Washbrook, Suffolk | £ 325,000 | BUY | Unknown | 0.00 KM |
| Charlottes, Copdock & Washbrook, Ipswich | £ 430,000 | BUY | 7 / 10 | 0.00 KM |
| Charlottes, Washbrook, Ipswich, Suffolk, IP8 | £ 325,000 | BUY | 5 / 10 | 0.00 KM |
| Charlottes, Washbrook, Ipswich | £ 350,000 | BUY | 6 / 10 | 0.00 KM |
| Charlottes, Washbrook, Ipswich | £ 420,000 | BUY | 6 / 10 | 0.06 KM |
Nearby Properties
| Address | Price | Distance |
|---|---|---|
| 3 Charlottes | £ 272,500 | 0.02 KM |
| 23 Charlottes | £ 225,000 | 0.02 KM |
| 30 Charlottes | £ 220,000 | 0.02 KM |
| 25 Charlottes | £ 290,000 | 0.02 KM |
| 17 Charlottes | £ 3,000 | 0.02 KM |