Cornwall Road, Pilgrims Hatch, Brentwood
By Keith Ashton
£ 425,000
Reviews
3 out of 5 stars
Keith Ashton says ..
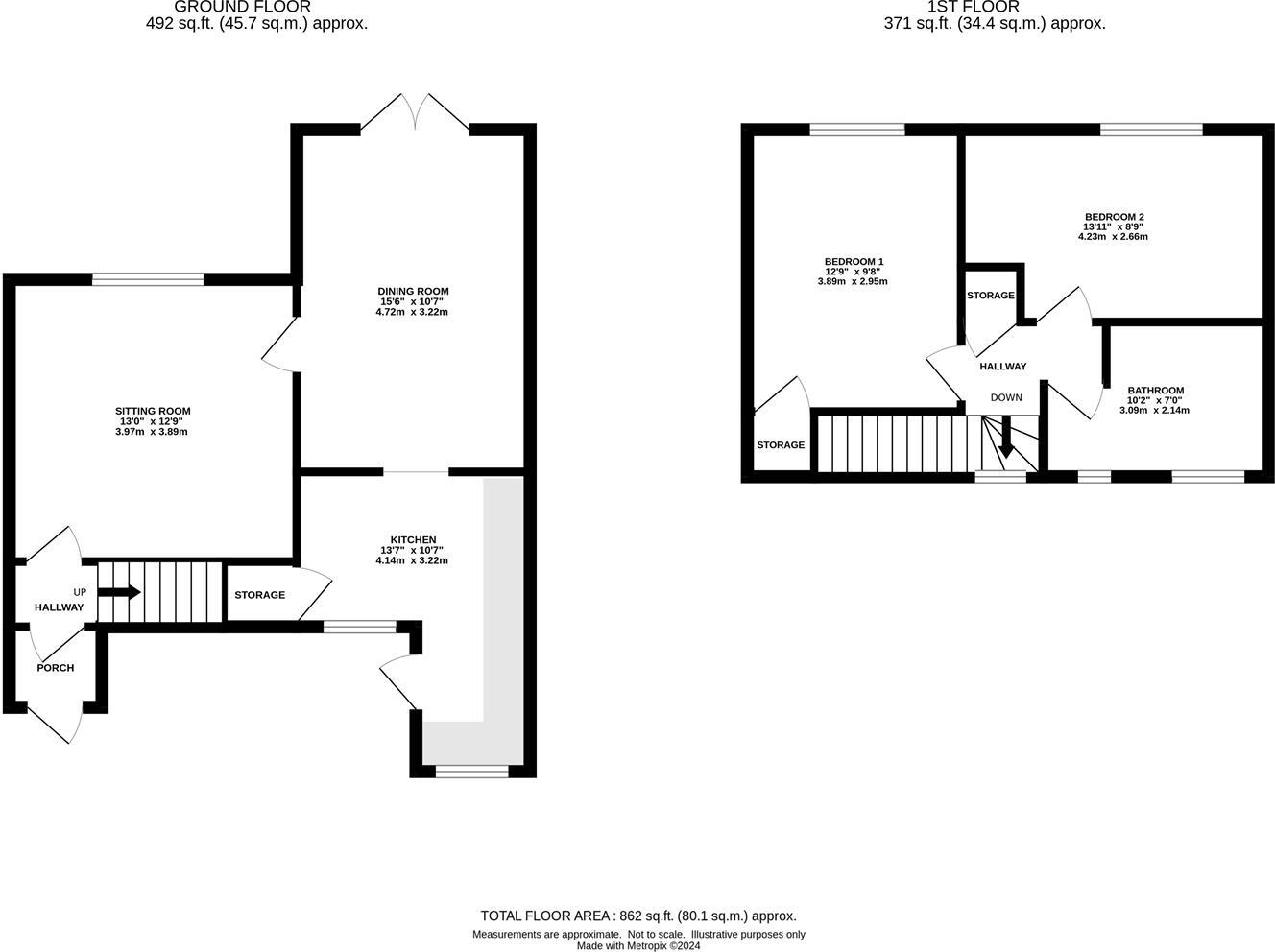
**Guide Price - £425,000 - £450,000** Offered for sale with no onward chain is this spacious and well presented two bedroom end-of-terrace property. Enjoying a corner plot with the potential to further extend and develop subject to planning. The property has been extended to afford two reception ...
Property Oracle says ..
Therefore, we give this property 7 / 10. *Disclaimer: This is our option and does constitute a recommendation or financial advice. Do your own research. *
- Price
- 7
- Condition
- 8
- Location
- 8
- Land
- 7
- Bedrooms
- 2
- Bathrooms
- 1
- Sqft (est)
- 798.78
The heatmap indicates the level of crime in the area. The color of the heatmap indicates the crime severity and recency.
Metrics Year-on-Year
- Average area value
- 547,000.00 £Decreased by 8.72 %
- Est sale value
- 308,329.08 £Decreased by 5.62 %
- Average area rental value
- 1,401.00 £/moDecreased by 1.27 %
- Est letting value
- 0.00 £/mo
- Est rental Yield
- 3.07 %Increased by 8.10 %
- Crime Rate
- 17.00 %Unchanged by 0.00 %
from 599,278.00 £
from 326,701.02 £
from 1,419.00 £/mo
from 0.00 £/mo
from 2.84 %
from 17.00 %
Agent Activity
Keith Ashton created the listing.
Nearby Schools
| Name | Type | Ofsted | Distance |
|---|---|---|---|
| Bre1 Larchwood Gardens Family Hub | Children's Centre | 0.40 KM | |
| Larchwood Primary School | Academy Sponsor Led | Outstanding | 0.40 KM |
| St Helen'S Catholic Infant School | Voluntary Aided School | Outstanding | 1.69 KM |
| Grove House School | Free Schools Special | Good | 1.69 KM |
| Becket Keys Church Of England Free School | Free Schools | Outstanding | 1.73 KM |
Images
Nearby Streets
| Name | Average Price | Average Sqft | Distance |
|---|---|---|---|
| Stuart Close | £ 0 | 0 | 0.00 KM |
| Tulip Close | £ 0 | 0 | 0.00 KM |
| Sandringham Road | £ 230,000 | 0 | 0.00 KM |
| Heather Close | £ 385,000 | 0 | 0.00 KM |
| Meadow View | £ 145,000 | 0 | 0.00 KM |
Nearby Transport
| Name | NLC | TLC | Distance |
|---|---|---|---|
| Brentwood | 6872 | BRE | 2.85 KM |
| Shenfield | 6888 | SNF | 4.39 KM |
| Harold Wood | 6879 | HRO | 8.09 KM |
| West Horndon | 7466 | WHR | 9.52 KM |
| Upminster | 7464 | UPM | 9.79 KM |
Nearby Listings
| Address | Price | Type | Score | Distance |
|---|---|---|---|---|
| Cornwall Road, Pilgrims Hatch, Brentwood | £ 425,000 | BUY | 7 / 10 | 0.00 KM |
| Cornwall Road, Pilgrims Hatch, CM15 | £ 400,000 | BUY | 6 / 10 | 0.07 KM |
| Cornwall Road, Pilgrims Hatch, Brentwood | £ 425,000 | BUY | 7 / 10 | 0.07 KM |
| Cornwall Road, Pilgrims Hatch, CM15 | £ 500,000 | BUY | 7 / 10 | 0.10 KM |
| Honeysuckle Close, Pilgrims Hatch, CM15 | £ 425,000 | BUY | 6 / 10 | 0.14 KM |
Nearby Properties
| Address | Price | Distance |
|---|---|---|
| 9b Stuart Close | £ 310,000 | 0.08 KM |
| 4 Stuart Close | £ 110,000 | 0.08 KM |
| 18 Stuart Close | £ 400,000 | 0.08 KM |
| 11 Stuart Close | £ 180,000 | 0.08 KM |
| 5 Stuart Close | £ 360,000 | 0.08 KM |