Julian Marks says ..
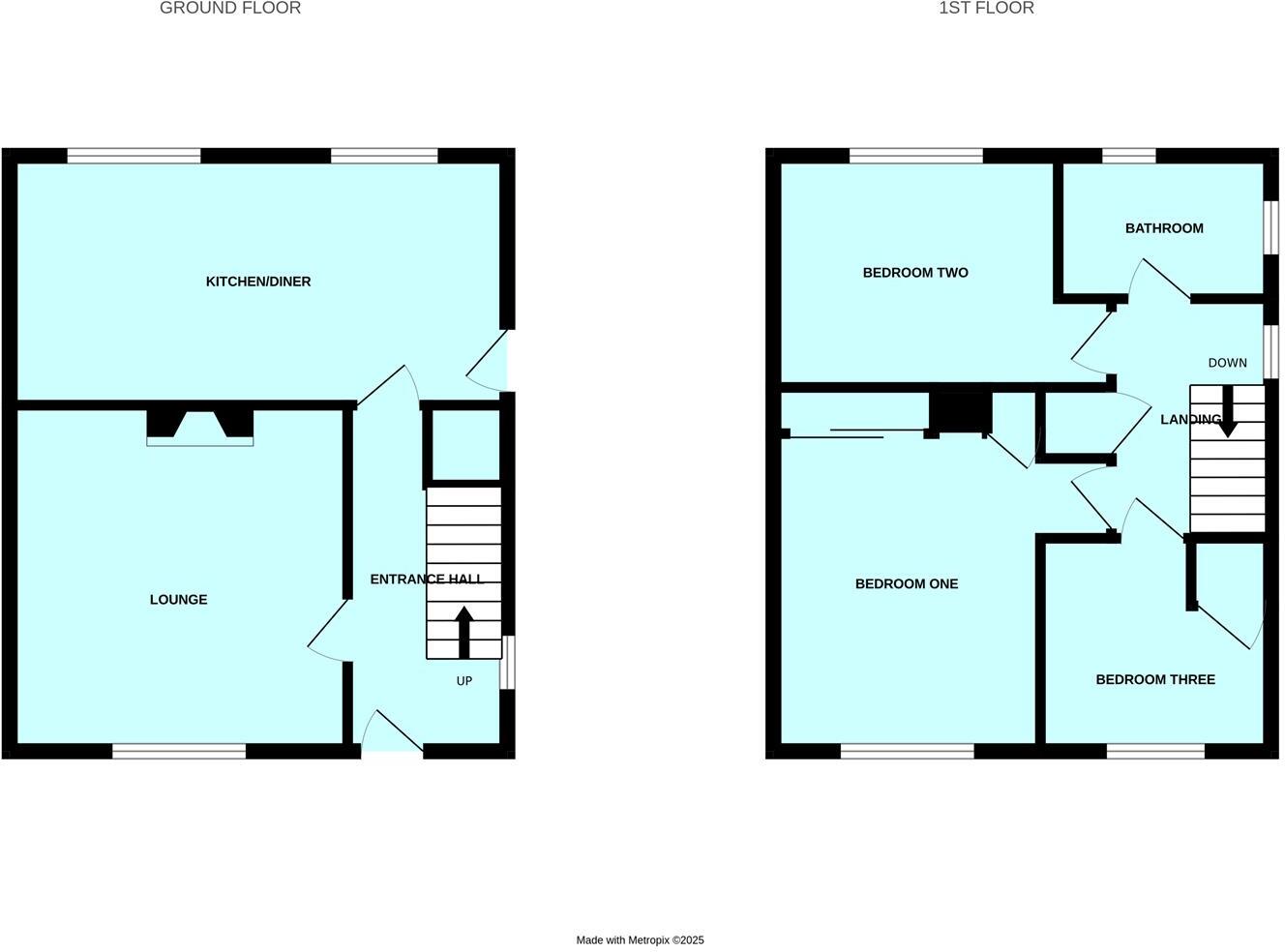
Superbly-presented semi-detached house with accommodation briefly comprising an entrance hall, lounge, superb open-plan kitchen/dining room, 3 bedrooms & bathroom. Hard stand to the front together with front, side & rear gardens. The rear garden enjoys a westerly aspect. Double-glazing & central ...
Property Oracle says ..
Therefore, we give this property 7 / 10. *Disclaimer: This is our option and does constitute a recommendation or financial advice. Do your own research. *
- Price
- 8
- Condition
- 8
- Location
- 7
- Land
- 7
- Bedrooms
- 3
- Bathrooms
- 1
The heatmap indicates the level of crime in the area. The color of the heatmap indicates the crime severity and recency.
Metrics Year-on-Year
- Average area value
- 311,919.00 £Decreased by 6.41 %
- Average area rental value
- 1,169.00 £/moIncreased by 9.05 %
- Est rental Yield
- 4.50 %Increased by 16.58 %
- Crime Rate
- 14.00 %Unchanged by 0.00 %
from 333,288.00 £
from 1,072.00 £/mo
from 3.86 %
from 14.00 %
Agent Activity
Julian Marks marked this listing as sold.
Julian Marks created the listing.
Nearby Schools
| Name | Type | Ofsted | Distance |
|---|---|---|---|
| Plymstock Children'S Centre | Children's Centre | 0.34 KM | |
| Plymstock School | Academy Converter | Good | 0.72 KM |
| Goosewell Primary Academy | Academy Sponsor Led | Good | 0.83 KM |
| Coombe Dean School | Academy Converter | Requires improvement | 0.95 KM |
| Pomphlett Primary School | Academy Converter | 1.26 KM |
Images
Nearby Streets
| Name | Average Price | Average Sqft | Distance |
|---|---|---|---|
| Woodlands | £ 0 | 0 | 0.00 KM |
| Church Road | £ 327,500 | 0 | 0.00 KM |
| Springfield Lane | £ 0 | 0 | 0.00 KM |
| Encombe Street | £ 240,000 | 0 | 0.00 KM |
| Reigate Road | £ 282,500 | 0 | 0.00 KM |
Nearby Transport
| Name | NLC | TLC | Distance |
|---|---|---|---|
| Plymouth | 3580 | PLY | 7.05 KM |
Nearby Listings
| Address | Price | Type | Score | Distance |
|---|---|---|---|---|
| Plymstock, Plymouth | £ 279,950 | BUY | 7 / 10 | 0.00 KM |
| Plymstock, Plymouth | £ 400,000 | BUY | 7 / 10 | 0.09 KM |
| Southernway, Plymouth, Devon | £ 285,000 | BUY | 7 / 10 | 0.13 KM |
| Southernway, Plymouth, Devon, PL9 | £ 191,000 | BUY | 7 / 10 | 0.14 KM |
| Stentaway Close, Plymouth, Devon, PL9 8TD | £ 285,000 | BUY | Unknown | 0.16 KM |
Nearby Properties
| Address | Price | Distance |
|---|---|---|
| 50 Southernway | £ 185,000 | 0.07 KM |
| 42 Southernway | £ 187,000 | 0.07 KM |
| 36 Southernway | £ 118,000 | 0.07 KM |
| 33 Southernway | £ 150,000 | 0.13 KM |
| 7 Southernway | £ 157,500 | 0.13 KM |